Elburton, Plymouth

£269,950
SSTC
This property listing is now SSTC

3 Bedroom Semi-Detached House for sale in Plymouth

1 3 1
  • Semi-detached house in a highly popular location within Elburton
  • Entrance hall
  • Open-plan dual aspect lounge/dining room
  • Dual aspect kitchen
  • 3 bedrooms
  • Bathroom & separate wc
  • Drive & garage
  • Front, side & rear gardens
  • uPVC double-glazing & cgas entral heating
  • No onward chain

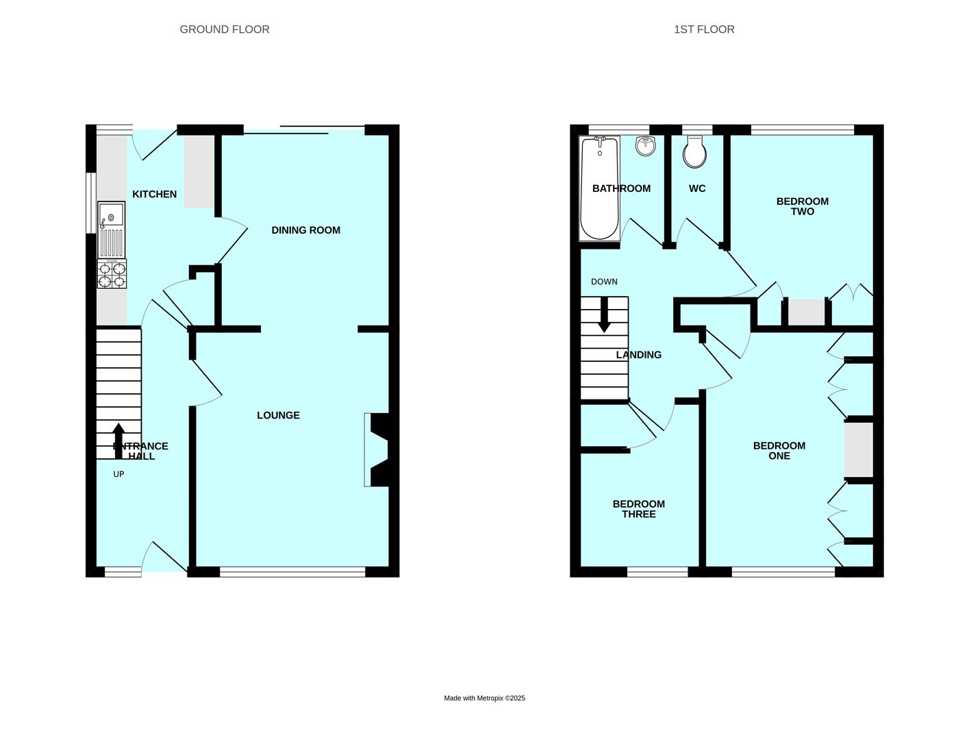
Superbly-situated semi-detached house in a highly popular location within Elburton, being sold with no onward chain. The property benefits from a drive and garage together with front, side & rear gardens. The accommodation briefly comprises an entrance hall, open-plan dual aspect lounge/dining room, dual aspect kitchen, 3 bedrooms, bathroom & separate wc. The property has uPVC double-glazing & gas central heating.

Blackstone Close, Elburton, Pl9 8Uq -

Accommodation - Obscured double-glazed front door with matching panel to side opening into the entrance hall.

Entrance Hall - 3.99m x 1.80m (13'1 x 5'11) - Providing access to the ground floor accommodation. Staircase rising to the first floor. Under-stairs cupboard also housing the gas meter, electric meter and fuse box.

Lounge - 3.99m x 3.30m (13'1 x 10'10) - Window with fitted blinds to the front elevation. Stone-built fireplace and matching hearth.

Dining Room - 3.30m x 2.92m (10'10 x 9'7) - Sliding double-glazed patio doors with fitted blinds to the rear.

Kitchen - 3.40m x 2.18m (11'2 x 7'2) - Range of base and wall-mounted cabinets with matching work surfaces and tiled splash-backs. Inset stainless-steel single drainer sink unit. Space for free-standing cooker and fridge-freezer. Space and plumbing for washing machine. Original larder cupboard fitted with shelving and housing the stopcock. Windows to 2 elevations. Obscured glazed door opening onto the rear garden.

First Floor Landing - Providing access to the first floor accommodation. Loft hatch with pull-down loft ladder. Window to the side elevation providing lovely views over Elburton towards Dartmoor.

Bedroom One - 3.86m x 2.97m (12'8 x 9'9) - Window to the front elevation with views. Range of built-in wardrobes, cupboards and a dressing table. Matching bedside cabinets. Original recessed airing cupboard housing the hot water cylinder.

Bedroom Two - 3.53m x 2.84m (11'7 x 9'4) - Window to the rear elevation overlooking the garden. Built-in wardrobes, cupboards and a dressing table.

Bedroom Three - 2.82m x 1.98m (9'3 x 6'6) - Window to the front elevation with views. Over-stairs cupboard.

Bathroom - 1.88m x 1.42m (6'2 x 4'8) - Comprising a bath with an electric shower system over and basin. Partly-tiled walls. Obscured window to the rear elevation.

Separate Wc - Fitted with a wc. Obscured window to the rear elevation.

Garage - 4.98m x 2.79m (16'4 x 9'2) - Up-&-over style door to the front elevation. Window to the side elevation.

Outside - The front garden is stocked with a variety of mature shrubs. A driveway provides access to the garage and a separate pathway leads to the main front door. There is an area of garden to the side providing access through to the rear garden. The rear garden is also stocked with a variety of mature shrubs and heathers together with areas laid to lawn. Adjacent to the rear elevation is a patio area.

Council Tax - Plymouth City Council
Council tax band C

Services - The property is connected to all the mains services: gas, electricity, water and drainage.

Property Ref: 11002660_34183271

Share:

Similar Properties

Plymstock, Plymouth

3 Bedroom Detached Bungalow | £269,950

Detached bungalow situated in a convenient position occupying a corner plot, briefly comprising entrance hall, lounge, k...

The Crescent, Plymouth

2 Bedroom Apartment | £269,950

Stunningly-presented and very spacious garden-level flat situated within the iconic Crescent in one of the city's most s...

Wembury, Plymouth

2 Bedroom Detached Bungalow | £265,000

Link-detached bungalow situated in a popular cul-de-sac in this popular coastal village, briefly comprising kitchen, lou...

Hooe, Plymouth

2 Bedroom Apartment | £272,000

Spend time in viewing this most impressive first-floor apartment occupying a lovely position with views across towards t...

Hooe, Plymouth

4 Bedroom Detached House | £275,000

An older-style detached cottage which is currently arranged as 2 self-contained flats but could be re-instated to one pr...

Brixton, Plymouth

5 Bedroom Cottage | Guide Price £275,000

A unique opportunity to acquire these 2 period cottages on separate titles but being sold as one, incorporating a flying...

Julian Marks Estate Agents (Plymstock)

2 The Broadway, Plymstock, Plymstock, Devon, PL9 7AW

01752 401128

How much is your home worth?

Use our short form to request a valuation of your property.

Request a Valuation

Mortgage Calculator

Amount Borrowed: £
Total Amount Repayable: £
Total Monthly Payment: £
©2025 The Guild of Property Professionals. All rights reserved. Terms and Conditions | Privacy Policy | Cookie Policy | Complaints Policy | Members Login
The Guild of Property Professionals Trading Address: 121 Park Lane, London W1K 7AG. GPEA Limited. Registered in England & Wales.  Company No: 02819824.  Registered Office Address: 2 St. Stephen's Court, St. Stephen's Road, Bournemouth, Dorset, England, BH2 6LA.  VAT Registration No: 576 8795 61
Book a Property Valuation Update Cookies Preferences