Hooe, Plymouth

£350,000
SSTC
This property listing is now SSTC

4 Bedroom Detached Bungalow for sale in Plymouth

2 4 2
  • Detached dormer house
  • Fantastic position in a generous plot with lovely views
  • Large garage & parking
  • Hallway
  • Lounge & separate dining room
  • Kitchen
  • 4 bedrooms
  • Bathroom & master ensuite dressing room & shower room
  • Double-glazing & central heating
  • In need of updating, development potential subject to the necessary planning consents

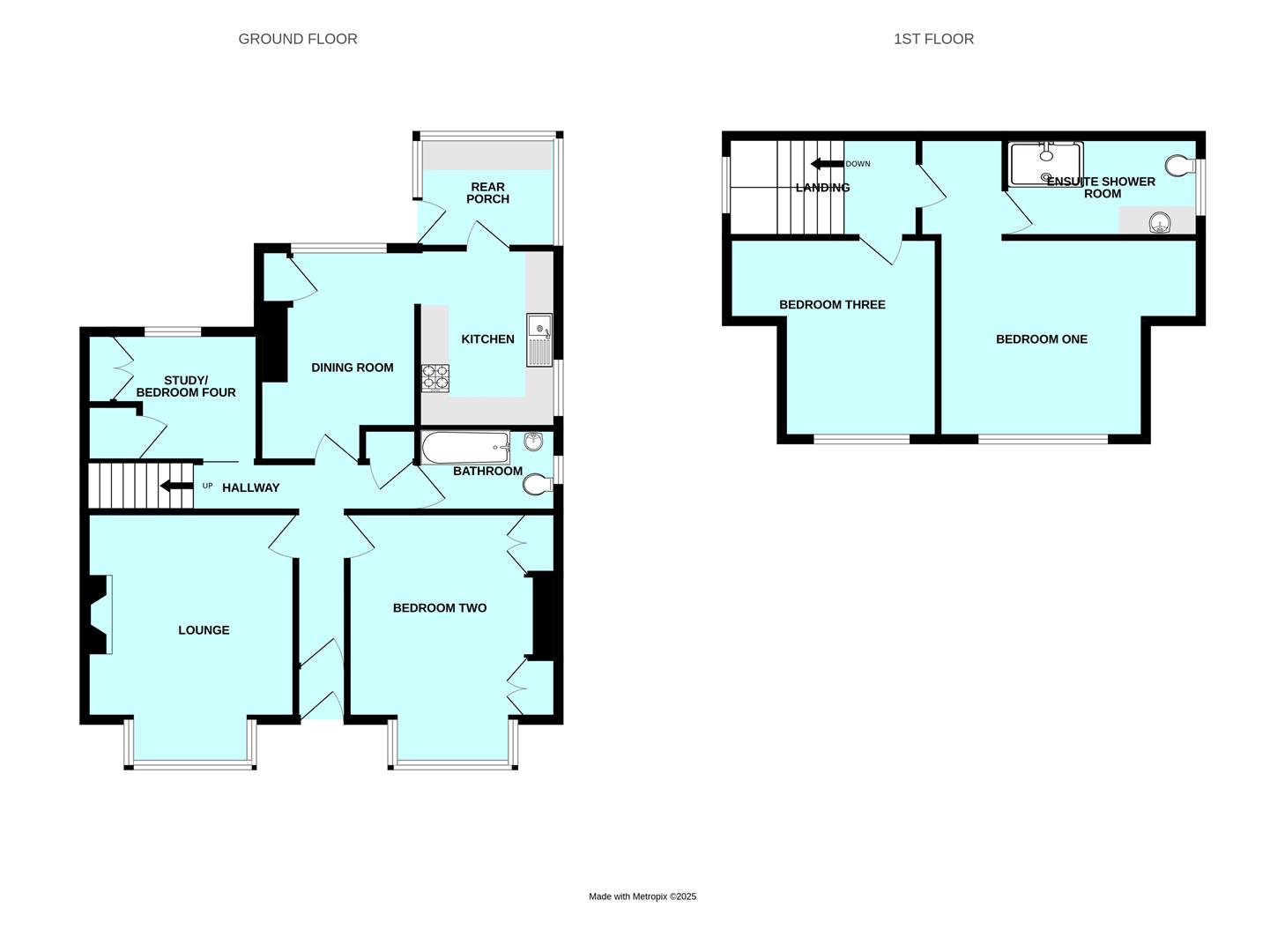
A generous detached dormer house with loads of potential sat within a large plot with substantial gardens to both the front & rear elevations together with a detached garage plus parking. The accommodation briefly comprises an entrance hall, lounge, separate dining room, kitchen, 2 ground floor bedrooms & bathroom. On the first floor there is a master suite with a bedroom, dressing area & ensuite shower room plus a second double bedroom & walk-in loft storage. Double-glazing & central heating. No onward chain. Development potential subject to the necessary planning consents.

Hooe Road, Hooe, Pl9 9Nl -

Accommodation -

Entrance Vestibule - Opening into the hallway.

Entrance Hall - Providing access to the ground floor accommodation. Staircase ascending to the first floor. Airing cupboard housing the hot water cylinder.

Lounge - 4.42m into bay x 3.71m (14'6 into bay x 12'2) - Bay window to the front elevation. Chimney breast with fitted fire.

Dining Room - 3.78m x 2.79m (12'5 x 9'2) - Chimney breast. Storage cupboard to one side of the chimney breast. Ample space for table and chairs. Window to the rear elevation overlooking the garden. Single archway opening into the kitchen.

Kitchen - 3.15m x 2.51m (10'4 x 8'3) - Fitted with a range of base and wall-mounted cabinets with matching fascias and work surfaces. Stainless-steel single drainer sink unit. Built-in double oven and grill. Hob with an extractor above. Space for free-standing fridge-freezer. Window to the side elevation. Glazed door leading to the rear porch.

Rear Porch - 2.54m x 1.93m (8'4 x 6'4) - Utility space with plumbing for washing machine. Double-glazed windows to 3 elevations. Doorway leading to outside.

Bedroom Two - 4.45m into bay x 3.71m (14'7 into bay x 12'2) - Bay window to the front elevation. Chimney breast with built-in storage either side.

Study/Bedroom Four - 2.59m x 2.26m (8'6 x 7'5) - Window to the rear elevation. Under-stairs storage cupboard. Built-in storage cupboard/wardrobe.

Bathroom - 2.51m x 1.68m (8'3 x 5'6) - Comprising a bath, wc and basin. Partly-tiled walls. Obscured window to the side elevation.

First Floor Landing - Providing access to the first floor accommodation. Window over the stairs. Doorway opening into the walk-in loft area. Doors providing access to the first floor accommodation.

Dressing Area - 1.80m x 1.60m (5'11 x 5'3) - Built-in wardrobe. Loft access hatch. Access through to the ensuite shower room and main bedroom.

Bedroom One - 4.85m into alcove x 3.30m (15'11 into alcove x 10' - Window to the front elevation with fantastic views over the front garden to Radford Woods sweeping around to Staddon Heights.

Ensuite Shower Room - 3.38m x 1.83m (11'1 x 6') - Comprising an enclosed double shower, bidet, wc and vanity-style basin set into a cabinet with a tiled splash-back. Obscured window to the side elevation.

Bedroom Three - 3.78m into alcove x 3.28m (12'5 into alcove x 10'9 - Window to the front elevation with lovely views.

Walk-In Loft Area - 8.53m 3.35m x 1.30m (28' 11 x 4'3) - An ideal storage area with lighting and power points. Cupboard housing the gas boiler.

Garage - 5.05m x 4.60m (16'7 x 15'1) - Detached garage with a roller door. Windows. Side access door. Power and lighting.

Outside - There are large gardens to both the front and rear elevations. Along the side a gateway opens onto a driveway providing additional off-road parking.

Council Tax - Plymouth City Council
Council tax band C

Property Ref: 33920268

Share:

Similar Properties

Oreston Road, Plymouth

4 Bedroom Semi-Detached House | £350,000

Superbly-positioned bay-fronted 1930s semi-detached house, ideally located close to Oreston Primary School and a short w...

Elburton, Plymouth

4 Bedroom Semi-Detached House | £350,000

Superb opportunity to acquire this individual extended semi-detached house situated in a highly sought-after position wi...

Elburton, Plymouth

2 Bedroom Detached Bungalow | £350,000

A pleasantly situated detached bungalow in a tucked-away position occupying a level site with gardens to the front & rea...

Sherford, Plymouth

4 Bedroom Terraced House | £369,950

Superbly-presented mid-terraced townhouse in a lovely position within Sherford overlooking the green & woodland. The acc...

Sherford, Plymouth

4 Bedroom End of Terrace House | £375,000

Superbly-presented 3-storey townhouse situated in a lovely position overlooking the lake and enjoying a south-westerly f...

Sherford, Plymouth

4 Bedroom Semi-Detached House | £375,000

Superbly-presented 3-storey semi-detached house with spacious accommodation. Briefly, the accommodation comprises an ent...

Julian Marks Estate Agents (Plymstock)

2 The Broadway, Plymstock, Plymstock, Devon, PL9 7AW

01752 401128

How much is your home worth?

Use our short form to request a valuation of your property.

Request a Valuation

Mortgage Calculator

Amount Borrowed: £
Total Amount Repayable: £
Total Monthly Payment: £
©2026 The Guild of Property Professionals. All rights reserved. Terms and Conditions | Privacy Policy | Cookie Policy | Complaints Policy | Members Login
The Guild of Property Professionals Trading Address: 121 Park Lane, London W1K 7AG. GPEA Limited. Registered in England & Wales.  Company No: 02819824.  Registered Office Address: 2 St. Stephen's Court, St. Stephen's Road, Bournemouth, Dorset, England, BH2 6LA.  VAT Registration No: 576 8795 61
Book a Property Valuation Update Cookies Preferences