Sherford, Plymouth

£369,950
SSTC
This property listing is now SSTC

4 Bedroom Terraced House for sale in Plymouth

2 4 3
  • Superbly-presented 3-storey townhouse
  • Fabulous position overlooking the green & woodlands
  • Entrance hall with downstairs cloakroom/wc
  • Kitchen/breakfast room & separate dining room
  • First floor lounge with views
  • 4 bedrooms
  • Family bathroom & 2 ensuites
  • Garage adjacent to the plot & landscaped rear garden
  • Double-glazing & central heating
  • No onward chain

Superbly-presented mid-terraced townhouse in a lovely position within Sherford overlooking the green & woodland. The accommodation briefly comprises an entrance hall with downstairs cloakroom/wc, kitchen/breakfast room & separate formal dining room. On the first floor there is a lounge with lovely views plus 2 bedrooms & a family bathroom whilst on the top floor are 2 further double bedrooms, both with ensuite facilities. Adjacent garage & landscaped rear garden. Double-glazing & central heating. No onward chain.

Aquarius Drive, Sherford, Pl9 8Fh -

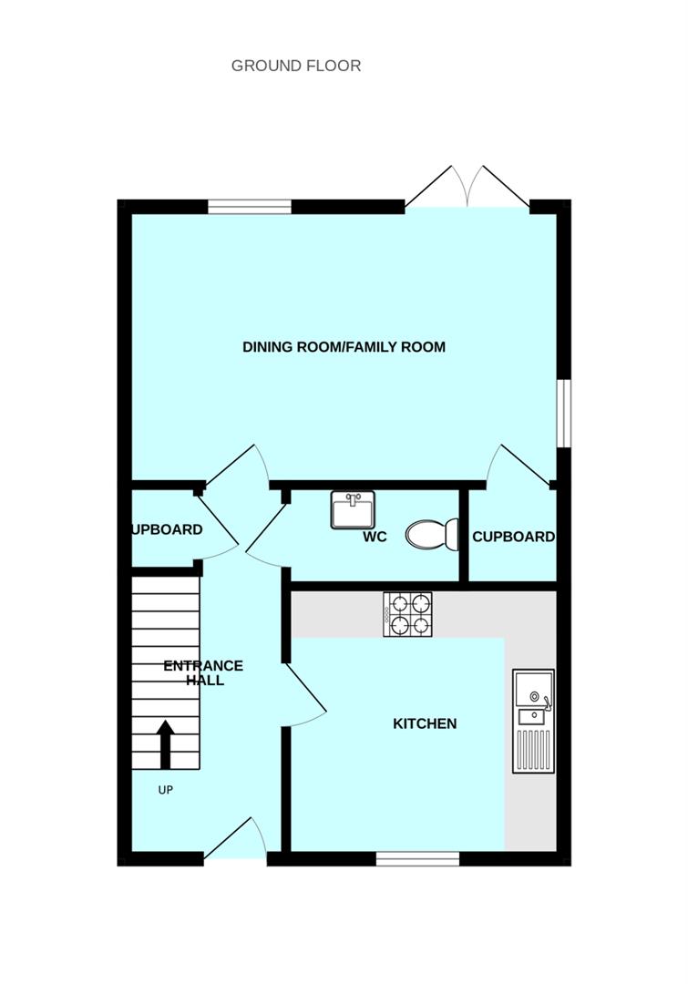
Accommodation - Front door opening into the entrance hall.

Entrance Hall - 5.31m x 1.85m (17'5 x 6'1) - Doors providing access to the ground floor accommodation. Staircase ascending to the first floor. Under-stairs cupboard. Polished stone tiled floor. Feature high ceiling with inset ceiling spotlights.

Dining Room - 5.28m x 2.82m (17'4 x 9'3) - A very spacious room with French doors opening onto the garden. Window overlooking the garden. Ample space for seating and dining. Recessed cupboard housing the Megaflo hot water cylinder. Feature high ceiling with inset ceiling spotlights.

Kitchen/Breakfast Room - 3.33m x 3.28m (10'11 x 10'9) - Ample space for breakfast table and chairs. Fitted with a range of base and wall-mounted cabinets with matching fascias and work surfaces. Inset stainless-steel one-&-a-half bowl single drainer sink unit. Inset stainless-steel 5-burner gas hob with a splash-back and a stainless-steel cooker hood above. Built-in double oven and grill. Integral fridge-freezer. Built-in dishwasher. Built-in washing machine. Polished stone tiled floor. 2 sash windows with fitted blinds to the front elevation with lovely views. Feature high ceiling with inset ceiling spotlights.

Downstairs Cloakroom/Wc - 2.08m x 1.37m (6'10 x 4'6) - Fitted with a wc with a concealed cistern and a push-button flush and a pedestal basin with a tiled splash-back. Polished stone tiled floor. Feature high ceiling with inset ceiling spotlights.

First Floor Landing - Providing access to the first floor accommodation. Staircase ascending to the top floor. Built-in cupboard.

Lounge - 5.26m x 3.30m (17'3 x 10'10) - A superb reception room with 2 sash windows with Juliette-style balconies to the front elevation with views over the green towards woodland.

Bedroom Three - 2.84m x 2.69m (9'4 x 8'10) - Window to the rear elevation.

Bedroom Four - 2.90m x 2.49m (9'6 x 8'2) - Window to the rear elevation.

Bathroom - 2.03m x 1.85m (6'8 x 6'1) - Comprising a bath with a shower system over and a glass screen, wall-mounted basin and built-in wc with a concealed cistern and a push-button flush. Partly-tiled walls. Tiled floor.

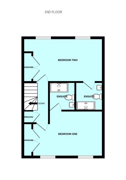
Top Floor Landing - Providing access to the top floor accommodation. Loft hatch. Over-stairs cupboard housing the gas boiler.

Bedroom One - 5.26m x 3.10m (17'3 x 10'2) - Situated to the front elevation with 2 sash windows and lovely views over the green towards woodland. Built-in wardrobes with sliding mirrored doors. Doorway opening into the ensuite shower room.

Ensuite Shower Room - 2.08m x 1.55m (6'10 x 5'1) - Comprising a double-sized shower, wall-mounted basin and built-in wc with a concealed cistern and a push-button flush. Towel rail/radiator. Tiled floor. Partly-tiled walls.

Bedroom Two - 5.28m x 2.90m (17'4 x 9'6) - Situated to the rear with 2 windows to the rear elevation with distant views towards Dartmoor. Doorway opening into the ensuite shower room.

Ensuite Shower Room - 2.08m x 1.52m (6'10 x 5') - Comprising an enclosed shower, wall-mounted basin and built-in wc with a concealed cistern and a push-button flush. Towel rail/radiator. Tiled floor. Partly-tiled walls. Inset ceiling spotlights.

Garage - 5.89m x 2.97m (19'4 x 9'9) - Up-&-over door to the front elevation. Power. Pitched roof.

Outside - There is a small garden to the front of the property setting it back from the road. The rear garden has been landscaped with areas laid to artificial grass, paving and decking together with slate chippings.

Council Tax - Plymouth City Council
Council tax band E

Services - The property is connected to all the mains services: gas, electricity, water and drainage.

Agent's Note - There is a management fee of approximately �250 per year.

Property Ref: 11002660_34199508

Share:

Similar Properties

Staddiscombe, Plymouth

2 Bedroom Detached Bungalow | £365,000

Set within a lovely plot is this older-style detached bungalow enjoying a lovely position with views across the local di...

Elburton, Plymouth

4 Bedroom Semi-Detached House | £365,000

Superb opportunity to acquire this individual extended semi-detached house situated in a highly sought-after position wi...

Mount Wise, Plymouth

2 Bedroom Apartment | £360,000

Spend time in viewing this stunning 3rd floor apartment in the Mount Wise development. There are wonderful panoramic vie...

Plymstock, Plymouth

3 Bedroom Detached House | £375,000

Superbly-positioned detached house which has been extended. The accommodation is beautifully-presented throughout & brie...

Wembury, Plymouth

3 Bedroom Semi-Detached House | £375,000

Superbly-positioned semi-detached house situated in this highly sought-after coastal village. The accommodation briefly...

Heybrook Bay, Plymouth

3 Bedroom Detached Bungalow | Offers Over £375,000

Nicely-presented detached bungalow situated in this highly sought-after coastal village. From the front there are views...

Julian Marks Estate Agents (Plymstock)

2 The Broadway, Plymstock, Plymstock, Devon, PL9 7AW

01752 401128

How much is your home worth?

Use our short form to request a valuation of your property.

Request a Valuation

Mortgage Calculator

Amount Borrowed: £
Total Amount Repayable: £
Total Monthly Payment: £
©2025 The Guild of Property Professionals. All rights reserved. Terms and Conditions | Privacy Policy | Cookie Policy | Complaints Policy | Members Login
The Guild of Property Professionals Trading Address: 121 Park Lane, London W1K 7AG. GPEA Limited. Registered in England & Wales.  Company No: 02819824.  Registered Office Address: 2 St. Stephen's Court, St. Stephen's Road, Bournemouth, Dorset, England, BH2 6LA.  VAT Registration No: 576 8795 61
Book a Property Valuation Update Cookies Preferences