Plymstock, Plymouth

£350,000
SSTC
This property listing is now SSTC

2 Bedroom Barn Conversion for sale in Plymouth

1 2 1
  • Stone-built detached barn
  • 10 year build warranty & being sold with no onward chain
  • Superbly finished throughout
  • Entrance & inner hallways
  • Dual aspect living room & fitted kitchen
  • Downstairs wc/utility
  • 2 double bedrooms & first floor shower room
  • Parking & landscaped gardens
  • Stunning location close to central Plymstock
  • Owned solar panels, double-glazing & central heating

Detached stone-built barn with amazingly presented accommodation throughout with an exacting attention to detail. The rooms are beautifully finished & briefly comprise an entrance & inner hallway, open-plan dual aspect living room opening onto the south-westerly facing courtyard style garden, superbly fitted kitchen plus a downstairs wc/utility. On the first floor a landing provides access to 2 double bedrooms & a shower room. Outside there are landscaped gardens to include an area laid to lawn, enclosed patio area plus parking for 2 cars. The property has owned solar panels, double-glazing & central heating. The property has a 10 year build warranty & is being sold with no onward chain.

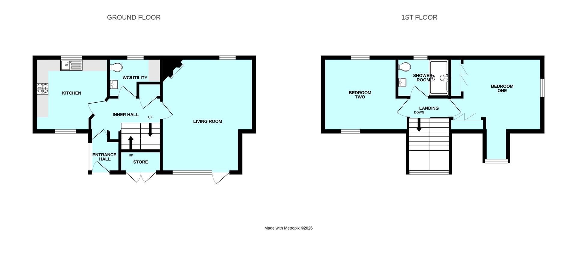
The Barn 50B Dunstone Road, Plymstock, Pl9 8Sf -

Accommodation - Front door opening into the entrance hall.

Entrance Hall - 1.96m x 1.40m (6'5 x 4'7) - Inset ceiling spotlights. Obscured double-glazed windows to one side. Further partly-glazed doorway opening into the inner hall.

Inner Hall - 3.45m x 2.74m (11'4 x 9') - Providing access to the accommodation. Staircase ascending to the first floor. Recessed cupboard with shelf.

Open-Plan Living Room - 5.08m x 3.81m (16'8 x 12'6) - An open-plan dual aspect room with a corner-sited fireplace with a stone surround, hearth and mantel. Window to the rear elevation and full-height windows and doors to the front elevation opening onto the south-west facing patio. Ample space for seating and dining.

Kitchen - 3.20m x 3.18m (10'6 x 10'5) - Fitted with a comprehensive range of matching cabinets and work surfaces with matching splash-backs. Inset single drainer sink unit. Built-in oven and hob with a glass splash-back and a cooker hood above. Integrated fridge-freezer. Integrated dishwasher. Inset ceiling spotlights. Dual aspect with windows to the front and rear elevations

Downstairs Wc/Utility - 2.21m x 1.65m (7'3 x 5'5) - Fitted with a wall-hung wc with a push-button flush and basin with a tiled surround and storage beneath. Mirrored cabinet. Consumer unit. Wall-mounted Vaillant gas boiler. Space and plumbing for a washing machine. Obscured window to the rear elevation.

First Floor Landing - Providing access to the first floor accommodation. Feature window to the front elevation providing lovely views. Loft hatch.

Bedroom One - 4.50m x 3.94m max dimensions (14'9 x 12'11 max dim - Dual aspect with windows to the front and side elevations. 2 built-in wardrobes.

Bedroom Two - 3.81m x 3.20m max dimensions (12'6 x 10'6 max dime - Dual aspect with windows to the front and rear elevations.

Shower Room - 2.01m x 1.60m (6'7 x 5'3) - Superbly fitted with a large walk-in shower with a fixed glass screen and a built-in shower system, wall-hung wc with a push-button flush and a basin with a cupboard beneath. Mirrored bathroom cabinet. Chrome towel rail/radiator. Fully-tiled walls. Inset ceiling spotlights. Obscured window to the rear elevation.

Outside - There is a paved patio area, a lawn and a tarmac driveway. Electric charging station on the driveway.

Property Ref: 34510929

Share:

Similar Properties

Oreston Road, Plymouth

4 Bedroom Semi-Detached House | £350,000

Superbly-positioned bay-fronted 1930s semi-detached house, ideally located close to Oreston Primary School and a short w...

Elburton, Plymouth

4 Bedroom Semi-Detached House | £350,000

Superb opportunity to acquire this individual extended semi-detached house situated in a highly sought-after position wi...

Elburton, Plymouth

2 Bedroom Detached Bungalow | £350,000

A pleasantly situated detached bungalow in a tucked-away position occupying a level site with gardens to the front & rea...

Sherford, Plymouth

4 Bedroom Terraced House | £369,950

Superbly-presented mid-terraced townhouse in a lovely position within Sherford overlooking the green & woodland. The acc...

Sherford, Plymouth

4 Bedroom End of Terrace House | £375,000

Superbly-presented 3-storey townhouse situated in a lovely position overlooking the lake and enjoying a south-westerly f...

Sherford, Plymouth

4 Bedroom Semi-Detached House | £375,000

Superbly-presented 3-storey semi-detached house with spacious accommodation. Briefly, the accommodation comprises an ent...

Julian Marks Estate Agents (Plymstock)

2 The Broadway, Plymstock, Plymstock, Devon, PL9 7AW

01752 401128

How much is your home worth?

Use our short form to request a valuation of your property.

Request a Valuation

Mortgage Calculator

Amount Borrowed: £
Total Amount Repayable: £
Total Monthly Payment: £
©2026 The Guild of Property Professionals. All rights reserved. Terms and Conditions | Privacy Policy | Cookie Policy | Complaints Policy | Members Login
The Guild of Property Professionals Trading Address: 121 Park Lane, London W1K 7AG. GPEA Limited. Registered in England & Wales.  Company No: 02819824.  Registered Office Address: 2 St. Stephen's Court, St. Stephen's Road, Bournemouth, Dorset, England, BH2 6LA.  VAT Registration No: 576 8795 61
Book a Property Valuation Update Cookies Preferences