Yealm Road, Newton Ferrers, Plymouth, Devon

Guide Price
£725,000

4 Bedroom Not Specified for sale in Plymouth

4
  • Prime waterside position overlooking the River Yealm and harbour
  • Rare renovation opportunity with exceptional potential
  • Four bedrooms and spacious accommodation approaching 2,000 sq ft
  • Balcony with scope to extend subject to consents
  • Area of land to the front of the property adjoining the foreshore
  • Substantial garage with sail loft and further potential
  • Shared quay access with rights to an outhaul mooring
  • Sought after Newton Ferrers location close to village amenities

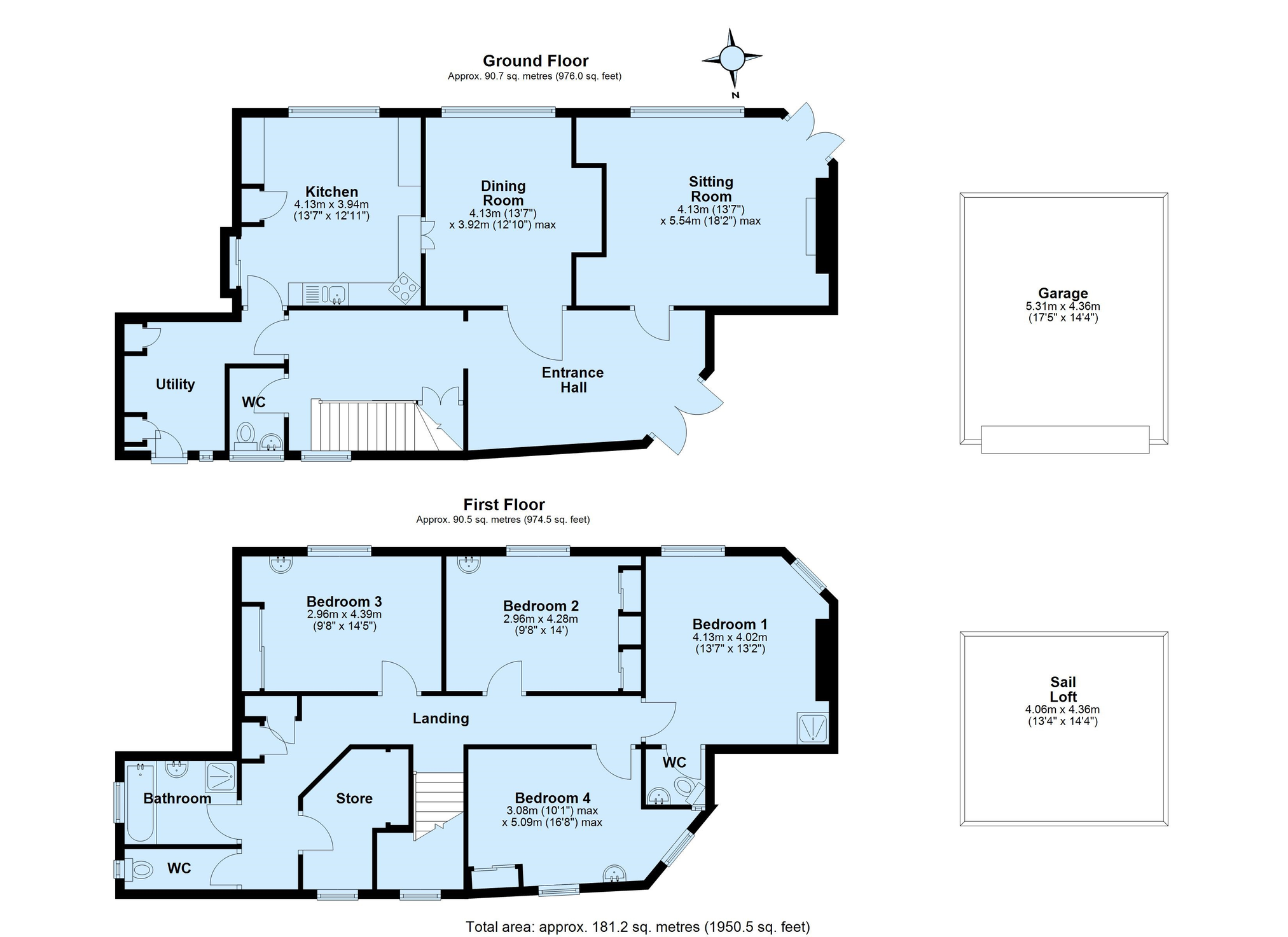
On the edge of the River Yealm, where the water shifts with the tides and sailing boats lie quietly at their moorings, Cliff House occupies one of the village’s most coveted positions. Its uninterrupted views across the harbour are breathtaking, and the house itself, built in the 1950s and once part of a former hotel, now offers an exciting opportunity for redevelopment/renovation. Approaching 2,000 sq ft, the accommodation is generous for a waterside property and opens up extraordinary potential for those looking to create a contemporary riverside home.

Cliff House was designed to make the most of its riverside outlook, with panoramic harbour views from both the principal living spaces and many of the bedrooms. On the lower ground floor, an unusually wide entrance hall features the hotel’s original sweeping staircase, setting the tone for the feel of the property.

The main reception rooms including a sitting room, dining room and kitchen are arranged across the first floor, each bathed in natural light and enjoying outstanding estuary vistas. A small balcony provides the perfect spot for watching the tides, while a utility and guest cloakroom complete the accommodation at this level. Upstairs, four well-proportioned bedrooms, a family bathroom and a separate WC provide further space, with several bedrooms benefitting from breathtaking water views.

Outside, Cliff House owns a section of land directly in front of the property, accessed from the public footpath through a pedestrian gate. This provides a sense of both security for helping to protect the outlook from the property as well giving the property an area of land that adjoins the foreshore, providing potential subject to the necessary consents from the harbour master, Crown Estates and planning to further enhance the properties connection with the water. A balcony leads off the sitting room, offering elevated views across the estuary, with scope, subject to the necessary planning consents, to create a larger balcony along the river facing elevation. Opposite the house on Yealm Road, a substantial garage, originally built to a double width in the 1950s, is accessed directly from Yealm Road. Above the garage, a former sail loft provides additional storage as well as having potential for reinvention, perhaps as a home office or studio with a viewing terrace, subject to the necessary consents.

From its privileged position on the southern bank of the River Yealm, Cliff House enjoys shared access across a neighbouring properties quay, leading to an outhaul mooring, subject to the necessary transfer application with the Harbour Master. This allows for vessels of up to 16 feet, ideal for sailing, kayaking or paddleboarding directly from the property. The quay is owned by 99 Yealm Road, including the stone stairs leading down to the foreshore. Four properties, 99, 97, 95 (Cliff House), and 89 Yealm Road, hold rights to attach mooring ropes to the quay, with each contributing to its maintenance and upkeep. The standard contribution is understood to be 25 percent per property, though this should be verified against individual title deeds. In addition, Cliff House benefits from rights of way across a neighbouring pathway, providing pedestrian access both down to the public footpath as well as up to Yealm Road. The Cliff House owner has exclusive use of the Quay for recreational purposes on each Wednesday of each week in every year.

From every level, Cliff House looks directly across the harbour and deep water moorings, a constantly shifting view that anchors the house to its setting. The scale of the accommodation, together with outside space, garage and shared foreshore access, offers rare scope for transformation. For those seeking a project in one of Newton Ferrers’ most prized waterside positions, this is an opportunity of exceptional promise.

Services
Mains water, electricity, gas and drainage.

EPC Rating
Current: E - 47, Potential: D - 68, Rating: E

Council Tax
Band G

Tenure
Freehold

Authority
South Hams District Council, Follaton House, Plymouth Road, Totnes, Devon, TQ9 5HE, Tel: 01803 861234

Fixtures and Fittings
All items in the written text of these particulars are included in the sale. All others are expressly excluded regardless of inclusion in any photographs. Purchasers must satisfy themselves that any equipment included in the sale of the property is in satisfactory order.

Viewing
Strictly by appointment with the sole agents, Marchand Petit, Newton Ferrers Office. Tel: 01752 873311.

Important Information

  • This is a Freehold property.
  • This Council Tax band for this property is: G

Property Ref: QZT829086

Share:

Similar Properties

Lutton, Ivybridge

4 Bedroom Detached House | Guide Price £700,000

Unexpectedly re-available. A beautifully restored former reading room, now an elegant family home in a picturesque moorl...

Brown Hill Lane, Wembury, Plymouth, Devon

4 Bedroom Detached House | Guide Price £695,000

Elegant 1930s detached home on a south-facing, one-third acre plot with countryside views. Includes 4 bedrooms, 2 recept...

Renney Road, Heybrook Bay, Plymouth, Devon

4 Bedroom Detached Bungalow | Guide Price £695,000

A contemporary detached bungalow with panoramic views and sunsets across Plymouth Sound to the city and the Rame Peninsu...

Church Park, Newton Ferrers

3 Bedroom Detached House | Guide Price £750,000

Prime, southerly-facing home with estuary views, double garage and rare level parking. Terraced gardens. Over 1,400 sq f...

Yealm View Road, Newton Ferrers

3 Bedroom Detached Bungalow | Guide Price £750,000

Lateral Living by the Estuary — A Stylish, Energy-Efficient Home Just a Short Walk from Newton Ferrers Village and Water...

Popplestone Park, Brixton, Plymouth, Devon

5 Bedroom Not Specified | Guide Price £750,000

Executive five-bedroom detached home in a private five-house cul-de-sac, 2,220 sq ft plus double garage and garden room/...

Marchand Petit (Plymouth)

Parsonage Road, Newton Ferrers, Plymouth, Devon, PL8 1AT

01752 873 311

How much is your home worth?

Use our short form to request a valuation of your property.

Request a Valuation

Mortgage Calculator

Amount Borrowed: £
Total Amount Repayable: £
Total Monthly Payment: £
©2026 The Guild of Property Professionals. All rights reserved. Terms and Conditions | Privacy Policy | Cookie Policy | Complaints Policy | Members Login
The Guild of Property Professionals Trading Address: 121 Park Lane, London W1K 7AG. GPEA Limited. Registered in England & Wales.  Company No: 02819824.  Registered Office Address: 2 St. Stephen's Court, St. Stephen's Road, Bournemouth, Dorset, England, BH2 6LA.  VAT Registration No: 576 8795 61
Book a Property Valuation Update Cookies Preferences