Plympton, Plymouth

£450,000
SSTC
This property listing is now SSTC

3 Bedroom Detached House for sale in Plymouth

2 3 2
  • Detached Fletcher-built house
  • Stunningly presented throughout
  • Lounge
  • Kitchen/diner
  • 3 bedrooms
  • Family bathroom, ensuite facilities & additional WC
  • Utility & gym
  • Garage & driveway
  • Magnificently-presented southerly-facing rear garden
  • Fantastic views over Plympton & beyond

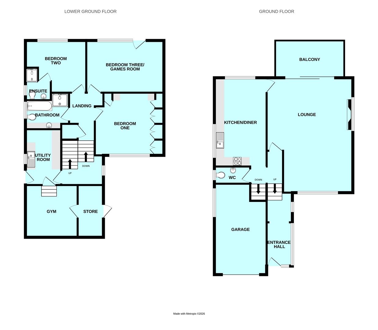
This Fletcher-built home is situated in an elevated position with panoramic views over Plympton. Beautifully-presented throughout, the entry level includes an entrance hall & an extensive lounge opening onto a balcony, kitchen & cloakroom whilst the lower floor comprises a utility room & gym, 3 bedrooms with a principal ensuite & family bathroom. A driveway provides off-road parking for 2 vehicles & leads to a garage. There is a garden to the side & a magnificent southerly-facing rear garden. This property's versatility, in addition to the space & storage are just a few of its attributes.

New Park Road, Plympton, Plymouth Pl7 1Jf -

Accommodation - Obscured uPVC double-glazed door opening into the entrance hall.

Entrance Hall - 4.83 x 1.43 (15'10" x 4'8") - Doors opening to the lounge, kitchen/diner and wc. Stairs descending to the lower ground floor. uPVC double-glazed window to the side elevation overlooking the garden, with views out over Plymouth.

Lounge - 6.79 x 5.16 (22'3" x 16'11") - Feature electric fireplace set into a bespoke wooden hearth with surround and mantel. uPVC double-glazed sliding patio doors to the front elevation leading onto a balcony. The room is dual aspect with uPVC double-glazed windows to the front and side elevations.

Balcony - The balcony offers beautiful, elevated views over Plympton and beyond and features hardwood flooring and stainless-steel balustrades with toughened glass panelling.

Kitchen/Diner - 5.24 x 3.02 (17'2" x 9'10") - Beautifully fitted with a matching range of base and wall-mounted units incorporating a tiled worktop with a wooden surround and an inset 4-ring electric hob. Inset composite one-&-a-half bowl sink unit with mixer tap and tiled splash-back. Integrated oven and grill. Space for an upright fridge/freezer. Stainless-steel extractor. Dual aspect with uPVC double-glazed windows to the side and rear elevations, the latter overlooking the garden, with views out over Plympton.

Wc - 2.04 x 1.01 (6'8" x 3'3") - Fitted with a low-level wc and pedestal wash handbasin. Obscured uPVC double-glazed window to the side elevation.

Lower Landing - 5.67 x 2. (18'7" x 6'6") - Doors opening to the lower floor accommodation. Storage cupboard.

Utility - 3.20 x 2.16 (10'5" x 7'1") - Fitted with a range of matching base and wall-mounted units with an inset one-&-a-half bowl stainless-steel sink with mixer tap. Spaces for a washing machine and tumble dryer. Boiler. Door leading to the gym. Obscured uPVC double-glazed door to the side providing access to the gardens. uPVC double-glazed window to the side elevation.

Gym - 3.09 x 3.08 (10'1" x 10'1") - Stairs ascending to the room. Fully-tiled floor. Light, power and heating. Storage cupboard.

Bedroom One - 4.13 x 3.61 (13'6" x 11'10") - Range of fitted bedroom furniture including a bed storage surround, wardrobes and a dresser. uPVC double-glazed window to the front elevation.

Bedroom Two - 3.60 x 3.05 (11'9" x 10'0") - Door opening to the ensuite. uPVC double-glazed window to the rear elevation.

Ensuite - 1.92 x 1.57 (6'3" x 5'1") - Fitted with a matching suite comprising a shower cubicle, pedestal wash handbasin and close-coupled wc. Obscured uPVC double-glazed window to the side elevation. Extractor.

Bedroom Three/Games Room - 4.58 x 3.05 (15'0" x 10'0") - uPVC double-glazed door opening to the garden. Dual aspect with uPVC double-glazed windows to the side and rear elevations.

Bathroom - 2.51 x 1.74 (8'2" x 5'8") - Fitted with an enclosed shower, panelled bath, wash handbasin set onto a storage unit and close-coupled wc. Chrome heated towel rail. Obscured uPVC double-glazed window to the side elevations.

Outside - The property is approached via a tarmac driveway providing off-road parking for 2 vehicles and leading to the garage. Steps descend to the front door. To one side of the property is a tiered garden planted with mature shrubs and trees and a rockery area, leading to the rear garden. Fully enclosed and southerly-facing, the rear garden is also tiered with a patio area adjacent to the house and attractive red stone chippings. The remainder is mainly laid to lawn, bordered by mature planting. Beautifully kept and landscaped - perfect for family entertaining.

Council Tax Pcc - Plymouth City Council
Council Tax Band: E

Services - The property is connected to all the mains services: gas, electricity, water and drainage.

What3words - ///crab.cheeks.bless

Property Ref: 34451768

Share:

Similar Properties

Plympton, Plymouth

2 Bedroom Detached House | Offers Over £450,000

Unique detached property, nestled away in the grounds of St Elizabeth House, situated in a spot of tranquility & natural...

Plympton, Plymouth

3 Bedroom Detached House | £425,000

Tan Cottage is a wonderfully restored, Grade II Listed 13th century property, situated in the St Maurice area of Plympto...

Plympton, Plymouth

4 Bedroom Detached House | £410,000

Situated in a quiet cul-de-sac in the Chaddlewood area of Plympton is this beautifully-presented detached family home wi...

Plympton, Plymouth

4 Bedroom Detached House | £470,000

Wonderfully-situated detached family home, located on a prestigious street within Plympton, briefly comprising an entran...

Plympton, Plymouth

4 Bedroom Detached House | Offers Over £475,000

This exceptional, detached property is situated in a quiet cul-de-sac in the Chaddlewood area of Plympton, benefiting fr...

Plympton, Plymouth

4 Bedroom Detached House | £550,000

This charming, detached period cottage, located in the historic, highly sought-after area of Plympton St Maurice, is bur...

Julian Marks Estate Agents (Plympton)

Plympton, Plymouth, PL7 2AA

01752 301002

How much is your home worth?

Use our short form to request a valuation of your property.

Request a Valuation

Mortgage Calculator

Amount Borrowed: £
Total Amount Repayable: £
Total Monthly Payment: £
©2026 The Guild of Property Professionals. All rights reserved. Terms and Conditions | Privacy Policy | Cookie Policy | Complaints Policy | Members Login
The Guild of Property Professionals Trading Address: 121 Park Lane, London W1K 7AG. GPEA Limited. Registered in England & Wales.  Company No: 02819824.  Registered Office Address: 2 St. Stephen's Court, St. Stephen's Road, Bournemouth, Dorset, England, BH2 6LA.  VAT Registration No: 576 8795 61
Book a Property Valuation Update Cookies Preferences