Plymstock, Plymouth

£325,000
SSTC
This property listing is now SSTC

4 Bedroom Semi-Detached House for sale in Plymouth

1 4 2
  • Extended semi-detached house
  • Entrance hall & downstairs cloakroom/wc
  • Lounge
  • Open-plan kitchen/dining room with an extended conservatory
  • 4 bedrooms
  • Ensuite shower room & walk-in wardrobe to bedroom one & family bathroom
  • Garage & driveway
  • Utility room
  • Garden to the rear
  • Double-glazing & central heating

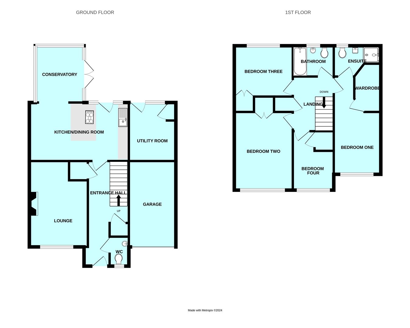
Extended semi-detached house in a very popular position. The accommodation briefly comprises an entrance hall with downstairs cloakroom/wc, lounge & an open-plan kitchen/dining room extending into a conservatory. overlooking the garden. On the first floor there are 4 bedrooms, family bathroom & ensuite shower room & walk-in wardrobe to bedroom one. Garage & brick-paved driveway. Utility room. Garden to the rear. Double-glazing & central heating.

Holmwood Avenue, Plymstock, Pl9 9Ez -

Accommodation - Front door opening into the entrance hall.

Entrance Hall - 5.64m x 1.80m (18'6 x 5'11) - Hard wood flooring. Staircase ascending to the first floor. Open-plan area beneath the stairs. Utility cupboard with plumbing for washing machine and shelving above. Further built-in storage cupboard with shelving.

Downstairs Cloakroom/Wc - Comprising a low level flush wc and wall-mounted basin with a tiled splash-back. Obscured window to the front elevation.

Lounge - 4.42m x 3.23m (14'6 x 10'7) - Hard wood flooring. Window to the front elevation.

Kitchen/Dining Room - 5.13m x 3.00m (16'10 x 9'10) - An open-plan kitchen/dining room running the full-width of the property. Ample space for dining table and chairs. Modern fitted kitchen with matching fascias and work surfaces. Built-in oven. Electric hob. Inset sink. Integral fridge-freezer. Larder cupboard with pull-out shelving. Breakfast bar with cupboards beneath. Inset ceiling spotlights. In the kitchen area there are 2 windows and a door to the rear elevation. Within the dining area there is open-plan access into the conservatory.

Conservatory - 2.69m x 2.26m (8'10 x 7'5) - Constructed in uPVC double-glazing. Pitched double-glazed roof. French doors providing access to outside. Views over the garden.

First Floor Landing - Providing access to the first floor accommodation. Loft access hatch. Recessed cupboard with slatted shelving.

Bedroom One - 4.57m x 2.46m max dimensions (15' x 8'1 max dimens - Window to the front elevation.Walk-in wardrobe with lighting and hanging rail and shelf. Inset ceiling spotlights. Doorway opening to the ensuite shower room.

Ensuite Shower Room - 2.16m x 1.50m max dimensions (7'1 x 4'11 max dimen - Comprising an enclosed tiled shower with wall-mounted controls and bi-folding glass screen, basin with storage beneath and wc. Inset ceiling spotlights. Obscured window to the rear elevation.

Bedroom Two - 3.99m x 3.07m (13'1 x 10'1) - Window to the front elevation. Recessed wardrobe.

Bedroom Three - 3.00m x 2.62m (9'10 x 8'7) - Window to the rear elevation with views over the garden. Recessed wardrobe.

Bedroom Four - 2.84m x 2.03m max dimensions (9'4 x 6'8 max dimens - Window to the front elevation. Over-stairs cupboard with hanging rail and shelf.

Bathroom - 2.06m x 1.68m (6'9 x 5'6) - Comprising a bath with a shower system over, rail and curtain, pedestal basin and wc. Obscured window to the rear elevation.

Utility Room - 3.15m x 2.13m (10'4 x 7') - Situated behind the garage and accessed externally. Double-glazed door with full-height window to the side. Power and lighting. Cupboard housing the Ideal Logic gas boiler (no plumbing for washing machine).

Garage - 4.37m x 2.51m (14'4 x 8'3) - Up-&-over door to the front elevation. Power and lighting.

Outside - A brick-paved driveway leads to the garage and extends across the front elevation together with shrub and flower beds. Outside lighting. The rear garden has a generous patio area beyond which is an area laid to artificial grass.

Council Tax - Plymouth City Council
Council tax band C

Services - The property is connected to all the mains services: gas, electricity, water and drainage.

Property Ref: 34447789

Share:

Similar Properties

Plymstock, Plymouth

2 Bedroom Detached Bungalow | £325,000

Superbly-presented older-style double bay-fronted detached bungalow in a lovely tucked-away position in a highly sought-...

Elburton, Plymouth

3 Bedroom Semi-Detached House | Offers Over £325,000

A beautifully-presented older-style extended semi-detached house in a lovely position close to Elburton village. The pro...

Stonehouse, Plymouth

3 Bedroom Apartment | £325,000

Superbly located first floor apartment located within this secure development of apartments with lovely views across Sto...

Oreston, Plymouth

3 Bedroom Semi-Detached House | £330,000

Located in the very popular district of Oreston is this older-style 3-bedroom semi-detached property which enjoys spacio...

Plymstock, Plymouth

3 Bedroom Semi-Detached Bungalow | £335,000

Superb & spacious semi-detached bungalow in a highly popular position. The accommodation has been extended & briefly com...

Plymstock, Plymouth

4 Bedroom Semi-Detached House | £339,950

This is a fabulous opportunity to purchase a great-sized family home convenient to central Plymstock. The property has g...

Julian Marks Estate Agents (Plymstock)

2 The Broadway, Plymstock, Plymstock, Devon, PL9 7AW

01752 401128

How much is your home worth?

Use our short form to request a valuation of your property.

Request a Valuation

Mortgage Calculator

Amount Borrowed: £
Total Amount Repayable: £
Total Monthly Payment: £
©2026 The Guild of Property Professionals. All rights reserved. Terms and Conditions | Privacy Policy | Cookie Policy | Complaints Policy | Members Login
The Guild of Property Professionals Trading Address: 121 Park Lane, London W1K 7AG. GPEA Limited. Registered in England & Wales.  Company No: 02819824.  Registered Office Address: 2 St. Stephen's Court, St. Stephen's Road, Bournemouth, Dorset, England, BH2 6LA.  VAT Registration No: 576 8795 61
Book a Property Valuation Update Cookies Preferences