Dunstone, Plymouth

£499,950

2 Bedroom Detached Bungalow for sale in Plymouth

2 2 1
  • Detached bungalow in a highly sought-after South Hams hamlet location
  • Superbly-presented throughout
  • Set within generous private grounds
  • Entrance porch & inner hall
  • Living room with wood burner
  • Fitted kitchen
  • 2 large double bedrooms & shower room
  • Drive & garage
  • Gardens with a high degree of privacy & seclusion
  • No onward chain

Beautifully-presented detached bungalow situated within this highly sought-after hamlet, nestled in the South Hams countryside on the outskirts of Yealmpton. The property is situated within large secluded grounds offering a high degree of privacy and seclusion with fabulous countryside views. The accommodation briefly comprises an entrance porch, living room with wood burner, fitted kitchen, inner hallway, 2 large double bedrooms and shower room. There is the convenience of a drive, garage and work shop. Double-glazing & electric hot water and heating. Vacant possession with no onward chain.

Little Orchard, Dunstone, Pl8 2El -

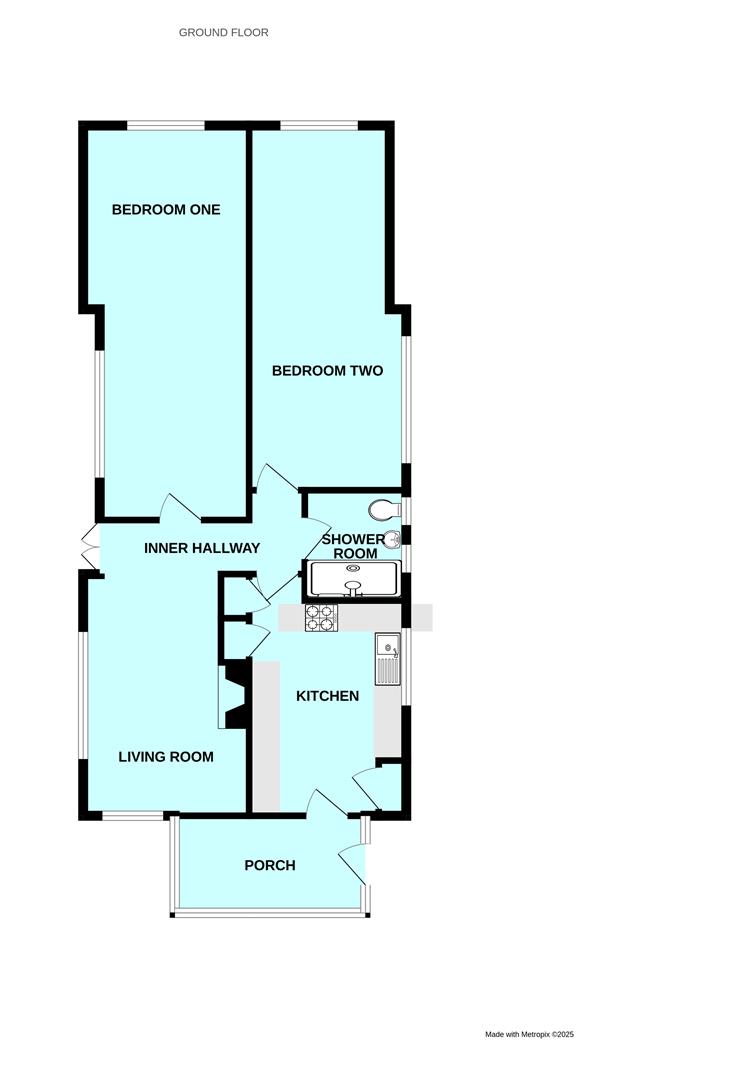
Accommodation - Front door opening into the entrance porch.

Entrance Porch - 3.48m x 1.73m (11'5 x 5'8) - Glazing to 3 sides providing nice views. Glazed door opening into the kitchen.

Kitchen - 3.68m x 2.36m (12'1 x 7'9) - Fitted with a range of base and wall-mounted cabinets with matching fascias and work surfaces. Inset single drainer sink unit. Space for free-standing appliances. Electric meter and consumer unit. Recessed cupboard housing the electric water heater. Further recessed cupboard.

Living Room - 5.59m x 3.20m at widest point (18'4 x 10'6 at wide - A dual aspect room with fabulous views over the gardens and towards the surrounding countryside. Wood burner set onto a slate hearth. French doors leading to the garden.

Inner Hallway - 1.98m x 1.07m (6'6 x 3'6) - Providing an open-plan access to the remaining accommodation.

Bedroom One - 7.16m x 3.00m at widest point (23'6 x 9'10 at wide - A dual aspect room with views over the garden towards the surrounding countryside.

Bedroom Two - 6.55m x 2.69m (21'6 x 8'10) - A dual aspect room with views over the garden.

Shower Room - 2.36m x 1.45m (7'9 x 4'9) - Comprising a large walk-in shower with a shower system with a fixed head and an additional rinsing attachment plus a fixed glass screen, pedestal basin and wc. Chrome towel rail/radiator. Waterproof panelling to 2 walls. Obscured window to the side elevation.

Garage - 4.47m x 2.49m (14'8 x 8'2) - Up-&-over door to the front elevation.

Workshop/Store - 5.23m x 3.02m at widest point (17'2 x 9'11 at wide -

Outside - Little Orchard is approached through twin galvanised gates which open onto a driveway leading to the property. There is also a brick-paved parking area leading to the garage. Gardens surround the property offering a high degree of privacy and seclusion, with areas laid to lawn and paving together with a variety of mature shrubs etc.

Council Tax - South Hams District Council
Council tax band D

Property Ref: 11002660_34194059

Share:

Similar Properties

Mount Batten, Plymouth

4 Bedroom House | £490,000

Most delightful property being sold with no onward chain located in the ever popular waterside development of Spinnaker...

Tamerton Foliot, Plymouth

4 Bedroom Detached House | £489,950

Superbly-presented executive-style detached family house with accommodation briefly comprising an entrance hall with dow...

Sherford, Plymouth

5 Bedroom Detached House | £489,950

A superbly presented modern detached home occupying a lovely corner position with landscaped gardens, also including an...

Elburton, Plymouth

3 Bedroom Detached House | £500,000

Beautifully-presented individual property in a highly sought-after location within Elburton, close to the village & othe...

Wembury, Plymouth

4 Bedroom Detached House | Offers Over £500,000

Superbly-presented & beautifully-positioned detached dormer property with incredible countryside & sea views. The accomm...

Sherford, Plymouth

5 Bedroom End of Terrace House | Offers in excess of £500,000

Superbly-presented brick-faced end-terraced townhouse with feature high ceilings situated in a lovely position within Sh...

Julian Marks Estate Agents (Plymstock)

2 The Broadway, Plymstock, Plymstock, Devon, PL9 7AW

01752 401128

How much is your home worth?

Use our short form to request a valuation of your property.

Request a Valuation

Mortgage Calculator

Amount Borrowed: £
Total Amount Repayable: £
Total Monthly Payment: £
©2025 The Guild of Property Professionals. All rights reserved. Terms and Conditions | Privacy Policy | Cookie Policy | Complaints Policy | Members Login
The Guild of Property Professionals Trading Address: 121 Park Lane, London W1K 7AG. GPEA Limited. Registered in England & Wales.  Company No: 02819824.  Registered Office Address: 2 St. Stephen's Court, St. Stephen's Road, Bournemouth, Dorset, England, BH2 6LA.  VAT Registration No: 576 8795 61
Book a Property Valuation Update Cookies Preferences