Drayton, Hampshire

Guide Price
£370,000
SSTC
This property listing is now SSTC

3 Bedroom End of Terrace House for sale in Portsmouth

3 1
  • An Extended End of Terrace Family Home
  • Three Bedrooms, Upstairs Family Bathroom
  • Open Plan Kitchen Leading to Dining/Family Area
  • Downstairs Cloakroom
  • Westerly Facing Rear Garden & Home Office/Bar
  • Off Road Parking & Side Pedestrian Access
  • Close to Amenities, Shops & Catchment for Local Schools (subject to confirmation)
  • Viewing Highly Recommended
  • Council Tax Band C - Portsmouth City Council

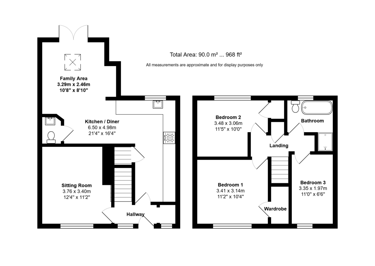
PROPERTY SUMMARY An extended, and well-presented end of terrace family home which is arranged over two floors with 968 sq ft of living space and comprises: hallway, siting room, 16' fitted kitchen opening to 16' dining room incorporating family area and cloakroom on the ground floor with three bedrooms and a family bathroom on the first floor. To the front is off road parking for approximately two cars and to the rear is a low maintenance westerly facing garden with 10' detached home office/bar. Located in a popular residential location within easy access of local shopping amenities, bus routes, commutable road links and within the catchment of both Solent and Springfield Schools (subject to confirmation). Early viewing of this impressive family home is strongly recommenced in order to appreciate both the accommodation and location on offer. 

ENTRANCE Lowered kerb leading to tarmac driveway for approximately two cars with brick retaining walls to either side, to the left hand side of the property is pedestrian access to rear garden, steps leading up to main front door with frosted panels with frosted windows to either side leading to: 

HALLWAY Wood flooring, radiator, staircase rising to first floor, controls for central heating, recessed storage area with range of shelving, ceiling coving, part-glazed doors to primary rooms. 

SITTING ROOM 12' 4" x 11' 2" decreasing to 9'7" (3.76m x 3.4m) Double glazed window with blinds to front aspect, ceiling coving, contemporary radiator. 

OPEN PLAN KITCHEN INC. DINING ROOM & FAMILY AREA 16' 4" x 6' 5" minimum, opening to maximum 21'4"(4.98m x 1.96m) L shaped leading to dining and family area, understairs storage cupboard, tall contemporary style radiator, gloss tiled flooring.

Comprehensive range of wall and floor units with wood block work surface, corner display shelving, eye-level double oven and grill with cupboards over and under, ceramic tiled surrounds, inset four ring gas hob with pan drawers under, space and plumbing for washing machine and dishwasher, butler sink with mixer tap and wooden drainer, space for tumble dryer, ceiling spotlights and coving, space for American style fridge/freezer, double glazed window to rear aspect, square opening leading to:
 

FAMILY AREA 10' 8" x 8' 10" (3.25m x 2.69m) Contemporary style tall radiator, ceiling spotlights, matching tiled flooring, door to cloakroom.
Family area: Twin double glazed doors with blinds leading to rear garden, pitched ceiling with spotlights and skylight window, recessed shelving with space and wiring for T.V., dimmer switch, matching flooring, tall contemporary style radiator.
 

CLOAKROOM Ceramic tiled to half wall level, wash hand basin with mixer tap, heated towel rail, concealed cistern w.c. with shelf over, extractor fan, ceiling spotlights, tiled flooring. 

FIRST FLOOR Landing, built-in airing cupboard with range of shelving, radiator, access via extendable ladder to loft space housing boiler supplying domestic hot water and central heating (not tested), doors to primary rooms. 

BEDROOM 1 11' 2" x 10' 2" (3.4m x 3.1m) Double glazed window with blinds to front aspect, radiator, ceiling coving, door to: 

LARGE WALK-IN WARDROBE Range of shelving and hanging space. 

BEDROOM 2 11' 5" maximum x 10' 0" (3.48m x 3.05m) Double glazed window with blinds to rear aspect, radiator, ceiling coving, built-in wardrobe with hanging rail and shelving.  

BEDROOM 3 11' 0" x 6' 6" (3.35m x 1.98m) Double glazed window with blind to front aspect, radiator, ceiling coving. 

BATHROOM L shaped, white suite comprising: panelled bath with mixer tap and shower attachment, close coupled w.c. with shelf over, wash hand basin with cupboards under, ceramic tiled to half wall level, double glazed frosted window to rear aspect, mirror fronted medicine cabinet, chrome heated towel rail, tiled flooring, recessed shower cubicle with wall controls, drench style hood and separate shower attachment, ceiling spotlights. 

OUTSIDE Directly to the rear of the property is a split-level patio area leading to central lawn, cold water tap, lighting, the garden is enclosed by fence panelling on both sides with shingle borders, to the western end of the garden is concrete plinth with pergola. 

DETACHED HOME OFFICE/BAR 10' 9" x 10' 7" (3.28m x 3.23m) L shaped bar area with wood block work surface, ceiling spotlights, double glazed window and door to front aspect, wiring for wall mounted T.V., power points, carpet.  

AGENTS NOTES Council Tax Band C - Portsmouth City Council
Broadband – ADSL/FTTC Fibre Checker (openreach.com)
Flood Risk – Refer to - (GOV.UK (check-long-term-flood-risk.service.gov.uk)

 

Property Ref: 100157007859

Share:

Similar Properties

Drayton, Hampshire

3 Bedroom End of Terrace House | Guide Price £367,000

An end of terrace family home located in a popular residential area of Cosham Drayton within easy access to local shoppi...

Drayton, Hampshire

3 Bedroom End of Terrace House | Guide Price £360,000

An end of terrace family home which is situated in a desirable location close to local amenities, shops, bus routes and...

Cosham, Hampshire

3 Bedroom Terraced House | Guide Price £360,000

A three bedroom, centre of terrace family home which has been updated and redecorated by the current owners and comprise...

Farlington, Hampshire

3 Bedroom Detached Bungalow | Guide Price £375,000

A detached, three bedroom bungalow which is situated in an elevated location with views towards Langstone Harbour and Ha...

Cosham, Hampshire

4 Bedroom Town House | Guide Price £375,000

A four-bedroom three storey townhouse which is situated in a popular location close to amenities, shops, surgeries, comm...

Port Solent, Hampshire

2 Bedroom Apartment | £392,000

A purpose built second floor apartment located in Genoa House which is on the western side of Port Solent in Lock Approa...

Town & Country Southern (Drayton, Portsmouth)

Drayton, Portsmouth, Hampshire, PO6 2AA

02393 277 288

How much is your home worth?

Use our short form to request a valuation of your property.

Request a Valuation

Mortgage Calculator

Amount Borrowed: £
Total Amount Repayable: £
Total Monthly Payment: £
©2026 The Guild of Property Professionals. All rights reserved. Terms and Conditions | Privacy Policy | Cookie Policy | Complaints Policy | Members Login
The Guild of Property Professionals Trading Address: 121 Park Lane, London W1K 7AG. GPEA Limited. Registered in England & Wales.  Company No: 02819824.  Registered Office Address: 2 St. Stephen's Court, St. Stephen's Road, Bournemouth, Dorset, England, BH2 6LA.  VAT Registration No: 576 8795 61
Book a Property Valuation Update Cookies Preferences