140 Oldham Road, Ripponden HX6 4EA

Offers Over
£550,000

4 Bedroom House for sale in Ripponden

3 4 3
  • DETACHED FOUR BEDROOM FAMILY HOME
  • OVER 3,500 SQ FT
  • SOUTH-FACING BALCONY WITH VIEWS
  • ENERGY-EFFICIENT WITH SOLAR PANELS & BATTERY STORAGE
  • WORKSHOP, GARAGE AND LARGE PLAYROOM
  • PRIVATE BALCONIES TO TWO BEDROOMS
  • GARAGE AND OFF-STREET PARKING
  • EXCELLENT LOCAL SCHOOLS NEARBY
  • GREAT COMMUTER LINKS TO M62
  • ONLY 500M FROM THE CENTRE OF RIPPONDEN



Located in the heart of Ripponden, this spacious and versatile four-bedroom detached home offers over 3,500 sq ft of energy-efficient living across three floors. Sustainability meets space with 16 solar panels and 6.4kW battery storage.



Highlights include a large garage, workshop, and playroom on the lower ground floor, a bright kitchen/dining room, living room, en-suite principal bedroom, study/bedroom, and bathroom on the ground floor. Upstairs offers two double bedrooms with private balconies, a shower room, and ample storage. 



With a sun room, terraced garden, and excellent transport links, it's ideal for modern family living in a sought-after Calderdale village.

 
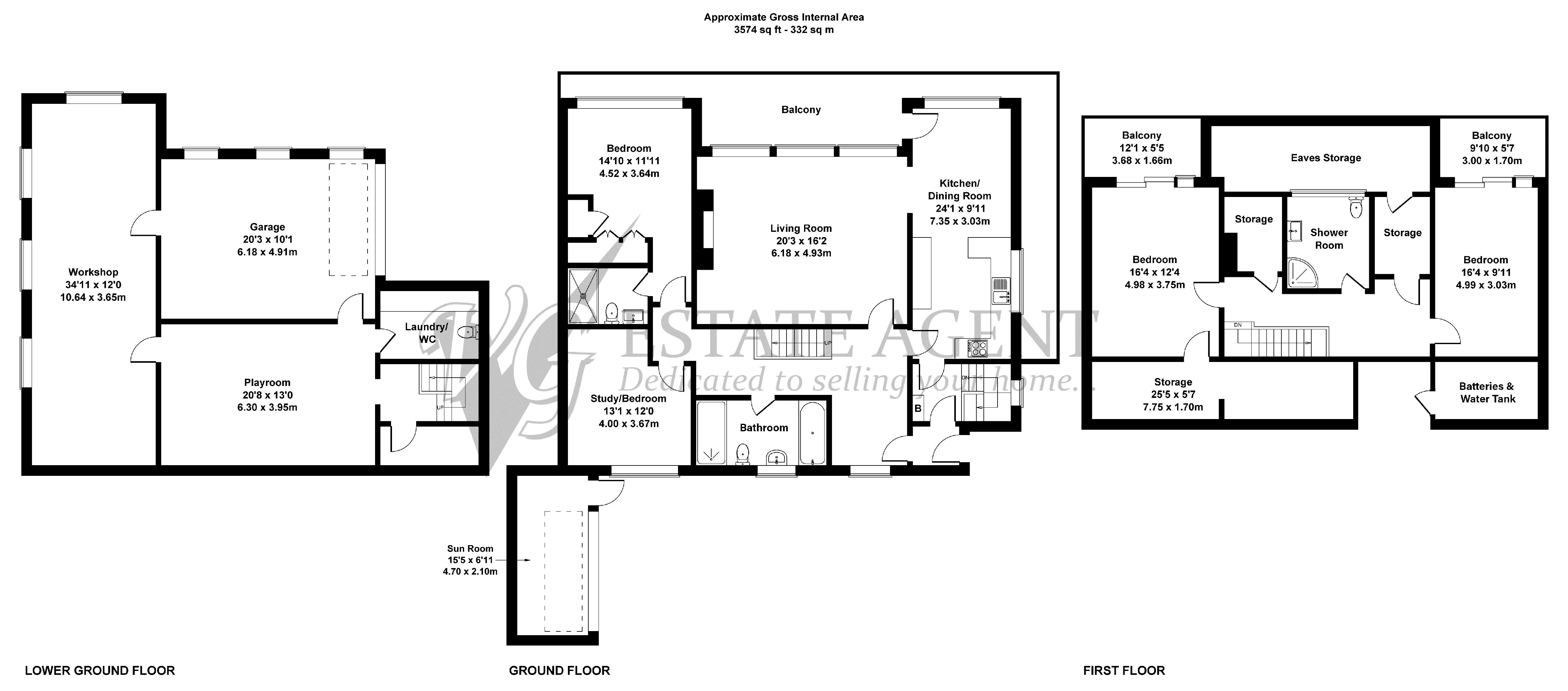
INTERNAL

The lower ground floor comprises a large double garage, an extensive workshop, and a spacious playroom—ideal for hobbies, a home gym, or flexible recreational use.



On the ground floor, an inviting entrance hall leads to the heart of the home: A bright and airy open-plan kitchen and dining room features high-quality integrated appliances, including two ovens, a five-burner gas hob, a dishwasher, and a fridge freezer. This spacious hub of the home also offers direct access to a superb south-facing balcony—perfect for entertaining or enjoying the sun. This outdoor space spans the full width of the south elevation, offering fantastic views and an ideal setting for entertaining. The bright and spacious living room boasts not only a southerly aspect but also a multi-fuel stove. The principal bedroom benefits from an en-suite shower room, while a further double bedroom, currently used as a study, and a well-appointed house bathroom complete this level.



Upstairs, the first floor features two further double bedrooms, each with its own private balcony—perfect for enjoying morning coffee or valley views. A contemporary shower room, ample storage including linen cupboard, further storage and substantial eaves storage completes the upper floor.



EXTERNAL

Externally, the property features a charming sun room, a terraced garden to the front, and off-road parking in addition to the garage.



LOCATION

Ripponden itself is a vibrant and well-connected village, boasting excellent amenities including restaurants, pubs, shops, and healthcare facilities. Families will appreciate the nearby well-regarded primary and secondary schools. For commuters, there are easy transport links via the nearby M62 (Manchester and Leeds) and Sowerby Bridge train station offering regular connections to regional hubs.



SERVICES

All mains services. Solar Panels and 6.4kw of domestic battery storage. Condensing gas boiler located at the top of the stairs leading to the lower ground floor. 



TENURE

Freehold. 



DIRECTIONS

From Ripponden, head West on Oldham Road, the property can be found after 500m on the right.



IMPORTANT NOTICE

These particulars are produced in good faith, but are intended to be a general guide only and do not constitute any part of an offer or contract. No person in the employment of VG Estate Agent has any authority to make any representation of warranty whatsoever in relation to the property. Photographs are reproduced for general information only and do not imply that any item is included for sale with the property. All measurements are approximate. Sketch plan not to scale and for identification only. The placement and size of all walls, doors, windows, staircases and fixtures are only approximate and cannot be relied upon as anything other than an illustration for guidance purposes only.



MONEY LAUNDERING REGULATIONS

In order to comply with the ‘Money Laundering, Terrorist Financing and Transfer of Funds (Information on the Payer) Regulations 2017’, intending purchasers will be asked to produce identification documentation and we would ask for your co-operation in order that there will be no delay in agreeing the sale.














































Entrance Hall

Living Room
20' 3'' x 16' 2'' (6.18m x 4.93m)

Kitchen / Dining Room
24' 1'' x 9' 11'' (7.35m x 3.02m)

Bedroom
14' 10'' x 11' 11'' (4.52m x 3.64m)

Study / Bedroom
14' 10'' x 11' 11'' (4.52m x 3.64m)

Bathroom

Lower Ground Floor

Playroom
20' 8'' x 13' 0'' (6.3m x 3.95m)

Garage
20' 3'' x 16' 1'' (6.18m x 4.91m)

Laundry / Cloakroom

Workshop
34' 11'' x 12' 8'' (10.64m x 3.85m)

First Floor

Bedroom
16' 4'' x 12' 4'' (4.98m x 3.75m)

Bedroom
16' 4'' x 9' 11'' (4.99m x 3.03m)

Shower Room

Important Information

  • This is a Freehold property.

Property Ref: EAXML10441_12663631

Share:

Similar Properties

The Bungalow, Higher Park Royd Drive, Kebroyd HX6 3HU

5 Bedroom Detached Bungalow | Asking Price £550,000

Located in a popular residential area this well-presented detached family home stands in an elevated plot with wrap arou...

7 Vale Court, Mill Fold Way, Ripponden

4 Bedroom Detached House | Asking Price £535,000

Located at the head of a small modern cul-de-sac of just a handful of homes, this beautifully presented four-bedroom det...

Thistledown, Ripponden Old Lane, Ripponden HX6 4PA

3 Bedroom Detached House | Asking Price £525,000

Occupying a sought after position on the hillside above Ripponden, this detached bungalow stands on a good sized plot en...

The Styes Cottage, Styes Lane, Sowerby HX6 1NF

4 Bedroom Semi-Detached House | Asking Price £575,000

Enjoying superb far-reaching views over the Calder Valley, on the hillside above Luddendenfoot, this stone-built semi-de...

1 Helm Farm Cottages, Triangle, HX6 3DU

3 Bedroom Cottage | Asking Price £650,000

1 Helm Farm Cottages is located in a delightful hamlet of just a handful of properties, on a quiet lane between Mill Ban...

Lalit House, Rochdale Road, Ripponden

4 Bedroom Detached House | Asking Price £650,000

Occupying an elevated position with panoramic views across the Ryburn Valley, Lalit House is a deceptively spacious, ind...

VG Estate Agent (Ripponden)

Halifax Road, Ripponden, West Yorkshire, HX6 4DA

01422 822277

How much is your home worth?

Use our short form to request a valuation of your property.

Request a Valuation

Mortgage Calculator

Amount Borrowed: £
Total Amount Repayable: £
Total Monthly Payment: £
©2026 The Guild of Property Professionals. All rights reserved. Terms and Conditions | Privacy Policy | Cookie Policy | Complaints Policy | Members Login
The Guild of Property Professionals Trading Address: 121 Park Lane, London W1K 7AG. GPEA Limited. Registered in England & Wales.  Company No: 02819824.  Registered Office Address: 2 St. Stephen's Court, St. Stephen's Road, Bournemouth, Dorset, England, BH2 6LA.  VAT Registration No: 576 8795 61
Book a Property Valuation Update Cookies Preferences