Kings Gate, Wilton, Salisbury

£325,000

2 Bedroom Semi-Detached House for sale in Salisbury

2 2 1
  • Semi detached house
  • Two bedrooms
  • Sitting Room
  • Kitchen/dining room
  • Conservatory
  • FF bathroom
  • PVCu DG and gas CH
  • Garage and parking
  • Rear garden backing on to fields
  • Cul de sac location

The property is an extremely well presented two bedroom semi detached house with a conservatory extension and an open aspect to the rear. It is set within a quiet cul de sac near to the town centre.

The property is an extremely well presented two bedroom semi detached house with a conservatory extension and an open aspect to the rear. It is set within a quiet cul de sac near to the town centre.

The accommodation comprises an entrance porch with an inset doormat and a glazed door leads to the sitting room. Stairs lead from this room to the first floor and they have a useful storage cupboard under. The kitchen/dining room has an excellent range of units with an integrated electric oven and four ring gas hob with extractor over, space and plumbing for both a washing machine and dishwasher and a space for a fridge/freezer. The current owners have created a seating/reception area although this could be used for a dining table and chairs. French doors lead in to the conservatory which is utilised as a dining room and this has part brick and double glazed elevations with French doors leading in to the garden.

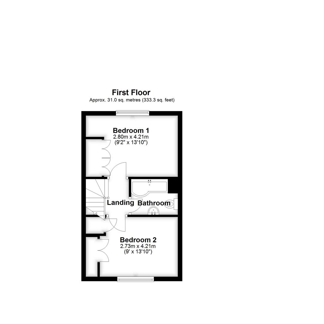
On the first floor are two double bedrooms which both have fitted wardrobes and the main bedroom has a useful fitted shelf. The family bathroom has a white three piece suite with a shower over the bath.

To the front of the property there is a driveway providing parking for two cars and an area of lawn. By the front door is a small storage cupboard. There is an attached single garage with an up and over door, power and light and a door in to the rear garden. This has a patio area, the remainder being lawned with a smaller patio at the end of the garden. There is an outside light and tap and the garden is enclosed by hedging and fencing and backs on to fields to the rear.

Wilton is a popular town lying approximately 3 miles west of Salisbury which is served by a regular bus route. There is an excellent range of facilities including convenience stores, public houses, doctors' surgeries and dentist. .

Property Ref: 665745_34204776

Share:

Similar Properties

St. Edmunds Church Street, Salisbury

2 Bedroom Apartment | £325,000

A purpose built first-floor apartment. Two bedrooms with en-suite to master bedroom. Parking space. No chain.

Pembroke Road, Salisbury

3 Bedroom Detached House | Guide Price £325,000

A detached house in need of updating. Garage and off road parking. Extension potential. No onward chain.

Wellington Way, Salisbury

3 Bedroom Semi-Detached House | £325,000

A three bedroom semi detached house in a cul de sac location. Some updating required. Front and rear gardens and detache...

The Close, Salisbury

2 Bedroom Apartment | Guide Price £327,500

A spacious second floor apartment with wonderful views of the river and water meadows, quietly situated at the very end...

High Street, Heytesbury, Warminster

3 Bedroom Cottage | £330,000

A charming stone cottage, renovated in recent years to provide very comfortable accommodation, with character features....

Shropshire Close, Salisbury

3 Bedroom Detached House | Guide Price £335,000

Detached family home, offered in excellent order, situated on a corner plot offering two parking spaces and extra garden...

Whites Estate Agents (Salisbury)

47 Castle Street, Salisbury, Wilts, SP1 3SP

01722 336 422

How much is your home worth?

Use our short form to request a valuation of your property.

Request a Valuation

Mortgage Calculator

Amount Borrowed: £
Total Amount Repayable: £
Total Monthly Payment: £
©2025 The Guild of Property Professionals. All rights reserved. Terms and Conditions | Privacy Policy | Cookie Policy | Complaints Policy | Members Login
The Guild of Property Professionals Trading Address: 121 Park Lane, London W1K 7AG. GPEA Limited. Registered in England & Wales.  Company No: 02819824.  Registered Office Address: 2 St. Stephen's Court, St. Stephen's Road, Bournemouth, Dorset, England, BH2 6LA.  VAT Registration No: 576 8795 61
Book a Property Valuation Update Cookies Preferences