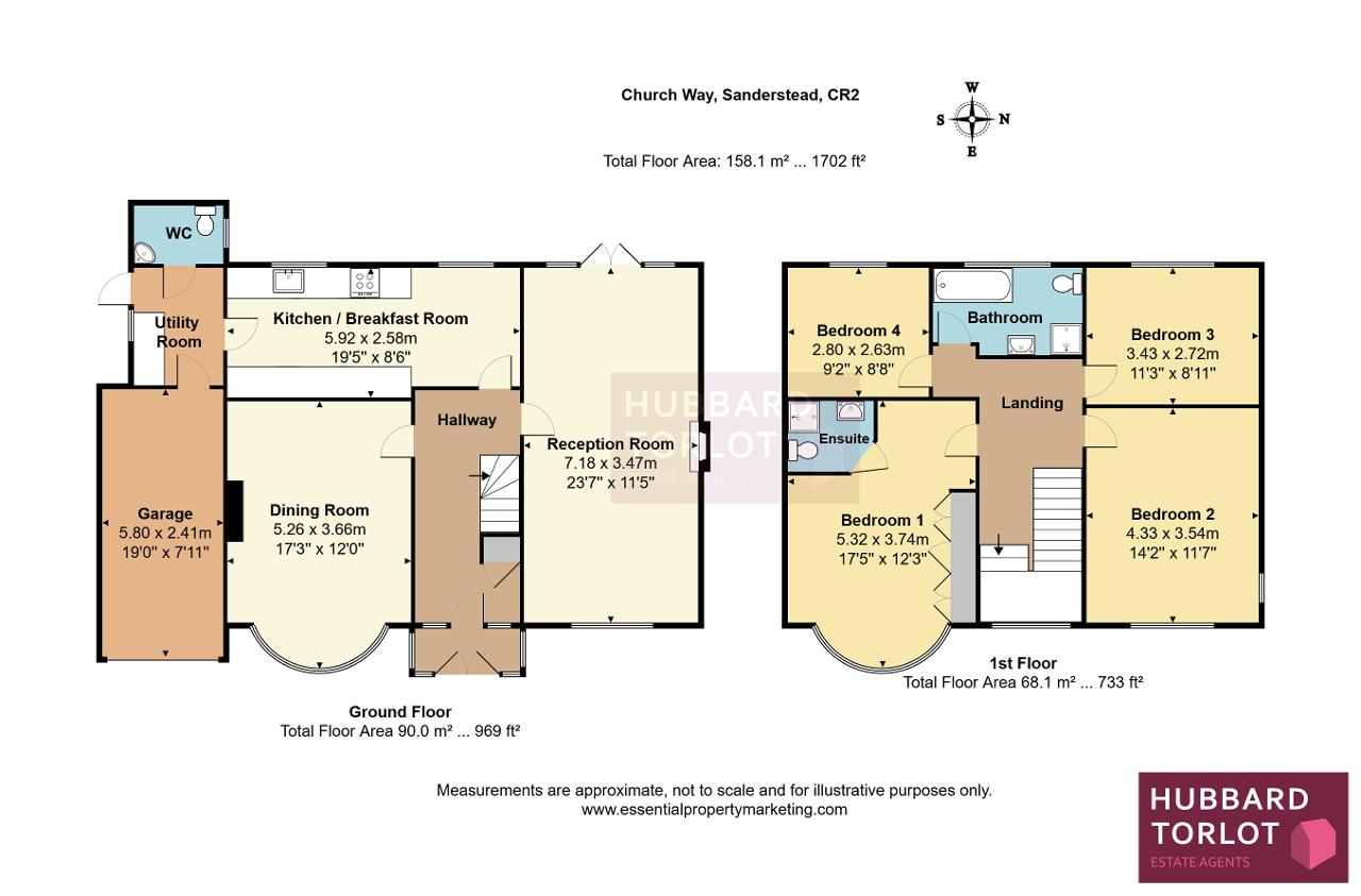
Church Way, Sanderstead, CR2 0JQ

Offers in excess of
£900,000

4 Bedroom Detached House for sale in Sanderstead

4 2
  • Attractive Detached Home
  • 4 Bedrooms & 2 Bathrooms
  • Large Through Lounge
  • Great Sized Dining Room
  • Modern Kitchen/Breakfast Room
  • Ground Floor W.C
  • Garage & Driveway
  • Level South Facing Rear Garden
  • Close to Station & Ridgeway Schools

Council tax band: G

Nestled along a sought-after road in Sanderstead, this attractive double-fronted period home offers the perfect blend of character, space, and convenience. Just a short stroll from Sanderstead Station, the local shops at Elmfield Way, and the highly regarded Ridge Way Primary School, the location is ideal for families and commuters alike. An entrance porch provides access to the hallway leading to all ground floor rooms to include an Elegant Lounge being double-aspect and is bathed in natural light, featuring an elegant marble surround fireplace with a cosy open fire, perfect for relaxing evenings, along with French doors opening on to a South West-facing rear garden, ideal for sunny afternoons and al fresco dining. There is a separate formal Dining Room generously sized and ideal for entertaining or family meals, but could also provide a great work from home space.
The Kitchen/Breakfast room is well-appointed with ample space for casual dining, and having lots of natural light with a door leading to the utility and garden.
This home provides period charm whilst retaining original features and character throughout, at the same time offering modern comfort. A utility room and ground floor cloakroom complete the ground floor accommodation along with access to the garage.
To the first floor are 4 bedrooms, the master bedroom having the benefit of an en-suite shower room. The three further bedrooms have ample built in cupboard space. The family bathroom is a modern space with bath and separate shower.
Externally the rear garden is a particular feature of this wonderful home being level and so ideal for families with young children. It is majority lawned with flower bed and shrub borders. To the rear are a variety of trees to include coxes variety eating apple tree. The front driveway completes this detached home with off street parking, mature hedging and shrubs, including an EV charging point.

Church Way is located off Addington Road just as it joins Sanderstead Pond and roundabout with Sanderstead Village shops being just a short walk away along with the beautiful 'All Saints Church' and a Waitrose supermarket. The 403 and 412 bus routes are again a short walk serving neighbouring towns as well as Central Croydon and the cosmopolitan Box Park. A choice of Sanderstead or Purley Oaks Stations are within approx. 20 minutes walk for commuting into London Bridge & Victoria providing a fast route via the busy East Croydon Station offering links to the south Coastal regions. Within easy access are popular schools for children of all ages both state and private. For those enjoying open space for walking the property is near Sanderstead Plantation with Croham Hurst and Kings Wood also a short walk away.

Important Information

  • This is a Freehold property.

Property Ref: 2-58508_711001

Share:

Similar Properties

Shaw Crescent, Sanderstead, South Croydon, Surrey, CR2 9JB

4 Bedroom Detached House | £875,000

This impressive four-bedroom detached house offers spacious, versatile accommodation ideal for modern family living. Boa...

Landscape Road, Warlingham, Surrey, CR6 9JB

3 Bedroom Bungalow | Guide Price £850,000

CHAIN FREE - This spacious detached bungalow occupies a fantastic corner position being well screened from the road by m...

Mitchley Grove, Sanderstead, Surrey, CR2 9HS

4 Bedroom Semi-Detached House | Offers in excess of £850,000

Hubbard Torlot are delighted to bring to the market this stunning four double bedroom family home which enjoys a superb...

Purley Oaks Road, Sanderstead, Surrey, CR2 0NS

5 Bedroom Detached House | £950,000

CHAIN FREE - Set back from the road and approached from an remote control electric gated horseshoe driveway is this beau...

Highwoods, Caterham, CR3 6AX

5 Bedroom Detached House | Guide Price £950,000

A Stylish and Spacious Detached Home in a Private Cul-de-SacTucked away in a small, exclusive cul-de-sac, this beautiful...

Heathhurst Road, South Croydon, Surrey, CR2 0BA

6 Bedroom Semi-Detached House | £950,000

Welcome to this beautiful home in Heathhurst Road, an impressive Edwardian semi-detached home built in 1908, exuding tim...

Hubbard Torlot (Sanderstead)

335 Limpsfield Road, Sanderstead, Surrey, CR2 9BY

0208 6516 679

How much is your home worth?

Use our short form to request a valuation of your property.

Request a Valuation

Mortgage Calculator

Amount Borrowed: £
Total Amount Repayable: £
Total Monthly Payment: £
©2025 The Guild of Property Professionals. All rights reserved. Terms and Conditions | Privacy Policy | Cookie Policy | Complaints Policy | Members Login
The Guild of Property Professionals Trading Address: 121 Park Lane, London W1K 7AG. GPEA Limited. Registered in England & Wales.  Company No: 02819824.  Registered Office Address: 2 St. Stephen's Court, St. Stephen's Road, Bournemouth, Dorset, England, BH2 6LA.  VAT Registration No: 576 8795 61
Book a Property Valuation Update Cookies Preferences