Shaw Crescent, Sanderstead, South Croydon, Surrey, CR2 9JB

£875,000
SSTC
This property listing is now SSTC

4 Bedroom Detached House for sale in South Croydon

4
  • Walking distance to Village Green
  • Wide Plot with Ample Parking
  • Scope for Further Extension (stpc)
  • 4 Double Bedrooms
  • Attractive, Extended Detached Home
  • Sought After Road
  • Well Tended, Level Rear Garden

Council tax band: G

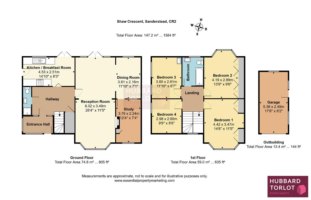
This impressive four-bedroom detached house offers spacious, versatile accommodation ideal for modern family living. Boasting approximately 1,600 square ft across two floors, the property features multiple reception rooms, a generously sized kitchen, and bright, well-proportioned bedrooms. Large windows provide excellent natural light throughout, creating a bright and welcoming atmosphere. The home also offers scope for modernisation or extension (subject to planning permission), allowing buyers to personalise the space further.

Externally, the property benefits from a private rear garden, perfect for entertaining or family use, along with off-street parking and an integrated garage.

Council Tax Band G

Situated on the highly sought-after Shaw Crescent in South Croydon the property enjoys a peaceful residential setting within the desirable Sanderstead area. The location is perfect for families, being within easy reach of several well-regarded schools including Gresham Primary and Riddlesdown Collegiate. Excellent transport links are nearby, with Riddlesdown, Purley Oaks, Sanderstead, and Kenley stations providing convenient rail services into central London. Residents can also enjoy the local village amenities, parks, and recreational grounds that make Sanderstead such a popular choice for families and professionals alike.

Important Information

  • This is a Freehold property.

Property Ref: 2-58508_453744

Share:

Similar Properties

Landscape Road, Warlingham, Surrey, CR6 9JB

3 Bedroom Bungalow | Guide Price £850,000

CHAIN FREE - This spacious detached bungalow occupies a fantastic corner position being well screened from the road by m...

Mitchley Grove, Sanderstead, Surrey, CR2 9HS

4 Bedroom Semi-Detached House | Offers in excess of £850,000

Hubbard Torlot are delighted to bring to the market this stunning four double bedroom family home which enjoys a superb...

Badgers Lane, Warlingham, CR6 9JX

4 Bedroom Detached House | £850,000

This individually designed property provides versatile accommodation requiring updating ready for those who are looking...

Church Way, Sanderstead, CR2 0JQ

4 Bedroom Detached House | Offers in excess of £900,000

Nestled along a sought-after road in Sanderstead, this attractive double-fronted period home offers the perfect blend of...

Purley Oaks Road, Sanderstead, Surrey, CR2 0NS

5 Bedroom Detached House | £950,000

CHAIN FREE - Set back from the road and approached from an remote control electric gated horseshoe driveway is this beau...

Highwoods, Caterham, CR3 6AX

5 Bedroom Detached House | Guide Price £950,000

A Stylish and Spacious Detached Home in a Private Cul-de-SacTucked away in a small, exclusive cul-de-sac, this beautiful...

Hubbard Torlot (Sanderstead)

335 Limpsfield Road, Sanderstead, Surrey, CR2 9BY

0208 6516 679

How much is your home worth?

Use our short form to request a valuation of your property.

Request a Valuation

Mortgage Calculator

Amount Borrowed: £
Total Amount Repayable: £
Total Monthly Payment: £
©2025 The Guild of Property Professionals. All rights reserved. Terms and Conditions | Privacy Policy | Cookie Policy | Complaints Policy | Members Login
The Guild of Property Professionals Trading Address: 121 Park Lane, London W1K 7AG. GPEA Limited. Registered in England & Wales.  Company No: 02819824.  Registered Office Address: 2 St. Stephen's Court, St. Stephen's Road, Bournemouth, Dorset, England, BH2 6LA.  VAT Registration No: 576 8795 61
Book a Property Valuation Update Cookies Preferences