Southdene, Halstead

Guide Price
£500,000

2 Bedroom Semi-Detached House for sale in Sevenoaks

2 2 1
  • Pleasant corner plot overlooking the central green offering ample potential extend
  • Spacious kitchen / dining room with French doors to the garden
  • Garden room / home office with bifold doors
  • Study and ground floor cloakroom / utility room
  • Private rear garden with patio and driveway parking
  • EPC D / Council Tax Band C

£500,000 - £525,000 Waghorn & Company are delighted to offer to the market this well-positioned home occupying a pleasant corner plot overlooking the central green. The property offers well-proportioned accommodation arranged over two floors together with front and rear gardens, driveway parking and a versatile layout including a study, ground floor cloakroom/utility and a useful garden room/home office. The rear garden enjoys a good degree of privacy and provides an excellent space for relaxing and entertaining, with the added benefit of a detached garden room which would make an ideal home office, studio or hobby room, offering flexible additional space separate from the main house.

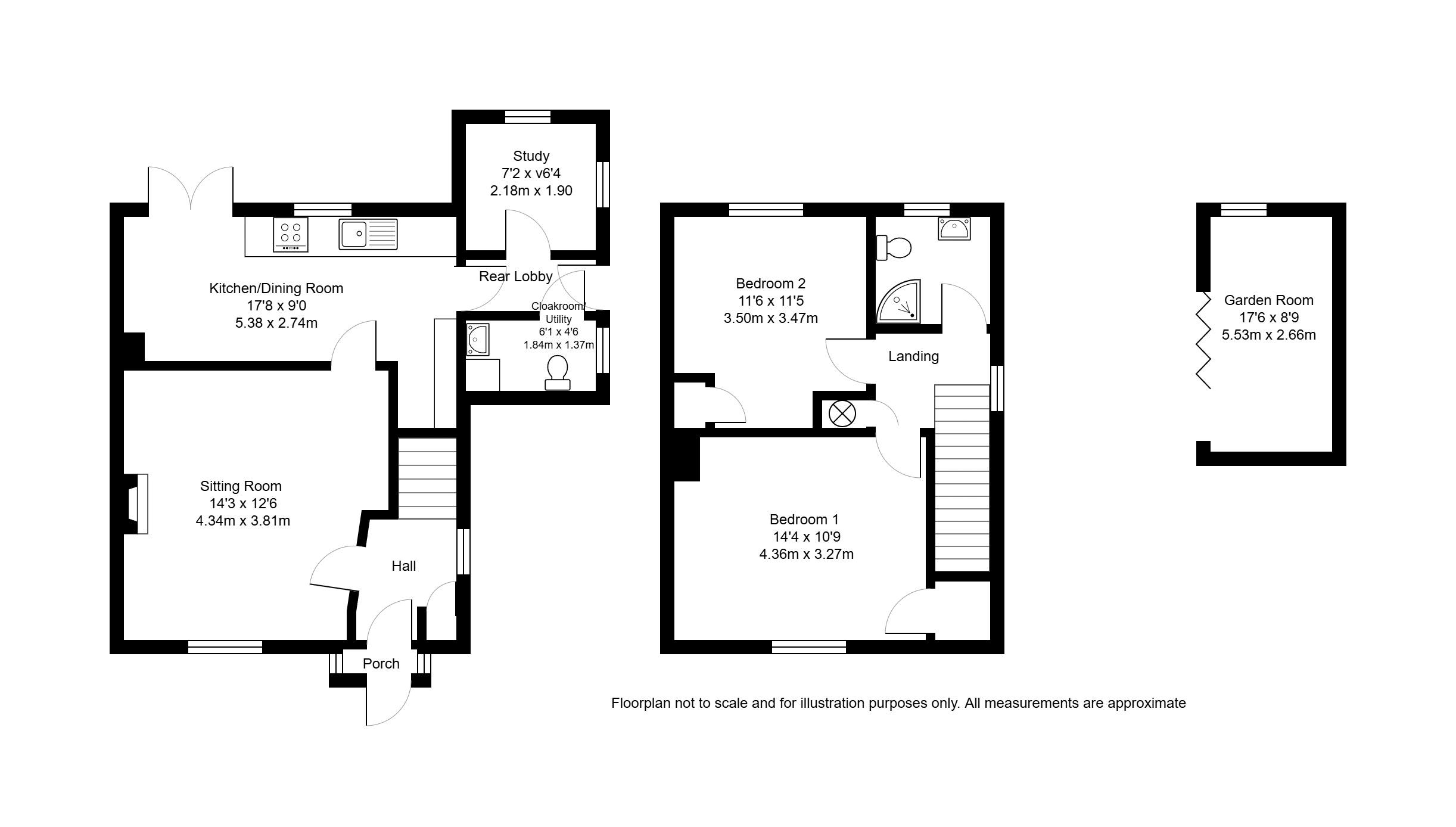
Entrance

The property is approached via a picket fence with gate and pathway leading to the entrance Entrance porch. The front garden is mainly laid to lawn and the property benefits from a driveway to the side providing off road parking and access to the rear garden

Entrance Porch

Double glazed door to front, Double glazed windows to sides and door leading to entrance hall.

Entrance Hall

Double glazed window to side. Built-in storage cupboard. Radiator. Stairs rising to the first floor landing. Door leading to sitting room.

Sitting Room

Double glazed window to the front enjoying a pleasant outlook over the central green. Radiator. Door through to the kitchen/dining room.

Kitchen/Dining Room

A bright and spacious room fitted with a range of wall and base units with quartz work surfaces incorporating a single sink unit with mixer tap. Integrated appliances include an inset electric oven with induction hob and extractor hood above, together with an integrated dishwasher and space for a freestanding fridge freezer. The kitchen is complemented by Italian Metro splash back tiling and vinyl flooring, with a radiator providing heating. A double glazed window overlooks the rear garden, whilst French doors open directly onto the garden terrace, creating an ideal space for entertaining. Door leading to rear lobby.

Rear Lobby

Double glazed door to the side providing access to the garden. Doors leading to study and cloakroom/utility.

Study

Double glazed windows to both front and side. Radiator. A useful work-from-home space.

Cloakroom/ Utility Room

Fitted with low level WC and wash hand basin together with space and plumbing for washing machine with worktop over. Double glazed window to side.

First Floor Landing

Doors to bedrooms and shower room. Double glazed window to side. Access to loft space and airing cupboard.

Bedroom 1

Double glazed window to the front overlooking the central green. Built-in cupboard. Radiator.

Bedroom 2

Double glazed window to the rear overlooking the garden. Radiator. Built-in cupboard providing useful storage.

Shower Room

Fitted with a modern suite comprising walk-in shower with glass screen, low level W/C and wash hand basin set within a vanity unit. Complementary wall and floor tiling. Heated towel rail. Double glazed frosted window to the rear.

Outside

Garden Room

A versatile detached garden room providing excellent additional space, ideal for use as a home office, studio or hobby room. The room benefits from bifold doors opening onto the rear garden together with a double glazed window, allowing for plenty of natural light and views over the garden. Enjoying a peaceful setting separate from the main house, it is particularly well suited to those working from home.

Rear Garden

The rear garden is a particularly attractive feature of the property, enjoying a good degree of privacy and providing a lovely space for relaxing and entertaining. Immediately adjacent to the property there is a patio seating area, ideal for outdoor dining, with the remainder of the garden being mainly laid to lawn with established borders. The garden also provides access to the garden room, whilst side access leads to the driveway and front of the property.

Tenure

Freehold

Important Information

  • This is a Freehold property.

Property Ref: WAG03276

Share:

Similar Properties

Sullivan Road, Tonbridge

4 Bedroom Semi-Detached House | Guide Price £500,000

Guide Price £500,000- £525,000 An extended and substantial family home, ideally located close to local shops, favoured s...

Springwell Road, Tonbridge

3 Bedroom Semi-Detached House | Guide Price £500,000

Guide Price £500,000 - £525,000 Offered to the market by Waghorn and Company, this wonderful and immaculately presented...

2 Ives Road , Tonbridge

3 Bedroom House | Asking Price £500,000

Waghorn and Company are delighted to offer to the market this spacious and well presented, three bedroom family home, co...

Ashley Road, Hildenborough, Tonbridge

3 Bedroom Bungalow | Guide Price £525,000

Waghorn & Company are delighted to offer for sale this spacious and extended detached bungalow located in the much sough...

Ashden Walk, Tonbridge

3 Bedroom Semi-Detached House | Asking Price £525,000

A well-proportioned family home built by Gough Cooper, set within the sought-after Willow Lea development in North Tonbr...

Fernholt, Tonbridge

3 Bedroom Semi-Detached House | Asking Price £535,000

Wonderful, attractive cottage-style semi-detached family home, tucked away in a quiet cul-de-sac within the much sought-...

Waghorn & Company (Tonbridge)

Tonbridge, Kent, TN9 1DH

01732 808542

How much is your home worth?

Use our short form to request a valuation of your property.

Request a Valuation

Mortgage Calculator

Amount Borrowed: £
Total Amount Repayable: £
Total Monthly Payment: £
©2026 The Guild of Property Professionals. All rights reserved. Terms and Conditions | Privacy Policy | Cookie Policy | Complaints Policy | Members Login
The Guild of Property Professionals Trading Address: 121 Park Lane, London W1K 7AG. GPEA Limited. Registered in England & Wales.  Company No: 02819824.  Registered Office Address: 2 St. Stephen's Court, St. Stephen's Road, Bournemouth, Dorset, England, BH2 6LA.  VAT Registration No: 576 8795 61
Book a Property Valuation Update Cookies Preferences