Springwell Road, Tonbridge

Guide Price
£500,000
SSTC
This property listing is now SSTC

3 Bedroom Semi-Detached House for sale in Tonbridge

2 3 1
  • Immaculately presented period property within walking distance of Tonbridge mainline station (London in under 40 minutes)
  • Recently remodelled kitchen/dining room and stylish family bathroom
  • Three well-proportioned bedrooms with a bright bay-fronted sitting room
  • Attractive landscaped front & rear gardens
  • Close to the vibrant High Street and highly regarded local schools
  • EPC D / Council Tax Band C £2094.37 PA

Guide Price £500,000 - £525,000 Offered to the market by Waghorn and Company, this wonderful and immaculately presented period property is ideally located just a short walk from Tonbridge mainline station, providing direct trains to London in under 40 minutes. The vibrant High Street and highly regarded local Schools are also close by. The property offers well-proportioned accommodation and benefits from a stunning, recently remodelled bathroom and kitchen/dining room. Early viewing is highly recommended to fully appreciate both the quality of the home and its excellent location.

Access

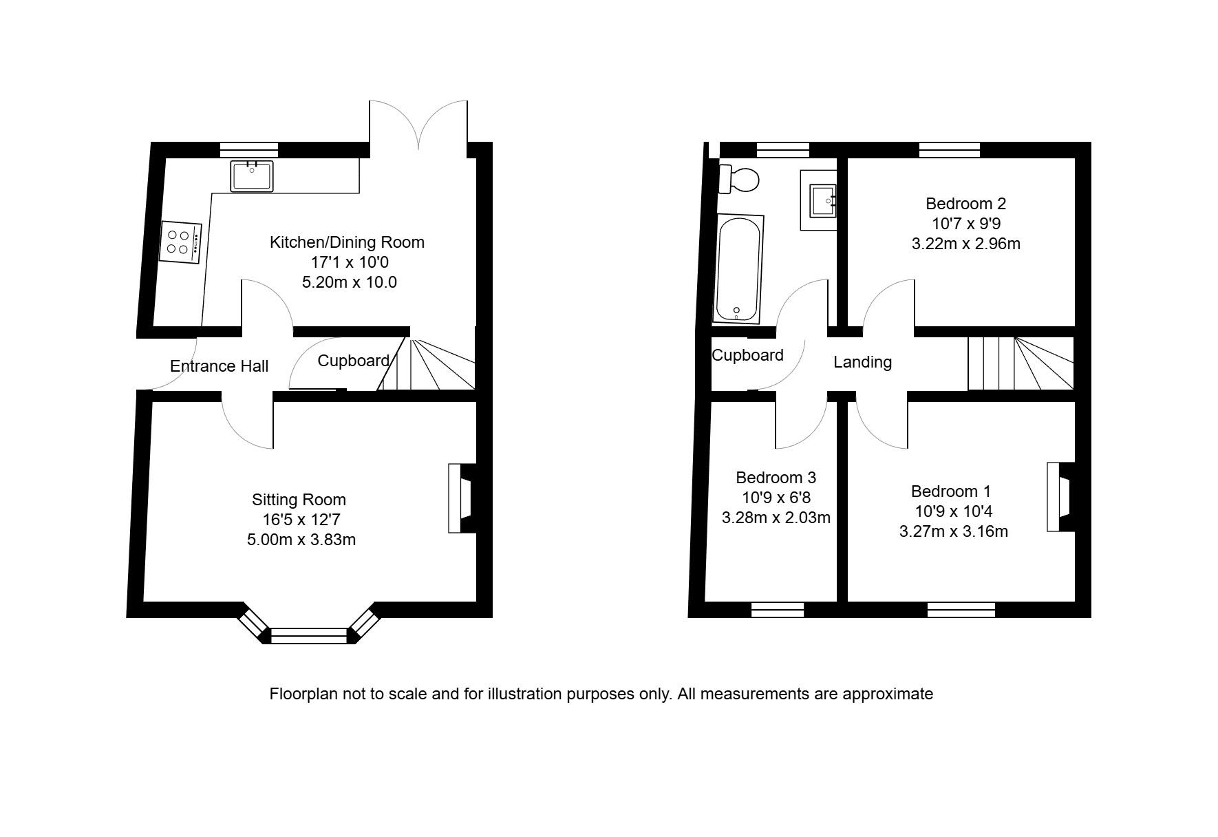
Accessed via a composite front entrance door with an etched glass insert, the property opens into a welcoming entrance hall featuring hardwood flooring, a built-in storage cupboard, and doors leading to the sitting room and the kitchen/dining room.

Sitting Room

Double-glazed bay window, wood flooring, two radiators, and an attractive fireplace with a tiled surround.

Kitchen/Dining Room

Wood flooring, double glazed window to the rear, and double glazed French doors opening onto the rear garden. The kitchen includes a sink set within a quartzite worktop, complemented by a range of matching base and wall units. Integrated appliances include a gas four-ring hob with extractor hood above and double oven. There is also space and plumbing for a washing machine, along with an integrated fridge/freezer and dishwasher. A vertical designer radiator and additional radiator are also present. Stairs rise from this room to the first-floor landing.

First Floor Landing

The first-floor landing provides access to three bedrooms and the family bathroom, as well as loft access and a built-in linen cupboard.

Bedroom 1

Double glazed window to the front, a radiator, a fireplace with tiled surround, and carpeted flooring.

Bedroom 2

Double glazed window to rear and includes a radiator and carpeted flooring.

Bedroom 3

Wood flooring, a double-glazed window to the front, and a radiator.

Family Bathroom

Honeycomb tiled floor and a double-glazed frosted window to the rear. It comprises a low-level WC with concealed cistern, a bath with mixer taps, hand-held shower attachment and power shower with waterfall shower head, a heated towel rail, and a hand wash basin set within a vanity unit with matching storage unit. The room is finished with stylish ceramic splashback and designer tiling.

Outside

Front

To the front of the property, a brick-paved path leads to the entrance door, which is positioned to the side of the house. A gate provides access to the garden, and the front garden is attractively landscaped with flower beds and an interwoven brick-paved pathway.

Rear Garden

The South facing rear garden features an Indian stone patio area adjacent to the property, with steps leading up to a lawned garden bordered by flower beds. An Indian stone path runs around the garden, and to the rear stands a timber shed, which the seller has advised will remain. The garden also benefits from side shared pedestrian access.

Tenure

Freehold

Important Information

  • This is a Freehold property.

Property Ref: WAG03183

Share:

Similar Properties

Tonbridge Road, Hildenborough

3 Bedroom Semi-Detached House | Guide Price £500,000

Open House Saturday 11th April between 11am and 1pm. We are truly honoured to have been chosen to market this wonderful...

Sullivan Road, Tonbridge

4 Bedroom Semi-Detached House | Guide Price £500,000

Guide Price £500,000- £525,000 An extended and substantial family home, ideally located close to local shops, favoured s...

Bramble Close, Tonbridge

3 Bedroom Semi-Detached House | Asking Price £500,000

Waghorn and Company are offering to the market this spacious, 3 bedroom, semi detached family home located in the sought...

Southdene, Halstead

2 Bedroom Semi-Detached House | Guide Price £525,000

Guide Price £500,000 - £525,000 Waghorn & Company are delighted to offer to the market this well-positioned home occupyi...

Ashden Walk, Tonbridge

3 Bedroom Semi-Detached House | Asking Price £525,000

A well-proportioned family home built by Gough Cooper, set within the sought-after Willow Lea development in North Tonbr...

Ashley Road, Hildenborough, Tonbridge

3 Bedroom Bungalow | Guide Price £525,000

Waghorn & Company are delighted to offer for sale this spacious and extended detached bungalow located in the much sough...

Waghorn & Company (Tonbridge)

Tonbridge, Kent, TN9 1DH

01732 808542

How much is your home worth?

Use our short form to request a valuation of your property.

Request a Valuation

Mortgage Calculator

Amount Borrowed: £
Total Amount Repayable: £
Total Monthly Payment: £
©2026 The Guild of Property Professionals. All rights reserved. Terms and Conditions | Privacy Policy | Cookie Policy | Complaints Policy | Members Login
The Guild of Property Professionals Trading Address: 121 Park Lane, London W1K 7AG. GPEA Limited. Registered in England & Wales.  Company No: 02819824.  Registered Office Address: 2 St. Stephen's Court, St. Stephen's Road, Bournemouth, Dorset, England, BH2 6LA.  VAT Registration No: 576 8795 61
Book a Property Valuation Update Cookies Preferences