Sullivan Road, Tonbridge

Guide Price
£500,000

4 Bedroom Semi-Detached House for sale in Tonbridge

2 4 4
  • Extended and substantial family home offering generous accommodation
  • Ideally located close to local shops, favoured schools and bus routes
  • Well proportioned layout, perfect for a growing family
  • Exciting opportunity to update and personalise throughout
  • Offered to the market with no onward chain
  • EPC D / Council Tax Band E £2,903 per year

Guide Price £500,000- £525,000 An extended and substantial family home, ideally located close to local shops, favoured schools and bus routes, making it perfectly suited to modern family life. Having been cherished by the same family for many years, the property now presents an exciting opportunity for a new owner to update, enhance and create a long-term family home. The accommodation is well proportioned and versatile, offering excellent space for a growing family, with the scope to personalise to your own style and requirements. Properties of this size and potential rarely come to the market in such a convenient location. Offered to the market with no onward chain, this is a fantastic opportunity to acquire a substantial family home in a very sought after area.

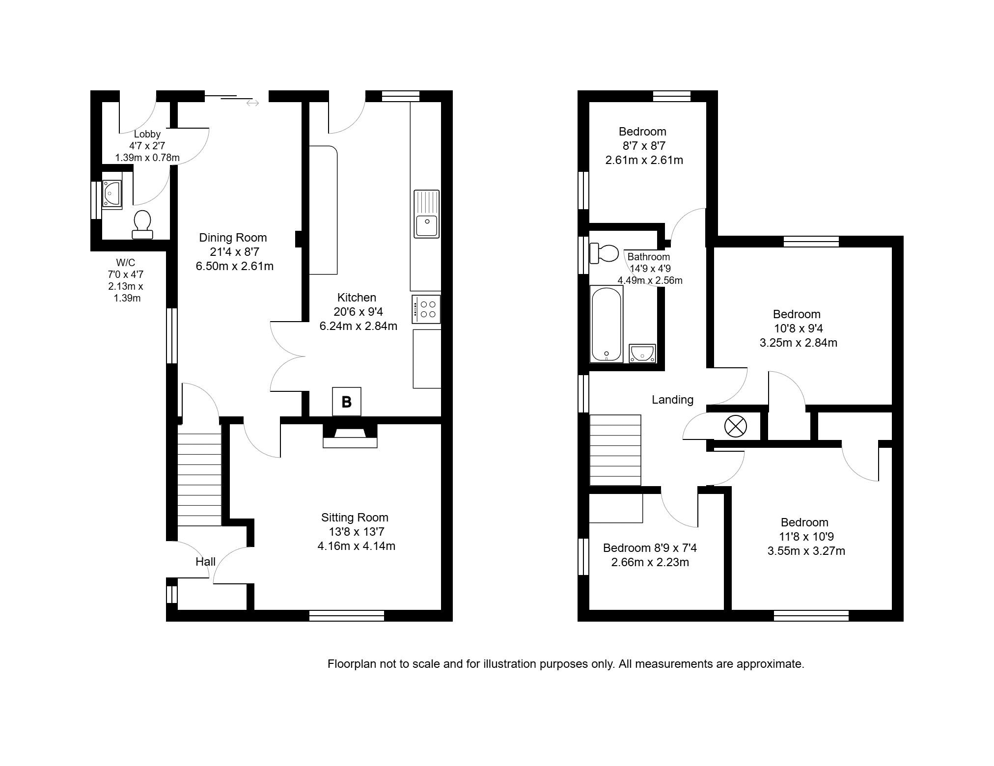
Entrance

Access is via a canopied entrance porch with quarry tiled flooring and a double glazed frosted entrance door with matching side windows, leading into the entrance hall.

Entrance Hall

Radiator, stairs rising to the first-floor landing and a door through to the sitting room.

Sitting Room

Double glazed window to the front, radiator and gas fireplace, with a door opening through to the dining room.

Dining Room

The dining room benefits from double glazed patio doors opening onto the rear garden, a further double glazed window to the side, two radiators and a useful understairs storage cupboard. Twin glazed panel doors lead through to the kitchen, and there is also a door to the rear lobby.

Rear Lobby

Double glazed frosted door leading to the rear garden and a door to the cloakroom.

Cloakroom

Tiled floor, hand wash basin set within a tiled work surface with cupboard under, low-level WC, radiator, part-tiled walls and a double glazed frosted window to the side.

Kitchen

Single stainless steel sink and drainer with cupboard under, together with a further range of matching base and wall units. There is space and plumbing for a dishwasher and washing machine, space for a freestanding gas cooker, space for a fridge/freezer and an extractor fan. The kitchen also benefits from a floor-mounted boiler serving the domestic hot water and central heating systems, a radiator, a double glazed window to the rear and a double glazed door leading to the rear garden.

First Floor Landing

The landing provides access to all bedrooms and the family bathroom, with a double glazed window to the side, access to the loft space and an airing cupboard.

Bedroom 1

Double glazed window to the front, built-in wardrobe and radiator.

Bedroom 2

Double glazed window to the rear, built-in wardrobe and radiator.

Bedroom 3

Built-in wardrobes, double glazed windows to both the rear and side and a radiator.

Bedroom 4

Double glazed window to the side, staircase bulkhead and radiator.

Family Bathroom

Paneled bath with shower over, hand wash basin set within a vanity unit, low-level WC, heated towel rail, ceramic wall tiling and a double glazed frosted window to the side.

Outside

Rear Garden

Mainly laid to lawn with side vehicle access and a private door leading to the garage. A pathway leads to the rear, where there is a hard standing driveway and double gates opening onto Sullivan Road.

Important Information

  • This is a Freehold property.

Property Ref: WAG03235

Share:

Similar Properties

Tonbridge Road, Hildenborough

3 Bedroom Semi-Detached House | Guide Price £500,000

Open House Saturday 11th April between 11am and 1pm. We are truly honoured to have been chosen to market this wonderful...

Springwell Road, Tonbridge

3 Bedroom Semi-Detached House | Guide Price £500,000

Guide Price £500,000 - £525,000 Offered to the market by Waghorn and Company, this wonderful and immaculately presented...

Bramble Close, Tonbridge

3 Bedroom Semi-Detached House | Asking Price £500,000

Waghorn and Company are offering to the market this spacious, 3 bedroom, semi detached family home located in the sought...

Southdene, Halstead

2 Bedroom Semi-Detached House | Guide Price £525,000

Guide Price £500,000 - £525,000 Waghorn & Company are delighted to offer to the market this well-positioned home occupyi...

Ashden Walk, Tonbridge

3 Bedroom Semi-Detached House | Asking Price £525,000

A well-proportioned family home built by Gough Cooper, set within the sought-after Willow Lea development in North Tonbr...

Ashley Road, Hildenborough, Tonbridge

3 Bedroom Bungalow | Guide Price £525,000

Waghorn & Company are delighted to offer for sale this spacious and extended detached bungalow located in the much sough...

Waghorn & Company (Tonbridge)

Tonbridge, Kent, TN9 1DH

01732 808542

How much is your home worth?

Use our short form to request a valuation of your property.

Request a Valuation

Mortgage Calculator

Amount Borrowed: £
Total Amount Repayable: £
Total Monthly Payment: £
©2026 The Guild of Property Professionals. All rights reserved. Terms and Conditions | Privacy Policy | Cookie Policy | Complaints Policy | Members Login
The Guild of Property Professionals Trading Address: 121 Park Lane, London W1K 7AG. GPEA Limited. Registered in England & Wales.  Company No: 02819824.  Registered Office Address: 2 St. Stephen's Court, St. Stephen's Road, Bournemouth, Dorset, England, BH2 6LA.  VAT Registration No: 576 8795 61
Book a Property Valuation Update Cookies Preferences