Sheringham

Guide Price
£585,000
SSTC
This property listing is now SSTC

5 Bedroom Semi-Detached House for sale in Sheringham

5 3
  • Grand reception hall
  • Original Edwardian character features
  • Generous light and airy rooms
  • Two reception rooms
  • Five double bedrooms
  • Bathrooms on each floor
  • Balcony with superb views
  • Attractive gardens and off road parking
  • Close to Beeston Common, Coastal Path & short stroll to shops and beach
  • NO ONWARD CHAIN

Location Sheringham is a picturesque town nestled in an Area of Outstanding Natural Beauty on the stunning North Norfolk coast, perfectly positioned between the sea and the enchanting Pretty Corner woods. Known for its bustling atmosphere, the town offers exceptional coastal and woodland walks, with Sheringham beach proudly holding Blue Flag status. The beach is complemented by a wide promenade that stretches the length of the town, ideal for seaside strolls.

A highly sought-after destination for both holidaymakers and retirees, Sheringham boasts a vibrant town centre with a fantastic range of independent shops, well-known brands, and a Tesco supermarket offering convenient short-term parking. Excellent bus and rail links provide easy access to Norwich, the lively cultural hub just 27 miles south, the charming Georgian town of Holt, 6 miles away, and Cromer, a delightful Victorian seaside town 4 miles along the coast.

Sheringham is well served with modern amenities including schools for all ages, a health centre, dental services, theatre, and library. The Reef Leisure Centre and the town's renowned 18-hole cliff-top golf course offer further opportunities for recreation. Throughout the year, Sheringham hosts a variety of popular events such as the Viking Festival, Crab and Lobster Festival, Carnival, and the celebrated 1940s Weekend, ensuring there's always something to enjoy. For those who enjoy outdoor activities, there are two Parkruns held every Saturday at Sheringham Park and Blickling Hall, both National Trust properties. Whether running or volunteering, Parkrun is a fantastic way to stay fit, improve mental well-being, and connect with the local community - perfect for those new to the area.

Sheringham combines coastal charm, natural beauty, and a warm community spirit, making it an exceptional place to visit or call home. 

Description Built in 1904, this outstanding property is a superb example of Edwardian architecture, showcasing all the hallmark features of the period. High ceilings, beautiful woodwork, exposed floorboards, picture rails, original doors and staircases, and an abundance of natural light all contribute to the charm and authenticity of this remarkable family home.

This elegant semi‑detached brick and flint residence offers generous and versatile accommodation arranged over three floors, enjoying a south‑facing rear garden and stunning far‑reaching views across the town towards the golf course, woodland, and even with delightful glimpses of the sea.
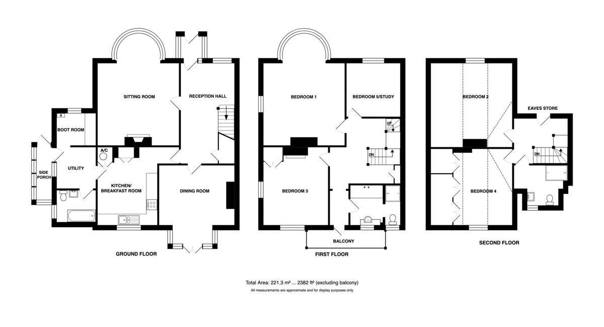
The grand entrance hall sets the tone for the accommodation, giving access to a light-filled sitting room with a substantial bay window, a separate dining room with direct access to the rear garden, and a modern kitchen/breakfast room which flows into the utility room. From here, further access is provided to the downstairs bathroom, boot room and side porch.
The first floor offers three spacious double bedrooms, a modern family bathroom, and access to a balcony from the landing-perfect for enjoying those elevated views. The top floor provides two additional double bedrooms and a further bathroom, with the panorama improving as you ascend through the house.

Outside, the property is complemented by beautifully landscaped grounds. There is off‑road parking to both the front and side, while the south‑facing rear garden is attractively tiered, offering a variety of seating and planting areas to enjoy throughout the seasons.

Additional benefits include gas-fired central heating and uPVC double glazing. This wonderful home is offered to the market with no onward chain, and an internal inspection is highly recommended to fully appreciate the scale, character and quality of accommodation on offer.
The accommodation comprises;

uPVC double glazed front door to;  

Entrance Porch Of part brick, part uPVC double glazed construction with pamment tiled floor and original front door including obscure stained glass to; 

Reception Hall 18' 6" x 9' 11" (5.64m x 3.02m) Stairs to first floor with understairs storage cupboard, parquet flooring, built-in cupboard housing electric meter, telephone and broadband points, radiator with cover, original skirtings, picture rails, Dado rail, doors to; 

Sitting Room 19' 3" reducing to 15'2" x 15' 0" (5.87m x 4.57m) uPVC double glazed bay window to front aspect, feature fireplace with tiled splays wooden mantel over and housing an electric flame effect fire, original skirting, picture rails and Dado, exposed wooden floor, two radiators, TV point. 

Dining Room 14' 0" reducing to 10'11" x 13' 11" (4.27m x 4.24m) Open fire with tiled splash back and hearth and wooden mantel over, original skirting, dado and picture rails, exposed wooden floor, radiator, large uPVC double glazed bay window to south aspect with French doors to the garden, TV aerial point. 

Kitchen/Breakfast Room 14' 4" x 10' 11" (4.37m x 3.33m) Plus door recessed. Fitted with a range of base units with working surfaces over, matching wall units, tiled splash back, one and a half bowl sink with mixer tap, space and plumbing for a dishwasher, space for an electric cooker, built-in cupboard housing lagged hot water cylinder and slatted shelves, blocked fireplace with mantle over with custom made doors on the front providing additional storage, recessed LED spotlights, uPVC double glazed window to south aspect offering lovely outlook over the garden and rooftops to woodland, door to; 

Utility Room 7' 7" x 7' 29" (2.31m x 2.87m) uPVC double glazed window and part glazed door to side porch, space and plumbing for a washing machine, space for a tall fridge and freezer, door to boot room and further door to; 

Bathroom 7' 2" x 5' 11" (2.18m x 1.8m) Fitted with a white suite comprising pedestal bath with mixer tap, low level WC, panelled bath with taps and electric shower over, heated towel rail, part tiled walls, extractor fan, side aspect uPVC double glazed window with obscure glass.

 

Boot Room 7' 2" x 5' 11" (2.18m x 1.8m) Housing a wall mounted gas boiler providing central heating and domestic hot water, worktop, wall mounted unit and open shelving, uPVC double glazed window to front aspect. 

Side Porch 9' 8" x 2' 10" (2.95m x 0.86m) Of uPVC double glazed construction with polycarbonate roof, power point and part glazed uPVC door to front.. 

First Floor  

Galleried Landing Stairs to second floor, original skirting, dado and picture rail, radiator, built in shelved cupboard, lobby with uPVC double glazed door to;. 

Balcony 14' 8" x 3' 3" (4.47m x 0.99m) With a lovely view over the garden and town to the hills in the distance.

 

Bedroom 1 19' 2" reducing to 15'2" x 15' 1" (5.84m x 4.6m) uPVC double glazed bay window to front aspect, further side aspect uPVC double glazed windows, both offering lovely views over the town and a little glimpse of the sea, golf course and Beeston Bump, original skirtings, picture rails and cornice, two radiators. 

Bedroom 3 14' 6" x 11' 1" (4.42m x 3.38m) A dual aspect room with far reaching views over town towards wooded hills and golf course, original skirting, dado and picture rails, original cast iron fireplace, radiator, built in wardrobe with hanging rail, shelves and a radiator. Overhead storage. 

Bedroom 5/Study 9' 11" x 9' 10" (3.02m x 3m) uPVC double glazed window to front aspect and radiator, original skirting and picture rail. 

Bathroom 9' 10" x 7' 4" (3m x 2.24m) Fitted with a modern suite comprising back-to-wall basin with taps and vanity unit beneath, double ended bath with mixer tap and shower attachment, low level WC, large shower cubicle with shower wall bifold door and Aqualisa Aquastream shower over, part tiled walls, two rear aspect uPVC double glazed windows with obscure glass, two heated towel rails. 

Second Floor  

Galleried Landing Radiator, eaves storage. 

Bedroom 2 15' 5" x 15' 1" (4.7m x 4.6m) Sloping ceiling, radiator, uPVC double glazed window offering views to Beeston Hill. 

Bedroom 4 14' 5" x 11' 2" (4.39m x 3.4m) uPVC double glazed window to South aspect offering views over the garden and town to the wooded hills, laminate flooring, radiator, sloping ceiling, hatch to loft and wall to wall built in storage cupboards. 

Bathroom 9' 10" reducing to 5'9" x 7' 0" (3m x 2.13m) Fitted with a white suite comprising a hip bath with mixer tap and shower attachment, low level WC, pedestal basin with taps, radiator, sloping ceiling, extractor fan, uPVC double glazed window to rear aspect.

 

Outside The property is approached via a brickweave drive providing off road parking for two cars with additional parking adjacent to the garden on Hillview Road and double gates at the side to access further parking at the rear of the garden.

The front garden is brick paved for ease of maintenance with a low wall and neatly tended hedge adorning the boundary. A side gate leads into the beautifully landscaped, tiered, South facing rear garden with paved patio seating area immediately to the rear of the building and steps leading onto a neatly tended lawn with further seating area, borders and beds planted with a wide variety of shrubs and flowers for yearlong colour and interest. At the rear of the garden is a useful shed and shingle area leading to a sloping hardstanding. The garden is fully enclosed by fencing providing a good degree of privacy.
 

Services All mains services. 

Local Authority/Council Tax North Norfolk District Council, Holt Road, Cromer, NR27 9EN.
Tel: 01263 513811
Tax band: D 

EPC Rating The Energy Rating for this property is D. A full Energy Performance Certificate available on request. 

Important Agent Note Intending purchasers will be asked to provide original Identity Documentation and Proof of Address before solicitors are instructed. 

We Are Here To Help If your interest in this property is dependent on anything about the property or its surroundings which are not referred to in these sales particulars, please contact us before viewing and we will do our best to answer any questions you may have.

The price quoted for the property does not include Stamp Duty or Title Registration fees, which purchasers will normally pay as part of the conveyancing process. Please ask us if you would like assistance calculating these charges. 

Property Ref: 101301039562

Share:

Similar Properties

Sheringham

3 Bedroom Detached Bungalow | Guide Price £580,000

A generous bungalow offering 1758 square feet of living accommodation, with DOUBLE GARAGE and parking, occupying an elev...

Holt

4 Bedroom Detached House | Guide Price £565,000

NO UPWARD CHAIN. A handsome, Georgian style residence, with the benefit of a double garage, built on a sought after deve...

Sheringham

4 Bedroom End of Terrace House | Guide Price £550,000

A unique, newly converted cottage offering extensive and flexible accommodation with superb views and direct access to t...

Cromer

4 Bedroom Detached House | Guide Price £615,000

An individual non-estate modern detached split-level residence, with abundant, light, space and excellent "B" rating for...

Sheringham

5 Bedroom Link Detached House | Guide Price £650,000

NO ONWARD CHAIN - A substantial detached, Edwardian house situated in a highly sought after location, within a short str...

Sheringham

5 Bedroom Semi-Detached House | Guide Price £650,000

A unique, attached character residence, occupying attractive grounds extending to just over 0.26 acre, offering extensiv...

Watsons (Sheringham)

Sheringham, Norfolk, NR26 8RG

01263 823201

How much is your home worth?

Use our short form to request a valuation of your property.

Request a Valuation

Mortgage Calculator

Amount Borrowed: £
Total Amount Repayable: £
Total Monthly Payment: £
©2026 The Guild of Property Professionals. All rights reserved. Terms and Conditions | Privacy Policy | Cookie Policy | Complaints Policy | Members Login
The Guild of Property Professionals Trading Address: 121 Park Lane, London W1K 7AG. GPEA Limited. Registered in England & Wales.  Company No: 02819824.  Registered Office Address: 2 St. Stephen's Court, St. Stephen's Road, Bournemouth, Dorset, England, BH2 6LA.  VAT Registration No: 576 8795 61
Book a Property Valuation Update Cookies Preferences