Sheringham

Guide Price
£220,000

3 Bedroom Flat for sale in Sheringham

3 2
  • Sitting/dining room
  • Modern fitted kitchen
  • Three bedrooms
  • Bathroom
  • Off road parking
  • Some furniture by negotiation
  • Share of freehold and lease extended to 999 years
  • Close to the train station and steam railway
  • Ideal as a permanent or holiday home
  • No onward chain

Location Sheringham is a delightful small town in an area of outstanding natural beauty on the North Norfolk coast, nestling between the sea and Pretty Corner woods. The town is a popular holiday destination and the centre has an excellent range of independent shops and supermarkets. There are excellent schools for all ages including many public schools within a few miles. There are bus and rail links to the bustling city of Norwich and the nearby towns of Holt and Cromer. There is a modern health centre, dentist, theatre and library together with the soon to open Reef Leisure Centre and a magnificent 18 hole cliff top golf course.

Sheringham also boasts some excellent coastal and woodland walks in the vicinity. The beach enjoys a blue flag status and is a mix of shingle and sand depending on the tide, with a wide promenade running the length of the town. The town hosts several events throughout the year including the Viking Festival, Crab and Lobster Festivals, Coast Air Festival, Carnival and 1940's Weekend and the North Norfolk Steam Railway attracts many visitors.  

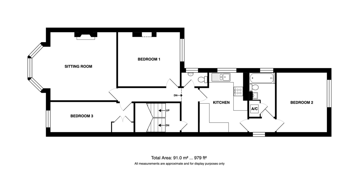
Description This immaculately presented, first floor apartment is situated just yards from the local shops, train and bus stations and just a short walk from the sea front.

The accommodation comprises a spacious sitting/dining room with a bay window to the front and a beautiful open fire. The kitchen is fitted with a modern range of units and includes the appliances. There are three good sized bedrooms and a bathroom. The vendors are also offering some of the furniture by separate negotiation. To the rear, accessed via Sadlers Lane, is off road parking for one car and a drying area. Other benefits include night storage heaters and uPVC double glazing.

The lease has been extended to 999 years and the property sale will include a 1/3 share of the freehold. We understand that pets are not allowed without the consent of the other freeholders.
The property is offered for sale with no onward chain.

The accommodation comprises;
Communal entrance and stairs to first floor, door to: 

Entrance Hall UPVC double glazed window to side aspect, laminate flooring, night storage heater, wall lights, glazed door to;  

Sitting/Dining Room 17' 7" reducing to 13'10" x 14' 3" (5.36m x 4.34m) Attractive fireplace with tiled splays, mahogany mantel and surround and marble inlays, tiled hearth, UPVC double-glazed bay window to front aspect offering views to the steam railway and a sea glimpse, wall and ceiling lights, TV ariel and free sat, night storage heater. 

Kitchen 12' 4" x 10' 0" reducing to 9'2" (3.76m x 3.05m) Beautifully fitted with a range of base units with working surfaces over, matching wall units, tiled splashback, one and half bowl sink with mixer tap, washing machine, integrated dishwasher and fridge, Belling electric cooker, slimline tumble dryer, tiled floor, side aspect UPVC double glazed window, glazed door to;  

Inner Hall Side aspect UPVC double glazed window, night storage heater, laminate flooring, door to; 

Bedroom 2 12' 6" x 10' 6" (3.81m x 3.2m) Rear-aspect UPVC double glazed window and shutters, night storage heater. 

Bathroom 9' 6" reducing to 7'1" x 5' 5" (2.9m x 1.65m) Side aspect UPVC double glazed window fitted with a panelled bath with electric shower over, low level WC, pedestal basin with taps, part tiled floors, wall-mounted open shelving and built-in cupboard housing the water tank and hot water cylinder, heated towel rail, tiled floor.

 

Cloakroom fitted with a low-level WC, wall mounted wash basin with taps, tiled splashback, high-level shelving, UPVC double glazed window to side aspect with obscure glass, laminate flooring. 

Bedroom 1 13' 0" x 11' 4" (3.96m x 3.45m) rear aspect UPVC double glazed window, night storage heater, blocked fireplace. 

Bedroom 3 17' 5" x 6' 4" (5.31m x 1.93m) Front aspect UPVC double glazed window, telephone point, night storage heater and built-in wardrobe. 

Outside There is parking for one car at the rear of the property which is accessed over Sadlers Lane. There is a small drying area and a right way down the side of the property to the front gate. 

Services Mains electricity, water and drainage.
There is gas to the building, but not to the apartment. 

Tenure We understand that the property will be sold with a newly extended lease of 999 years commencing 21st May 1975. The property also comes with a 1/3 share of the freehold.
Ground Rent; Nil
Service charge - Owners are responsible for 1/3 share of the maintenance costs, on an as and when basis.
Building Insurance - £288.35
 

Local Authority/Council Tax North Norfolk District Council, Holt Rd, Cromer, NR27 9EN.
Tel: 01263513811.
Tax Band: A 

EPC Rating The Energy Rating for this property is to follow. A full Energy Performance Certificate available on request. 

Important Agent Note Intending purchasers will be asked to provide original Identity Documentation and Proof of Address before solicitors are instructed. 

We Are Here To Help If your interest in this property is dependent on anything about the property or its surroundings which are not referred to in these sales particulars, please contact us before viewing and we will do our best to answer any questions you may have. 

Property Ref: 101301038517

Share:

Similar Properties

Sheringham

4 Bedroom Semi-Detached House | Guide Price £220,000

Situated just a stone's throw from the local shops, this four bedroom brick and flint property offers a unique opportuni...

Norwich

3 Bedroom Town House | Guide Price £220,000

A modern mid-townhouse on a popular riverside development on the north west of side of Norwich next to Wensum Park ideal...

Sustead, nr Cromer

2 Bedroom Terraced House | Guide Price £220,000

Delightful refurbished cottage with woodburner, countryside views, enclosed garden and parking, peacefully situated with...

Cromer

2 Bedroom Apartment | Guide Price £225,000

A superb, stylish and well appointed two bedroom top floor apartment in a prized position just to the south of the town...

Sheringham

2 Bedroom Apartment | £230,000

There is FANTASTIC LIGHT in this superbly presented, second floor apartment with the benefit of lovely SEA VIEWS, situat...

Beeston Regis, Sheringham

2 Bedroom Semi-Detached Bungalow | £230,000

A semi-detached bungalow requiring some updating, situated on the Southern outskirts of the village, within a short stro...

Watsons (Sheringham)

Sheringham, Norfolk, NR26 8RG

01263 823201

How much is your home worth?

Use our short form to request a valuation of your property.

Request a Valuation

Mortgage Calculator

Amount Borrowed: £
Total Amount Repayable: £
Total Monthly Payment: £
©2026 The Guild of Property Professionals. All rights reserved. Terms and Conditions | Privacy Policy | Cookie Policy | Complaints Policy | Members Login
The Guild of Property Professionals Trading Address: 121 Park Lane, London W1K 7AG. GPEA Limited. Registered in England & Wales.  Company No: 02819824.  Registered Office Address: 2 St. Stephen's Court, St. Stephen's Road, Bournemouth, Dorset, England, BH2 6LA.  VAT Registration No: 576 8795 61
Book a Property Valuation Update Cookies Preferences