Sheringham

Guide Price
£240,000

4 Bedroom Semi-Detached House for sale in Sheringham

4 1
  • Complete renovation project
  • Character features
  • Two reception rooms
  • Kitchen
  • Four bedrooms
  • Bathroom & separate WC
  • Garden to front and rear
  • Short stroll to the beach, train and bus stations
  • Cash buyers only
  • No onward chain

Location Sheringham is a picturesque town nestled in an Area of Outstanding Natural Beauty on the stunning North Norfolk coast, perfectly positioned between the sea and the enchanting Pretty Corner woods. Known for its bustling atmosphere, Sheringham boasts a vibrant town centre with a fantastic range of independent shops, well-known brands, and a Tesco supermarket offering convenient short-term parking. Excellent bus and rail links provide easy access to Norwich, the lively cultural hub just 27 miles south, the charming Georgian town of Holt, 6 miles away, and Cromer, a delightful Victorian seaside town 4 miles along the coast.

A highly sought-after destination for both holidaymakers and retirees, the town offers exceptional coastal and woodland walks, with Sheringham beach proudly holding Blue Flag status. The beach is complemented by a wide promenade that stretches the length of the town, ideal for seaside strolls.

Sheringham is well-equipped with modern amenities including a state-of-the-art health centre, dental services, theatre, and library. The Reef Leisure Centre and the town's renowned 18-hole cliff-top golf course offer further opportunities for recreation. Throughout the year, Sheringham hosts a variety of popular events such as the Viking Festival, Crab and Lobster Festival, Carnival, and the celebrated 1940s Weekend, ensuring there's always something to enjoy.

Sheringham combines coastal charm, natural beauty, and a warm community spirit, making it an exceptional place to visit or call home. 

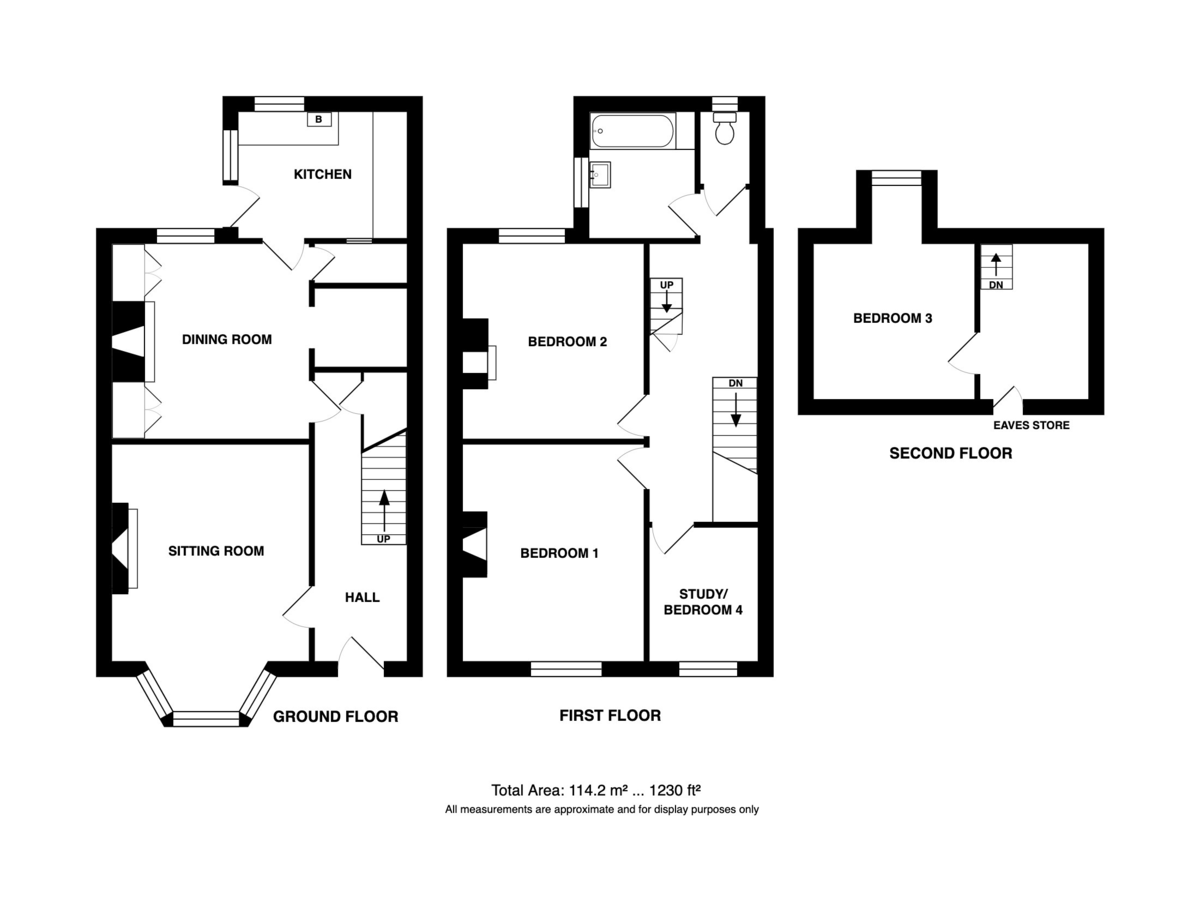
Description This semi-detached, Victorian, brick and flint house provides an exciting opportunity for complete renovation and repair, allowing the buyer to put their own tastes into it and create a home that is truly their own.
The property which is laid out over three floors, comprises an entrance hall with original tiled floor, sitting room and dining room, a kitchen with access to the rear garden, three bedrooms, a bathroom and separate WC on the first floor and a further bedroom and storage space on the second floor, accessed via a narrow staircase.

The garden is of a manageable size, wraps around three sides of the property and backs onto Tesco's warehouse, creating a good degree of privacy.

This project is perfect for a builder, property developer or for those with the vision and expertise to transform this characterful house into a stunning family home.

The accommodation comprises;

Timber front door to;
 

Entrance Hall 17' 4" x 5' 5" (5.28m x 1.65m) Original tiled flooring, stairs to first floor, understairs storage cupboard, radiator, electric meters, door to; 

Sitting Room 16' 10" x 11' 9" (5.13m x 3.58m) Tiled fireplace, exposed wooden floor, bay with sash windows to front aspect, radiator, picture rail. 

Dining Room 11' 10" x 11' 9" (3.61m x 3.58m) Tiled fireplace with timber mantle over, recessed cupboards either side of chimney breast, radiator, picture rail, sash window to rear aspect, large built-in storage cupboard with pamment tiled floor, further built-in cupboard with pamment tiled floor, shelf, power point and sash window to; 

Kitchen 10' 2" x 7' 7" (3.1m x 2.31m) Base cupboards and working surfaces over, single bowl/single drainer sink, wall cupboard, gas boiler providing central heating and domestic hot water, radiator, uPVC double-glazed window to side and rear aspect and uPVC door to garden. 

First Floor  

Galleried Landing Stairs to second floor with understairs storage cupboard. 

Bedroom 1 13' 0" x 10' 11" (3.96m x 3.33m) Sash window to front aspect, blocked fireplace with mantle over, picture rails, exposed timber floor, radiator, telephone point.

 

Bedroom 2 11' 83" x 10' 11" (5.46m x 3.33m) Rear aspect sash window, blocked fireplace with timber mantle over, picture rail, recessed cupboard, exposed timber floor and telephone point. 

Bedroom 4/Study 8' 0" x 6' 5" (2.44m x 1.96m) Exposed timber floor, sash window to front aspect radiator. 

Bathroom 7' 8" x 6' 5" (2.34m x 1.96m) Fitted with a pedestal basin and taps, panelled bath with mixer tap and shower attachment, part tiled walls, radiator, side aspect uPVC double glazed window with obscure glass, separate WC fitted with a low-level WC and single glazed window to rear aspect. 

Second Floor  

Landing Exposed timber floor, door to eaves storage. 

Bedroom 4 9' 8" x 9' 4" increasing to 12'8 (2.95m x 2.84m) Dormer window with uPVC double-glazed window to rear aspect, offering an outlook past Tesco to the sea and Beeston Hill, radiator. 

Outside The property is accessed via a timber gate onto a concrete path leading to the front door. The front garden is laid to shingle for ease of maintenance with a raised bed edged by bricks ready for planting. Planting includes mature lilac and roses around the door. A further path and gate leads to a garden extending down the side and rear of the property. This is enclosed by timber fencing, planted with shrubs and backs on to Tesco's warehouse. 

Services All mains services. 

Local Authority/Council Tax North Norfolk District Council, Holt Road, Cromer, NR27 9EN.
Tel: 01263513811
Tax band: C 

EPC Rating The Energy Rating for this property is E. A full Energy Performance Certificate available on request. 

Important Agent Note Intending purchasers will be asked to provide original Identity Documentation and Proof of Address before solicitors are instructed.

Given its current condition, we do not believe the property is readily mortgageable therefore prospective purchasers will need to be cash buyers. 

We Are Here To Help If your interest in this property is dependent on anything about the property or its surroundings which are not referred to in these sales particulars, please contact us before viewing and we will do our best to answer any questions you may have.

The price quoted for the property does not include Stamp Duty or Title Registration fees, which purchasers will normally pay as part of the conveyancing process. Please ask us if you would like assistance calculating these charges. 

Property Ref: 57482_101301038953

Share:

Similar Properties

Edgebrook Court, Holway Road

2 Bedroom Apartment | £240,000

Attractively presented upper ground floor apartment offering spacious bright and airy gas centrally heated accommodation...

Sheringham

2 Bedroom Ground Floor Flat | Guide Price £240,000

A superbly appointed two bedroom GROUND FLOOR seafront apartment enjoying lovely views over the gardens of The Leas to t...

Florence Road, Norwich

2 Bedroom Terraced House | Offers in excess of £240,000

An attractive bay front terrace house with 2 bathrooms and over-passage main bedroom, situated in an attractive and conv...

Mundesley

2 Bedroom End of Terrace House | Guide Price £250,000

Two bedroom beamed brick and flint character cottage with STUNNING SEA VIEWS in a popular village locating with good vil...

Beccles Road, Loddon

2 Bedroom Cottage | Guide Price £250,000

A deceptively spacious Grade II listed character cottage with a bright modern interior and 50' rear garden, situated in...

Holt

3 Bedroom Link Detached House | Guide Price £250,000

A link detached house with garage, requiring some refurbishment, nicely situated within walking distance of the town cen...

Watsons (Sheringham)

Sheringham, Norfolk, NR26 8RG

01263 823201

How much is your home worth?

Use our short form to request a valuation of your property.

Request a Valuation

Mortgage Calculator

Amount Borrowed: £
Total Amount Repayable: £
Total Monthly Payment: £
©2026 The Guild of Property Professionals. All rights reserved. Terms and Conditions | Privacy Policy | Cookie Policy | Complaints Policy | Members Login
The Guild of Property Professionals Trading Address: 121 Park Lane, London W1K 7AG. GPEA Limited. Registered in England & Wales.  Company No: 02819824.  Registered Office Address: 2 St. Stephen's Court, St. Stephen's Road, Bournemouth, Dorset, England, BH2 6LA.  VAT Registration No: 576 8795 61
Book a Property Valuation Update Cookies Preferences