Manor Close, Sherston

£675,000

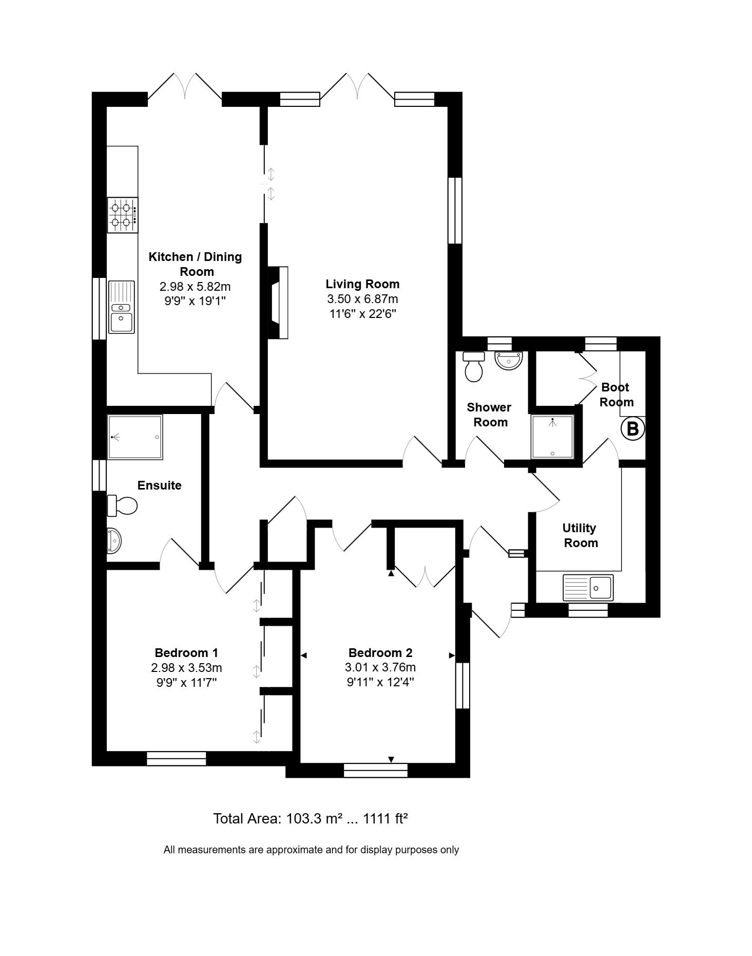
2 Bedroom Bungalow for sale in Sherston

1 2 2
  • Detached bungalow
  • Light and bright updated accommodation
  • 2 double bedrooms
  • Large light-filled living room
  • Kitchen/dining room
  • 2 bathrooms
  • Generous south-facing garden
  • Private off-street parking
  • Walking distance to the village High Street

Description


1 Manor Close is a light and bright, spacious detached bungalow situated within a popular residential close in the village of Sherston with a pleasant position adjoining the village allotments. The bungalow offers well-proportioned accommodation of around 1,111 sq.ft. coupled with a large mature garden and off-street parking. The property is located within level walking distance to the High Street which has excellent amenities including a shop, pub and doctor's surgery.


There are two double bedrooms arranged to the front, both with built-in wardrobes. The principal of which has an en-suite bathroom which is fitted with a walk-in shower whilst there is a further shower room off the hallway. The main living accommodation is arranged to the rear enjoying views over the garden filled with natural light from the sunny orientation. A large living room has a feature fireplace and double doors to the garden. The adjoining kitchen/dining room is fitted with modern units. There is an excellent separate utility room with boot room/boiler providing plenty of storage.


To the front, a driveway provides parking for several vehicles alongside a lawn. The rear garden is a particular feature of the property. Enjoying a south-facing aspect with an expansive lawn and timber decking. The garden has a good degree of privacy from well-established trees and shrub borders.


Situation


The beautiful, ancient and much sought after village of Sherston with its broad High Street and historic stone houses is set in an Area of Outstanding Natural Beauty conveniently located on the edge of the Cotswolds. Sherston has a thriving community and offers many facilities, including a church, popular primary school, doctors surgery, Co-op shop and post office, coffee shops, hairdresser, Indian restaurant, garden centre and the highly regarded 16th century Rattlebone Inn, with its excellent food and friendly atmosphere. The facilities and amenities in Sherston more than adequately provide for everyday need with a whole host of societies and clubs meeting on a regular basis offering entertainment and social events for young and old alike. Schooling locally is second to none, with very good state and independent schools providing transport to and from the village on a daily basis. Close by are the market towns of Malmesbury and Tetbury which are both approximately 5 miles away. Malmesbury is reputed to be the oldest Borough in the country dating back to the 11th Century. Both towns offer a wider range of shops, services, schooling and leisure facilities. There are main line stations to London-Paddington at Kemble (14 miles) and Chippenham (12 miles) whilst Junctions 17 & 18 of the M4 are both within 15 minutes' drive providing convenient access to Bath, Bristol and Swindon.

Additional Information


We understand the property is Freehold with oil-fired central heating, mains drainage, water and electricity. The property is located within the Cotswold Area of Outstanding Natural Beauty. Superfast broadband is available and there is good mobile phone coverage with some limitations. Please check the Ofcom mobile and broadband checker website for more information. Wiltshire Council Tax Band D.

Important Information

  • This is a Freehold property.
  • This Council Tax band for this property is: D

Property Ref: 2775_1213229

Share:

Similar Properties

Draper Close, Tetbury

4 Bedroom Detached House | £675,000

Situated on a small drive comprising only 3 properties overlooking a large open green, this detached Cotswold stone hous...

The Street, Alderton

4 Bedroom Semi-Detached House | £665,000

Situated in the rural village of Alderton, this attractive double gable fronted semi-detached Cotswold stone cottage off...

Jenner Lane, Malmesbury

4 Bedroom Detached House | £650,000

Occupying a corner plot, this detached family house is superbly appointed with an excellent configuration of light-fille...

Sawyers Hill, Minety

4 Bedroom Detached House | £695,000

Situated in the centre of the village close to amenities, an individually designed and built detached family-sized home...

High Street, Sherston

3 Bedroom Terraced House | £695,000

Situated in the heart of the highly sought after village of Sherston, a delightful period house with the rare advantage...

Littleton Drew

4 Bedroom Detached House | £695,000

A beautifully finished, extended detached chalet style home positioned within the peaceful village of Littleton Drew bac...

James Pyle & Co (Sherston)

Swan Barton, Sherston, Wiltshire, SN16 0LJ

01666 840886

How much is your home worth?

Use our short form to request a valuation of your property.

Request a Valuation

Mortgage Calculator

Amount Borrowed: £
Total Amount Repayable: £
Total Monthly Payment: £
©2025 The Guild of Property Professionals. All rights reserved. Terms and Conditions | Privacy Policy | Cookie Policy | Complaints Policy | Members Login
The Guild of Property Professionals Trading Address: 121 Park Lane, London W1K 7AG. GPEA Limited. Registered in England & Wales.  Company No: 02819824.  Registered Office Address: 2 St. Stephen's Court, St. Stephen's Road, Bournemouth, Dorset, England, BH2 6LA.  VAT Registration No: 576 8795 61
Book a Property Valuation Update Cookies Preferences