Warsash Road, Warsash

Guide Price
£399,950

3 Bedroom Semi-Detached House for sale in Southampton

2 3 1
  • Well presented accomodation
  • Substantial south facing garden
  • Extensive driveway parking with space for caravan/motorhome
  • Period features such as fireplaces and doors
  • Repainted externally and internally 3 years ago
  • EPC- D

*** VACANT POSSESSION***

Situated in a popular residential location within walking distance to amenities and schools, a spacious semi detached 1920's cottage set in particularly generous gardens with ample driveway parking.

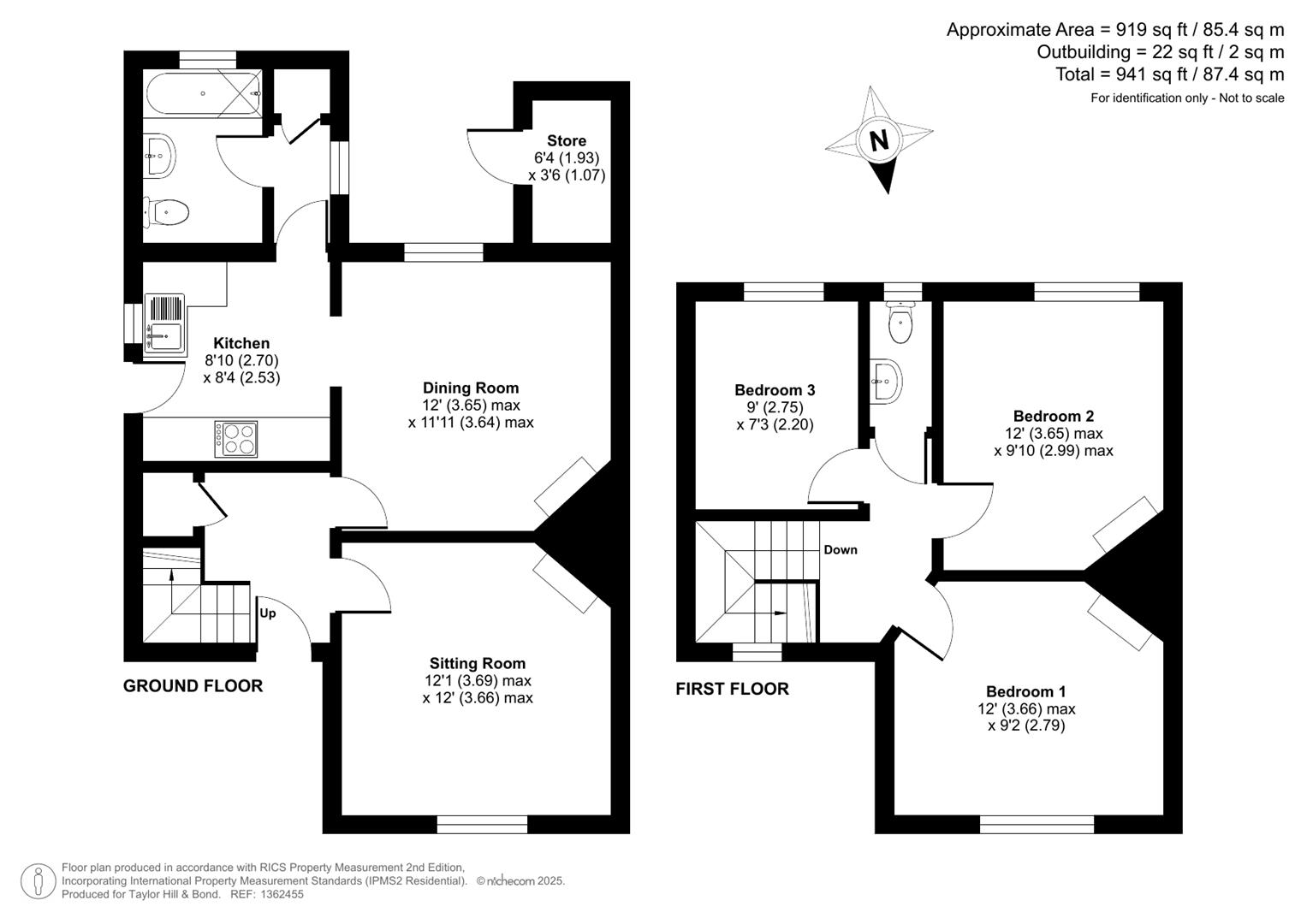
The property benefits from two reception rooms, both of which have period fireplaces retained. The dining room has an archway leading through to the kitchen, which has a range of cupboards with appliance space and a freestanding electric cooker. A door leads to the garden and a further door leads to an Inner Lobby which gives access to the ground floor contemporary Bathroom. On the first floor three Bedrooms, two of which are of double proportions with Bedroom 1 & 2 also benefiting from period cast iron fireplaces. Outside, a picket fence and shingle driveway provide parking for several cars, including space for a motorhome A gate leads to the rear garden. This is particularly generous size with a seating area, outside store and tap and a timber shed.

The property is conveniently located for easy access to the A27/M27. Southampton International Airport is 9.4 miles away with the adjacent Parkway station connecting to London Waterloo in one hour and ten minutes. The property has a Tesco Express close by with Locks Heath Shopping Centre 1 mile away offering excellent amenities, including Waitrose.? Locks Heath Junior School is also 0.4 miles away and Hook with Warsash Primary School 1 mile away.

SUMMARY OF FEATURES:
Well presented accommodation; Worcester boiler fully serviced; All gutters, facias and soffits replaced 3 years ago; First floor W.C added; Carpets replaced 3 years ago; Vinyl flooring to Entrance Hall and Dining Room replaced 3 years ago; Rear windows replaced 10 years ago; Repainted both externally and internally 3 years ago; Period doors; Sought after location; Ample driveway parking; Substantial south facing rear garden.

GENERAL INFORMATION:
TENURE: Freehold; SERVICES: All mains services; LOCAL AUTHORITY: Fareham Borough Council; TAX BAND: C

DISTANCES:
Locks Heath Infant School - 0.4 miles; Warsash Common - 0.6 miles; Locks Heath Centre - 1 mile; River Hamble - 1.3 miles; M27, J9 - 2.3 miles

Property Ref: 34258218

Share:

Similar Properties

Hollam Crescent, Fareham

3 Bedroom Detached House | Guide Price £399,950

Situated in a convenient location along a quiet cul-de-sac with good road and rail links nearby, a much-loved family hom...

Willow Brook Close, Titchfield Common

3 Bedroom Semi-Detached House | Guide Price £392,000

Situated within a small development and tucked away in a quiet cul-de-sac conveniently located for local amenities, gree...

Church Path, Titchfield Village

3 Bedroom Terraced House | Guide Price £392,000

Situated within the heart of this most sought after village, tucked away along a single track no through lane, a stunnin...

The Florins, Titchfield Common

3 Bedroom Semi-Detached House | Guide Price £400,000

Situated in a peaceful, tucked away location in a wooded enclave at the head of this small development, a stunning tradi...

Friary Meadow, Titchfield

2 Bedroom Retirement Property | £400,000

Two bedroom ground floor apartment which is elevated to the rear with balcony overlooking the communal garden, the maste...

Cheviot Green, Warsash

3 Bedroom Semi-Detached Bungalow | Guide Price £405,000

***NO ONWARD CHAIN***Situated in a quiet attractive cul-de-sac half a mile from Warsash village local amenities and Wars...

Taylor Hill & Bond (Titchfield)

Titchfield, Fareham, Titchfield, Hampshire, PO14 4RT

01329 844812

How much is your home worth?

Use our short form to request a valuation of your property.

Request a Valuation

Mortgage Calculator

Amount Borrowed: £
Total Amount Repayable: £
Total Monthly Payment: £
©2026 The Guild of Property Professionals. All rights reserved. Terms and Conditions | Privacy Policy | Cookie Policy | Complaints Policy | Members Login
The Guild of Property Professionals Trading Address: 121 Park Lane, London W1K 7AG. GPEA Limited. Registered in England & Wales.  Company No: 02819824.  Registered Office Address: 2 St. Stephen's Court, St. Stephen's Road, Bournemouth, Dorset, England, BH2 6LA.  VAT Registration No: 576 8795 61
Book a Property Valuation Update Cookies Preferences