St. Leonards, Exeter

Guide Price
£450,000
SSTC
This property listing is now SSTC

3 Bedroom Semi-Detached House for sale in St. Leonards

2 3 1

Directions

From Exeter City Centre proceed along Topsham Road and turn right opposite the County Hall into Rivermead Road. Follow the road around to the left and the house will be found on the left hand side.

Situation

Situated in one of the most highly regarded roads in St Leonards with its close proximity to the local schools and R D & E Hospital and of course the river with its lovely waterside walks, park and cycle paths. The city is easily accessed by bus, car or bike and the motorway link is just 1.5 miles away.

The city offers renowned higher educational facilities with its University and College. There are excellent sports and leisure facilities situated on the river and Exeter offers a selection of theatres, cinemas, museum, cathedral, football, rugby and leisure centres. Rail links to London Paddington. Exeter Airport is approximately 5 miles away providing air services within the UK and international destinations.

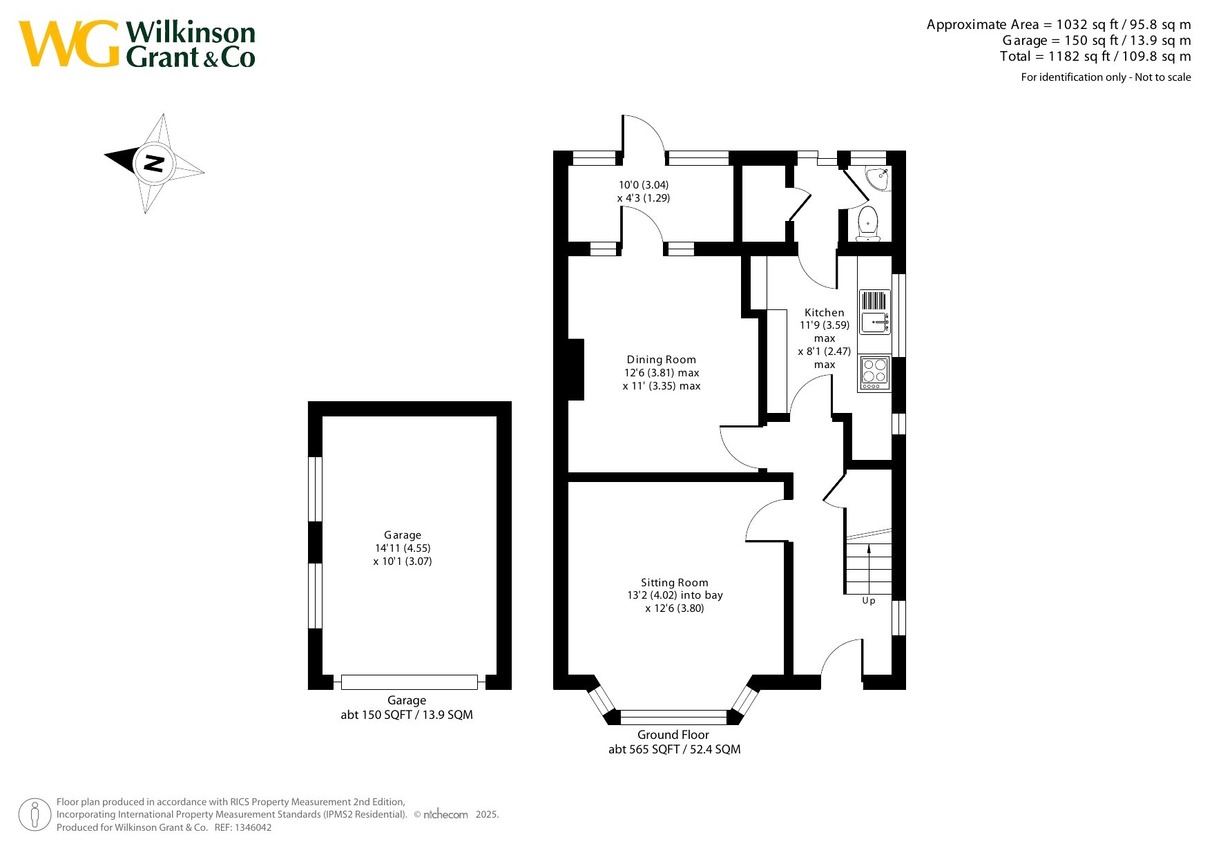
Description

A wonderful opportunity to purchase this 1930's semi detached family home, located in one of Exeter's most popular roads within prestigious St Leonards. This exceptional property offers generously proportioned, family sized accommodation and occupies a prime spot and offered for sale with no onward chain.

You're greeted by a spacious reception hallway which is a fantastic welcoming space with access to both reception rooms and kitchen. The sitting room is a lovely, spacious bay fronted reception room enjoying a pleasant, leafy outlook to the front. There's a gas, coal effect fire place and picture rails. Flowing effortlessly from the sitting room, the dining room offers a lovely view over the rear garden, an ideal setting for relaxed family meals or entertaining guests with the addition of the sun room. The well-appointed kitchen is bright and functional, featuring a range of units and appliances, opening into a handy store and downstairs cloakroom.

Upstairs, the first floor offers three well-proportioned bedrooms, including a spacious principal bedroom with a charming bay window that fills the room with natural light. The second bedroom enjoys delightful views over the rear garden, creating a peaceful and scenic backdrop and the third completes the first floor rooms which is a good sized single. This floor is completed by a family bathroom with a panel enclosed bath and wash hand basin with a separate cloakroom.

Outside, the property boasts a delightful and private enclosed rear garden, creating an ideal setting for outdoor relaxation. A shared driveway provides access to a single garage, which benefits from both power and lighting and parking to the front ensuring practicality and ease.

SERVICES:    The vendor has advised the following: Mains gas (serving the central heating boiler and hot water), mains electricity, water and drainage. Gas fire. Telephone landline connected and currently under Contract with Talk Talk. Broadband: Download speed 35.94 Mbps and Upload speed 2.12 Mbps. Mobile signal: Several networks currently showing as available at the property including O2, EE, and Vodafone.

AGENTS NOTE:    The property benefits from Residents Parking in Zone R. The vendors have a right of way over and along the driveway belonging to 45 Rivermead Road for the purposes of accessing their garage. The property is unregistered at the Land Registry and will require first registration on completion.

50.710719 -3.517532

Important Information

  • This is a Freehold property.

Property Ref: NEW250187

Share:

Similar Properties

Dunsford, Exeter

2 Bedroom Bungalow | Guide Price £450,000

A generous sized 2 bedroom detached bungalow with south facing lawned gardens situated in a quiet village cul-de-sac adj...

Heavitree, Exeter

4 Bedroom Detached House | Guide Price £450,000

FANTASTIC LOCATION! Four bedroom DETACHED home situated in Heavitree, MINUTES from Royal Devon & Exeter Hospital. Offeri...

Exeter, Devon

3 Bedroom Bungalow | Guide Price £450,000

A 3 BEDROOM DETACHED MODERN BUNGALOW enjoying a peaceful elevated cul-de-sac location with WONDERFUL COUNTRYSIDE VIEWS,...

Millbrook Lane, Exeter

4 Bedroom Detached House | Guide Price £465,000

2015-BUILT detached house in a SELECT ADDRESS Ideal for RIVERSIDE WALKS, the QUAY, RD&E Hospital and CITY CENTRE. Light,...

Pennsylvania, Exeter

4 Bedroom Detached House | Guide Price £465,000

A well-presented modern FOUR/FIVE BEDROOM DETACHED family home with a WESTERLY FACING GARDEN and spacious, flexible thre...

St Leonards, Exeter

3 Bedroom Semi-Detached House | Guide Price £495,000

A SUPERBLY PRESENTED semi detached house located in the prestigious ST. LEONARDS area, with easy access to SCHOOLS, RIVE...

Wilkinson Grant & Co (Exeter)

1 Castle Street, Southernhay West, Exeter, Devon, EX4 3PT

01392 427500

How much is your home worth?

Use our short form to request a valuation of your property.

Request a Valuation

Mortgage Calculator

Amount Borrowed: £
Total Amount Repayable: £
Total Monthly Payment: £
©2026 The Guild of Property Professionals. All rights reserved. Terms and Conditions | Privacy Policy | Cookie Policy | Complaints Policy | Members Login
The Guild of Property Professionals Trading Address: 121 Park Lane, London W1K 7AG. GPEA Limited. Registered in England & Wales.  Company No: 02819824.  Registered Office Address: 2 St. Stephen's Court, St. Stephen's Road, Bournemouth, Dorset, England, BH2 6LA.  VAT Registration No: 576 8795 61
Book a Property Valuation Update Cookies Preferences