Church Street, Stamford

Offers Over
£350,000

2 Bedroom Character Property for sale in Stamford

2 2 1
  • Town Centre Location
  • Well Presented Throughout
  • Two Bedrooms
  • Study/Bedroom 3
  • Open-Plan Living Room
  • Modern Kitchen Diner
  • Amazing Views Over Town Centre
  • Currently used as a Popular AirBnB
  • Please Refer to Attached KFB For Material Information Disclosures


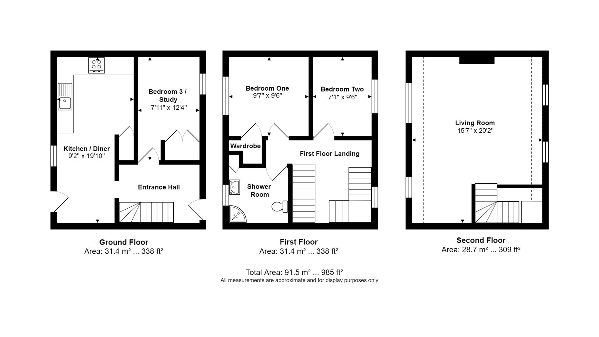
This stylish townhouse maintains its character and charm with stone exteriors, tall ceilings and exposed beams, yet incorporates contemporary colour schemes, spotlight fittings and excellently finished kitchen and shower room. The property is split over 3 storeys and briefly comprises: Entrance Hall, Modern Dining Kitchen with integrated appliances and a Study/Bedroom on the ground floor. To the first floor are Two Bedrooms and a Shower Room. On the second floor is a Living Room which has amazing distant views over Stamford.

Agents Note:
Local Authority – Lincolnshire
Council Tax Band – C
EPC Rating - D

Entrance Hall

Kitchen Diner
2.79m x 6.05m (9'2" x 19'10")

Study/Bedroom 3
2.41m x 3.76m (7'11" x 12'4")

First Floor Landing

Bedroom 1
2.92m x 2.90m (9'7 x 9'6")

Bedroom 2
2.16m x 2.90m (7'1" x 9'6")

Shower Room

Second Floor

Living Room
4.75m x 6.15m (15'7" x 20'2")


Sizes and dimensions are calculated using a laser measuring modelling device and as such whilst representative it must be noted that they are all approximate, actual sizes may vary.

Important Information

  • This Council Tax band for this property is: C
  • EPC Rating is D

Property Ref: 43069_34273414

Share:

Similar Properties

Arran Road, Stamford

3 Bedroom Semi-Detached House | Offers Over £350,000

This substantially extended 3/4 bedroom semi detached family home is set on the popular Scottish estate, close to Malcol...

Highfield Cottages, South Luffenham, Oakham

3 Bedroom Semi-Detached House | £350,000

This generously proportioned 3 bedroom Semi-Detached Family Home is situated in the sought after Rutland village of Sout...

Aldgate Court, Ketton, Stamford

3 Bedroom Character Property | £350,000

Tucked away in the sought-after village of Ketton, just a short drive from the historic market town of Stamford, this be...

Torkington Gardens, Stamford

3 Bedroom Semi-Detached House | £360,000

Well-presented 3 bedroom semi detached house situated in the heart of Stamford, close to Waitrose and within a five-minu...

Barrowfield Drive, Stamford

4 Bedroom Townhouse | £375,000

Situated in a quiet tucked away position in the heart of this very popular development is this extremely well presented...

Lincoln Road, Stamford

3 Bedroom Semi-Detached House | £385,000

Situated in this popular residential location, close to schools, as well as being walkable from Stamford’s Town Centre a...

Goodwin Property (Stamford)

St Johns Street, Stamford, Lincolnshire, PE9 2DA

01780 750000

How much is your home worth?

Use our short form to request a valuation of your property.

Request a Valuation

Mortgage Calculator

Amount Borrowed: £
Total Amount Repayable: £
Total Monthly Payment: £
©2025 The Guild of Property Professionals. All rights reserved. Terms and Conditions | Privacy Policy | Cookie Policy | Complaints Policy | Members Login
The Guild of Property Professionals Trading Address: 121 Park Lane, London W1K 7AG. GPEA Limited. Registered in England & Wales.  Company No: 02819824.  Registered Office Address: 2 St. Stephen's Court, St. Stephen's Road, Bournemouth, Dorset, England, BH2 6LA.  VAT Registration No: 576 8795 61
Book a Property Valuation Update Cookies Preferences