Bradley Lodge, Dipton

Offers in region of
£395,000

3 Bedroom Detached House for sale in Stanley

3
  • Premium Property
  • Period Home
  • 3 Reception Rooms
  • Landscaped Garden
  • Driveway and Garage
  • Close to amenities

A rare find on the market, Bradley Lodge is a charming THREE-bedroom home that blends character, comfort, and thoughtful design. Tastefully restored and beautifully presented, it offers generous living space, modern finishes, and a peaceful setting close to local amenities.

Tucked away at the entrance of a quiet cul-de-sac, Bradley Lodge immediately impresses with its characterful charm and inviting atmosphere. This much-loved home has been carefully restored by the current owners, creating a warm and welcoming retreat with a seamless blend of traditional features and modern style.

The heart of the home is the open-plan kitchen, fitted with classic cream units, oak flooring, and a range of integrated appliances including a gas hob, dishwasher, microwave and electric oven. This sociable space flows naturally into a cosy snug area, complete with a log burner and patio doors that frame views of the garden and invite natural light into the room.

To the front, the lounge is dressed in neutral tones and features a striking fireplace alongside a large bay window, offering a calm and comfortable setting for relaxation. A further reception room, currently used as a home office, adds flexibility and could easily be adapted as a fourth bedroom if required. Completing the ground floor is a stylish shower room and a useful utility area with access to the garage.

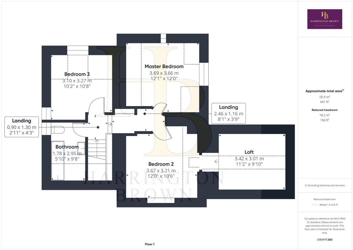
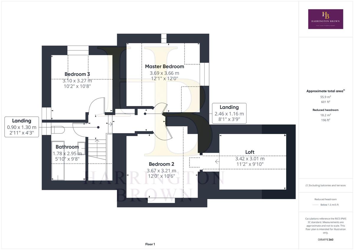
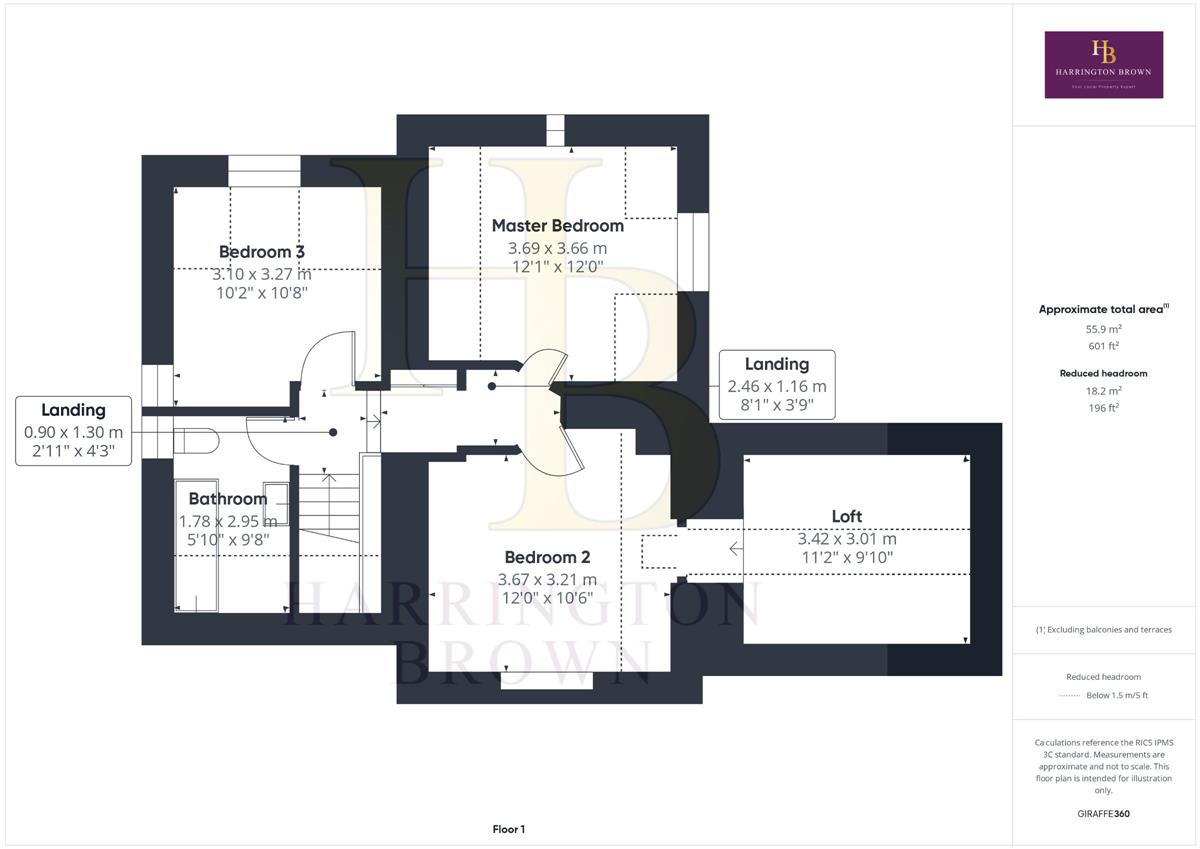
Upstairs, the accommodation has been extended to include a thoughtful loft conversion, providing a bright and airy family bathroom. There are two well-proportioned double bedrooms and a third bedroom with built-in storage and access to a versatile loft space.

Externally, the property continues to impress, with a charming front garden featuring a patio and mature borders, a driveway providing off-street parking, and a garage. An outdoor shed offers further storage, and the peaceful setting adds to the appeal.

Bradley Lodge is a rare opportunity to purchase a home that feels as special as it looks - ready to move into and full of charm.

The property is located near St. Patrick's Catholic Primary School, which caters to students from Reception to Year 6. It also benefits from access to local amenities in the nearby towns of Stanley and Consett, both of which offer a variety of supermarkets. Furthermore, there are secondary schools available in both towns, along with convenient public transport options, ensuring strong commuter links to Newcastle and Durham. Additionally, you'll find a good selection of independent businesses nearby, including The Burrows tea room and The Owl and Otter restaurant.

Don't miss the chance to make Bradley Lodge your new home! contact us today to arrange your viewing and experience the charm this unique property has to offer.

Council Tax Band: C
Tenure: Freehold
Garden details: Private Garden
Electricity supply: Mains
Heating: Gas Mains
Water supply: Mains
Sewerage: Mains

Entrance Hall w: 1.88m x l: 4.32m (w: 6' 2" x l: 14' 2")

Kitchen/diner w: 7.86m x l: 3.42m (w: 25' 9" x l: 11' 3")

Living room w: 5.29m x l: 3.63m (w: 17' 4" x l: 11' 11")

Office w: 3.02m x l: 3.65m (w: 9' 11" x l: 12' )

Shower Room w: 0.76m x l: 3.16m (w: 2' 6" x l: 10' 4")

Garage w: 2.84m x l: 5.85m (w: 9' 4" x l: 19' 2")

FIRST FLOOR:

Landing w: 0.9m x l: 1.3m (w: 2' 11" x l: 4' 3")

Master bedroom w: 3.69m x l: 3.66m (w: 12' 1" x l: 12' )

Bedroom 2 w: 3.67m x l: 3.21m (w: 12' x l: 10' 6")

Loft w: 3.42m x l: 3.01m (w: 11' 3" x l: 9' 11")

Bedroom 3 w: 3.1m x l: 3.27m (w: 10' 2" x l: 10' 9")

Bathroom w: 1.78m x l: 2.95m (w: 5' 10" x l: 9' 8")

Please note
Agents Note to Purchasers:

We strive to ensure all property details are accurate, however, they are not to be relied upon as statements of representation or fact and do not constitute or form part of an offer or any contract. All measurements and floor plans have been prepared as a guide only. All services, systems and appliances listed in the details have not been tested by us and no guarantee is given to their operating ability or efficiency. Please be advised that some information may be awaiting vendor approval.

Submitting an Offer:

Please note that all offers will require financial verification including mortgage agreement in principle, proof of deposit funds, proof of available cash and full chain details including selling agents and solicitors down the chain. To comply with Money Laundering Regulations, we require proof of identification from all buyers before acceptance letters are sent and solicitors can be instructed.

Important Information

  • This is a Freehold property.

Property Ref: RS1179

Share:

Similar Properties

Stoneleigh, North Road

5 Bedroom Semi-Detached House | Offers in region of £350,000

Truly breathtaking late Victorian stone-built residence, double fronted with elegant bay windows and rich in local histo...

Mill House, Ebchester

3 Bedroom Detached House | Offers in region of £350,000

Rare opportunity to transform a charming stone-built three-bedroom detached home set on a quiet lane on the outskirts of...

Broadwood View, Shotley Bridge

3 Bedroom Detached House | Offers in region of £330,000

A truly unique and beautifully presented three-bedroom detached home, set within a highly desirable position in Shotley...

Zion House, Shotley Bridge

5 Bedroom Detached House | Offers in region of £400,000

Zion House is a stunning, uniquely designed FIVE-bedroom detached home that offers expansive living space. The property...

Bishops Meadow, Lanchester

5 Bedroom Detached House | Offers in region of £425,000

This impressive 5-bedroom detached stone-faced home has been generously extended and is located in a small exclusive dev...

Sandypath Cottage Smallholding, Shotley Grove Road, Shotley Bridge

3 Bedroom Detached House | Offers in region of £445,000

***Small Holding Opportunity*** A charming stone-built cottage with sweeping views across the Derwent Valley, set on a q...

Harrington Brown Property (Shotley Bridge)

Shotley Bridge, Durham, DH8 0HQ

01207 258 500

How much is your home worth?

Use our short form to request a valuation of your property.

Request a Valuation

Mortgage Calculator

Amount Borrowed: £
Total Amount Repayable: £
Total Monthly Payment: £
©2026 The Guild of Property Professionals. All rights reserved. Terms and Conditions | Privacy Policy | Cookie Policy | Complaints Policy | Members Login
The Guild of Property Professionals Trading Address: 121 Park Lane, London W1K 7AG. GPEA Limited. Registered in England & Wales.  Company No: 02819824.  Registered Office Address: 2 St. Stephen's Court, St. Stephen's Road, Bournemouth, Dorset, England, BH2 6LA.  VAT Registration No: 576 8795 61
Book a Property Valuation Update Cookies Preferences