Station Road, Chilbolton, Stockbridge, Hampshire, SO20

£1,025,000
SSTC
This property listing is now SSTC

4 Bedroom Detached House for sale in Stockbridge

4
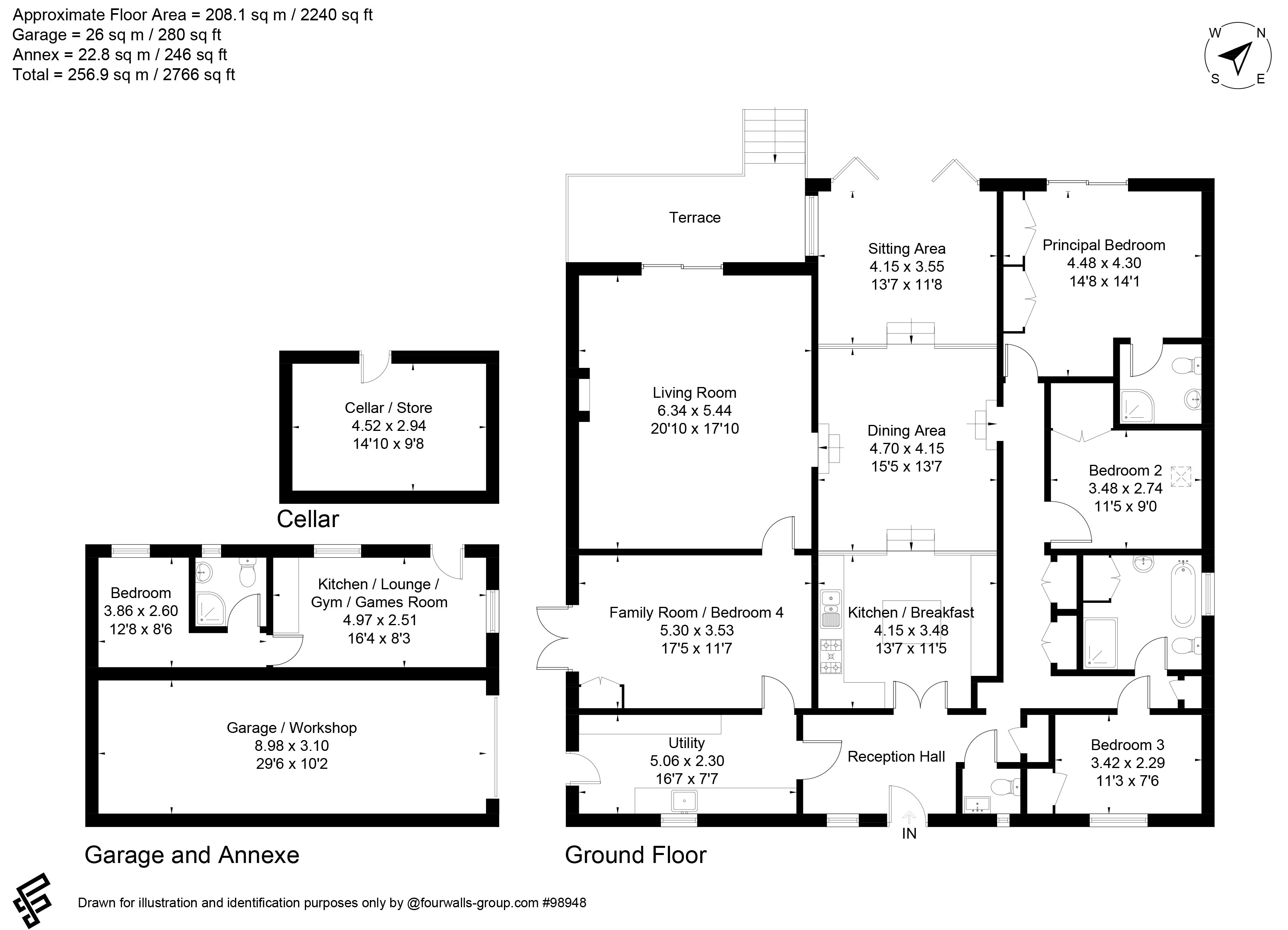
  • large individual detached bungalow
  • three/four bedrooms, one en-suite
  • 3 reception rooms
  • mature quarter of an acre gardens
  • views over Test Valley
  • tandem garage, workshop
  • annexe

A substantial split level residence, recently modernised and extended, featuring a reception hall with cloakroom. This leads into a unique open plan central living space beneath a high vaulted ceiling, focused on a full height glazed gable with panoramic views over the Test Valley. The lower level opens onto a large split level terrace overlooking the private garden, with an upper kitchen breakfast room, mid level dining area and lower sitting area with full ceiling height. Additional accommodation includes a large main living room with fireplace, family room or potential fourth double bedroom and a spacious utility. The bedroom wing, off a wide hallway, comprises of a principal bedroom and ensuite with a glazed door creating a picture window with views over the valley, two further bedrooms and a large family bathroom. A gated driveway provides parking and leads to a tandem garage workshop, adjoining a garden studio/annexe, with living room, kitchenette, bedroom and shower room.

Important Information

  • This is a Freehold property.

Property Ref: 031689_STO250108

Share:

Similar Properties

Easton Common Hill, Winterslow, Salisbury, Wiltshire, SP5

4 Bedroom Detached House | £975,000

A unique property on 1.34 acres with stunning countryside views, featuring an extended cottage, outbuilding and office/g...

Upper Clatford, Andover, Hampshire SP11

5 Bedroom House | Offers in region of £950,000

An individual detached five double bedroom village house offering comprehensive and characterful accommodation with plen...

Mill Lane, East Winterslow, Salisbury, Wiltshire, SP5

4 Bedroom Detached House | Guide Price £950,000

An excellent detached brand new 4/5 bedroom family house with well appointed and particularly spacious accommodation sta...

Goodworth Clatford, Andover, Hampshire, SP11

5 Bedroom Detached House | £1,045,000

A substantial beautifully presented and recently re-thatched period cottage providing spacious family accommodation with...

South Road, Broughton, Stockbridge, Hampshire, SO20

5 Bedroom Detached House | £1,050,000

A unique property comprising a 4 bedroom house and completely self contained annexe all completely modernised and enjoyi...

Hatherden, Andover, Hampshire SP11

6 Bedroom House | Offers in region of £1,100,000

An attractively positioned detached house and adjacent detached bungalow/potential plot, offering great scope for improv...

Evans & Partridge (Stockbridge) (Stockbridge)

Stockbridge, Hampshire, SO20 6HF

01264 810 702

How much is your home worth?

Use our short form to request a valuation of your property.

Request a Valuation

Mortgage Calculator

Amount Borrowed: £
Total Amount Repayable: £
Total Monthly Payment: £
©2026 The Guild of Property Professionals. All rights reserved. Terms and Conditions | Privacy Policy | Cookie Policy | Complaints Policy | Members Login
The Guild of Property Professionals Trading Address: 121 Park Lane, London W1K 7AG. GPEA Limited. Registered in England & Wales.  Company No: 02819824.  Registered Office Address: 2 St. Stephen's Court, St. Stephen's Road, Bournemouth, Dorset, England, BH2 6LA.  VAT Registration No: 576 8795 61
Book a Property Valuation Update Cookies Preferences