Longton Road, Nanny Goat Lane Longton Road, ST15

Guide Price
£350,000

2 Bedroom Plot for sale in Stone

1 2 2
  • Opportunity not to be missed to create your unique home in the Moddershall Valley yet walking distance to Stone town centre
  • A plot amounting to 0.88 acres with full planning for a stunning contemporary residential dwelling and detached garage.
  • Design led architect plans for a wonderful woodland retreat embracing the countryside surroundings.
  • Currently onsite there is a log cabin with independent utility services.
  • We understand the permitted development associated with the new build has been retained, potentially allowing for future expansion.

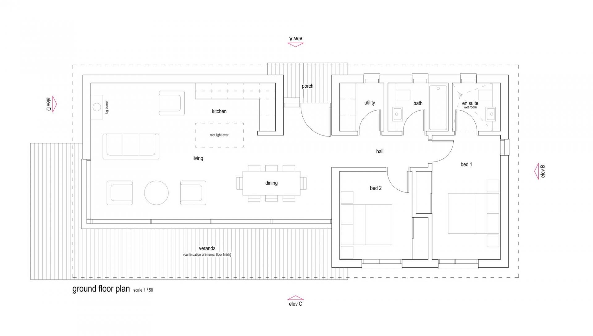
Like bees round a honeypot, there’s very likely to be a buzz created here at The Chalet, nestled neatly in Nanny Goat Lane, just a few minutes stroll from Stone town centre, yet overlooking the Moddershall Valley and with a sense of complete seclusion, this is an astonishingly good opportunity to create a unique home. With a design led architect plan, and full planning permission to build on the site of the existing timber framed chalet, sites like this are few and far between. You have an opportunity like a bee who collects nectar without injuring the flower to create a home which respects it’s surroundings. The contemporary design has been well considered in order to allow for a comfortable lifestyle with accommodation within the planning for an open plan living space to include the kitchen area and opening out to a large covered verandah where you can enjoy the open countryside all around, a separate utility room, two generous bedrooms with the master having it’s own ensuite as well as a separate bathroom as well as planning for a detached double garage. It is worth noting that this site has retained its permitted development so there’s plenty of potential and possible you could be the person to take it to the next level, maybe even literally! Possibly a basement floor? The options are all here in this unique once in a lifetime opportunity to build your very own dream home!

Important Information

  • This is a Freehold property.
  • EPC Rating is E

Property Ref: d762522b-b77a-4e6d-94bc-5005b80257bd

Share:

Similar Properties

Parker-Jervis Place, Stone, ST15

4 Bedroom Detached House | Offers in excess of £350,000

Delightful detached 4-bed family home on sought after Udall Grange development in Stone. Tastefully decorated, spacious...

Rudyard Close, Stone, ST15

4 Bedroom House | Offers in excess of £350,000

4-bed home on Rudyard Close, Whitebridge Estate, prime Canalside living. Garage converted to 4th bed/reception. U-shaped...

Lightwood Road, Stoke-On-Trent, ST3

3 Bedroom Detached Bungalow | Offers Over £350,000

"Stunning detached 3-bed bungalow on Lightwood Road, offering space, style, and convenience. Modern kitchen, bright livi...

Walleys Drive, Newcastle, ST5

4 Bedroom Semi-Detached House | Offers in excess of £360,000

Spacious four-bedroom semi-detached home in sought-after May Bank with open-plan kitchen, family room, tiered garden, ga...

Star & Garter Road, Stoke-On-Trent, ST3

4 Bedroom Detached House | Offers in excess of £375,000

Rare three-storey, four-bedroom Star and Garter Road. Flexible family living, perfect for entertaining, working from hom...

Marston Lane, Marston, ST18

4 Bedroom Detached House | £375,000

L is for this lovely 4-bed detached home on Marston Lane. Modern kitchen, living room and separate study, master ensuite...

James Du Pavey Estate Agents (Stone)

Christchurch Way, Stone, Staffordshire, ST15 8BZ

01785 814917

How much is your home worth?

Use our short form to request a valuation of your property.

Request a Valuation

Mortgage Calculator

Amount Borrowed: £
Total Amount Repayable: £
Total Monthly Payment: £
©2026 The Guild of Property Professionals. All rights reserved. Terms and Conditions | Privacy Policy | Cookie Policy | Complaints Policy | Members Login
The Guild of Property Professionals Trading Address: 121 Park Lane, London W1K 7AG. GPEA Limited. Registered in England & Wales.  Company No: 02819824.  Registered Office Address: 2 St. Stephen's Court, St. Stephen's Road, Bournemouth, Dorset, England, BH2 6LA.  VAT Registration No: 576 8795 61
Book a Property Valuation Update Cookies Preferences