Outlanes, Stone, ST15

£750,000
SSTC
This property listing is now SSTC

4 Bedroom Cottage for sale in Stone

2 4 1
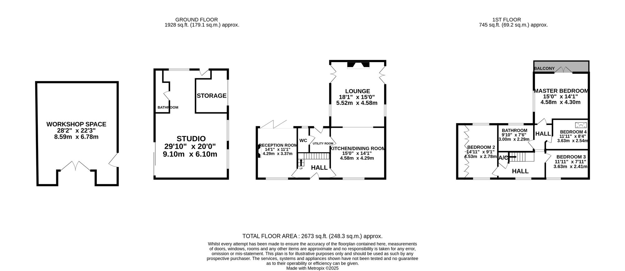
  • Stunning master bedroom with glazed French doors leading to the balcony, a private spot that’s perfect for soaking up the sweeping views.
  • At the heart of the home, the open-plan kitchen/diner flows into the lounge which combines style and warmth, complete with garden access on both sides.
  • Outside sits in a full South-facing position with stunning views beyond, a heated outdoor pool, two driveways with ample off-road parking and a separate workshop area.
  • Flexibility is key with a generously sized studio with its own shower room making it the perfect opportunity to become a fully self-contained annex, ideal for multi-generational living.
  • Tranquil position just moments from the enchanting National Trust Downs Banks, yet still a peaceful stroll or short drive into Stone's centre with shops, bars, restaurants, schools, and a theatre.

Keepers Cottage is a truly special detached cottage, perfectly positioned in a tranquil and rural setting just moments from the enchanting National Trust Downs Banks. Surrounded by beautiful countryside, rolling hills, peaceful walks, and a babbling brook, this charming home feels wonderfully tucked away, yet is still just a peaceful stroll or short drive from Stone’s vibrant market town centre, with its wide selection of restaurants, bars, shops, schools, and even a theatre. Inside you’ll find the heart of the home, an open-plan kitchen/diner with a contemporary L-shaped kitchen, designed with stylish cabinetry, plenty of room for essentials, a spacious dining area and a seamless flow into the lounge. A traditional brick-inset fireplace forms a natural focal point, and twin sets of French doors open out to the garden, creating a seamless indoor-outdoor feel. A further reception room awaits with bright bifolding doors leading out to blissful countryside views, and a glowing log burner promises the perfect place to unwind, entertain, or simply take in the scenery. A separate utility room and WC complete the ground floor. Upstairs is home to a generously sized master double bedroom with its own private South-facing balcony overlooking the uninterrupted countryside. Three further double bedrooms, one of which includes its own fitted wardrobes, and a modern bathroom featuring a freestanding roll-top bath and a separate shower ensure plenty of space for busy family living.

And just when you think you’ve found it all, the outside reveals even more. Situated in a fully South-facing setting, you’ll find a heated outdoor pool and further gardens providing panoramic views and space that is perfect for entertaining friends and family. The property features extensive off-road parking across two generously sized driveways, one of which benefits from electric gated entry, and the other a separate workshop that can be used for additional parking or valuable storage. But like any treasure worth finding, there’s more, a large, versatile studio with its own shower room, comprising a walk-in shower, pedestal wash hand basin and WC, offers exciting potential as a fully self-contained annex, ideal for multi-generational living or independent accommodation (STNPP).

This lovely home also benefits from solar panels generating an index-linked income via the Feed-in Tariff. Keepers Cottage enjoys an enviable, directly south-facing position, ensuring full sunrise and sunset views. While it feels wonderfully secluded, you’re only a leisurely stroll from the Downs Banks, the Trent and Mersey Canal, and the vibrant Stone town centre, with its shops, schools, supermarkets, eateries and more. Excellent transport links are close at hand, including the A34, A51 and Stone railway station, allowing you to enjoy the peace of rural living without sacrificing everyday convenience.This isn’t just a house. It’s a rare discovery, a forever home waiting to be claimed. And as the saying goes… Finders Keepers!

Important Information

  • This is a Freehold property.
  • This Council Tax band for this property is: D
  • EPC Rating is E

Property Ref: e3334a9e-05fd-4074-a533-6f1c7e0c8a10

Share:

Similar Properties

Westover Drive, Stone, ST15

5 Bedroom Detached House | Offers in excess of £730,000

Impressive three-storey, five-bed detached home with versatile living, landscaped garden, double garage, and internal an...

Windmill Hill, Rough Close, ST3

6 Bedroom Detached House | £725,000

Chestnut Farm is a beautifully renovated 6-bed home with open-plan living, luxury kitchen, en suites, a self-contained a...

Friars Walk, Newcastle, ST5

5 Bedroom Detached House | Offers in excess of £699,950

Executive five-bed detached home in Westlands on 0.28-acre plot. Modern kitchen, multiple receptions, annexe, large gard...

Sandy Lane, Newcastle, ST5

4 Bedroom Detached House | £770,000

The secrets out on Sandy Lane… Tucked behind a curtain of leafy green and just enough mystery to make everyone pause wit...

Chase Lane, Tittensor, ST12

4 Bedroom Detached House | Offers in excess of £775,000

Welcome to Wellswood – where all’s well that ends well. Set proudly back from the highly sought-after Chase Lane, Wellsw...

Kibblestone Road, Oulton, ST15

4 Bedroom Detached House | £775,000

Beautifully restored four-bed detached home in Oulton. Spacious living, modern kitchen, landscaped garden, double garage...

James Du Pavey Estate Agents (Stone)

Christchurch Way, Stone, Staffordshire, ST15 8BZ

01785 814917

How much is your home worth?

Use our short form to request a valuation of your property.

Request a Valuation

Mortgage Calculator

Amount Borrowed: £
Total Amount Repayable: £
Total Monthly Payment: £
©2026 The Guild of Property Professionals. All rights reserved. Terms and Conditions | Privacy Policy | Cookie Policy | Complaints Policy | Members Login
The Guild of Property Professionals Trading Address: 121 Park Lane, London W1K 7AG. GPEA Limited. Registered in England & Wales.  Company No: 02819824.  Registered Office Address: 2 St. Stephen's Court, St. Stephen's Road, Bournemouth, Dorset, England, BH2 6LA.  VAT Registration No: 576 8795 61
Book a Property Valuation Update Cookies Preferences