Oriel Road, Street

£425,000

4 Bedroom Detached Bungalow for sale in Street

3 4 1
  • Conveniently positioned close to the High Street, Clarks Village and local amenities, set within a popular area of the town.
  • Tastefully decorated and well-presented detached chalet bungalow offering flexible four-bedroom accommodation across two floors.
  • Affording three well-proportioned reception rooms, offering excellent flexibility for modern family living and entertaining.
  • Equipped with 12 owned solar panels, providing energy efficiency and long-term savings on running costs.
  • Private, enclosed south-facing garden, mainly laid to lawn with mature shrubs, large patio area and multiple outbuildings including a greenhouse, shed and log store.
  • Large double garage with electric roller door, power and light, offering excellent workshop potential, plus generous parking for multiple vehicles to the front and side.

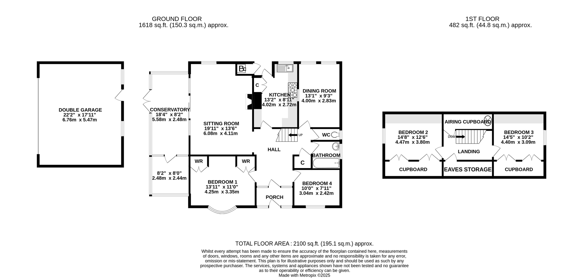
Set within a sought-after residential area, this tastefully decorated and well-presented four-bedroom detached chalet bungalow provides generous and well-arranged accommodation across two floors, complemented by a large double garage and a flexible bedroom layout. It is perfectly suited to families or buyers wishing to benefit from ground-floor bedrooms with further space above. Thoughtfully planned and filled with natural light, the property offers well-proportioned rooms and a layout that flows effortlessly from space to space. This is one not to be overlooked and early viewing is highly advised.

Accommodation
A welcoming porch, ideal for storing coats and shoes, leads into a superb central hallway that provides access to the principal rooms. The main sitting room enjoys a bright dual aspect and forms a warm and inviting central living space, featuring a characterful brick wall and a multi-fuel burner as its focal point. Opening directly from the sitting room, the conservatory offers an excellent additional reception area, filled with natural light and perfect for relaxing or informal dining. Double doors lead out to the garden, making it a delightful year-round room. Adjacent to the sitting room, the kitchen offers a practical and well-planned layout with a range of wall, base and drawer units, generous worktop space, a range-style cooker and space for an undercounter fridge. A door from here provides direct access to the rear garden.
Next to the kitchen you will find the dining room, perfectly positioned for both everyday meals and entertaining, with the added convenience of a serving hatch. The ground floor also provides two bedrooms, including a well-proportioned double room with built-in wardrobe space and a large window overlooking the front. The other would also function well as a study, hobby room, or nursery. Completing this level is the family bathroom, beautifully appointed with a vanity unit, wash basin and a bath with shower over, all finished with contemporary tiling. A separate WC adds further convenience for families and guests.

Stairs rise to the first floor, where two further generous sized double bedrooms are located. Both rooms enjoy generous storage, including built-in cupboards. A central landing links the upper rooms and includes a large airing cupboard and additional eaves storage.

Outside
The garden is a particularly attractive feature of the property, being private, enclosed and desirably south-facing, with the space mainly laid to lawn and wrapping around the home to create a versatile and enjoyable outdoor setting. Well-established mature shrubs and planted borders add colour and interest throughout the year. A large patio area provides an ideal space for outdoor furniture, entertaining and al fresco dining. The garden also includes a log store, greenhouse and additional shed, offering excellent storage and practical gardening facilities. Pedestrian gates on both sides of the property offer easy access in and out of the garden.

To the side of the property sits a large double garage, fitted with an electric roller door, power, and lighting, making it ideal as a workshop or a highly versatile multi-use space. There is ample parking for multiple vehicles at the front of the property, as well as additional parking to the side in front of the garage.

Location
Oriel Road is situated at the heart of the town within walking distance of all town centre amenities. Street is a popular mid Somerset town famous as the home of Millfield School and Clarks Shoes. The town provides an excellent range of facilities which include a busy High Street, a wide choice of shops in Clarks Village, pubs and eating places, primary and secondary schooling, Strode Sixth Form College, Strode Theatre/Film Centre, indoor and open air swimming pools and a Sainsbury's supermarket. The neighbouring town of Glastonbury is an historic centre with a picturesque Abbey at its heart and the landmark Tor. Glastonbury provides a further range of shopping facilities.

Directions
From the High Street proceed in a westerly direction, taking a left turning into Vestry Road opposite Living Homes. Proceed passing two junctions on your left and continue over the cross roads into Oriel Road. Number 4 is identified a short distance on your right hand side.

Material Information
All available property information can be provided upon request from Holland & Odam. For confirmation of mobile phone and broadband coverage, please visit checker.ofcom.org.uk

Identity Verification
To ensure full compliance with current legal requirements, all buyers are required to verify their identity and risk status in line with anti-money laundering (AML) regulations before we can formally proceed with the sale. This process includes a series of checks covering identity verification, politically exposed person (PEP) screening, and AML risk assessment for each individual named as a purchaser. In addition, for best practice, we are required to obtain proof of funds and where necessary, to carry out checks on the source of funds being used for the purchase. These checks are mandatory and must be completed regardless of whether the purchase is mortgage-funded, cash, or part of a related transaction. A disbursement of £49 per individual (or £75 per director for limited company purchases) is payable to cover all aspects of this compliance process. This fee represents the full cost of conducting the required checks and verifications. You will receive a secure payment link and full instructions directly from our compliance partner, Guild365, who carry out these checks on our behalf.

Important Information

  • This is a Freehold property.

Property Ref: 552333_SCJ456613

Share:

Similar Properties

Bartons Close, Bawdrip

4 Bedroom Detached House | Offers in excess of £425,000

Tucked away in a quiet cul-de-sac, this stylish four-bedroom detached home offers a perfect mix of comfort and modern li...

Glaston Road, Street

4 Bedroom Detached House | £425,000

This deceptively spacious cottage offers far more than meets the eye, featuring superbly sized gardens to both the front...

Orchard Road, Street

4 Bedroom Semi-Detached House | £425,000

A charming four-bedroom semi-detached home built from attractive Blue Lias stone, offering fantastic potential for impro...

Middle Road, Cossington

3 Bedroom Cottage | £430,000

Set in the sought-after Polden Hill village of Cossington, Nutbeam Cottage is an immaculate former stable, thoughtfully...

Willmotts Close, Chilton Polden

4 Bedroom Bungalow | £439,950

An excellent opportunity to purchase this beautifully presented and well maintained three bedroom bungalow with the adde...

Church Lane, Chilton Polden

4 Bedroom Detached Bungalow | £450,000

A detached four-bedroom bungalow set on a generous corner plot in the popular Somerset village of Chilton Polden. This v...

Holland & Odam (Street)

Street, Somerset, BA16 0BJ

01458 841411

How much is your home worth?

Use our short form to request a valuation of your property.

Request a Valuation

Mortgage Calculator

Amount Borrowed: £
Total Amount Repayable: £
Total Monthly Payment: £
©2025 The Guild of Property Professionals. All rights reserved. Terms and Conditions | Privacy Policy | Cookie Policy | Complaints Policy | Members Login
The Guild of Property Professionals Trading Address: 121 Park Lane, London W1K 7AG. GPEA Limited. Registered in England & Wales.  Company No: 02819824.  Registered Office Address: 2 St. Stephen's Court, St. Stephen's Road, Bournemouth, Dorset, England, BH2 6LA.  VAT Registration No: 576 8795 61
Book a Property Valuation Update Cookies Preferences