Leigh Furlong Road, Street

£265,000
SSTC
This property listing is now SSTC

2 Bedroom Bungalow for sale in Street

1 2 1
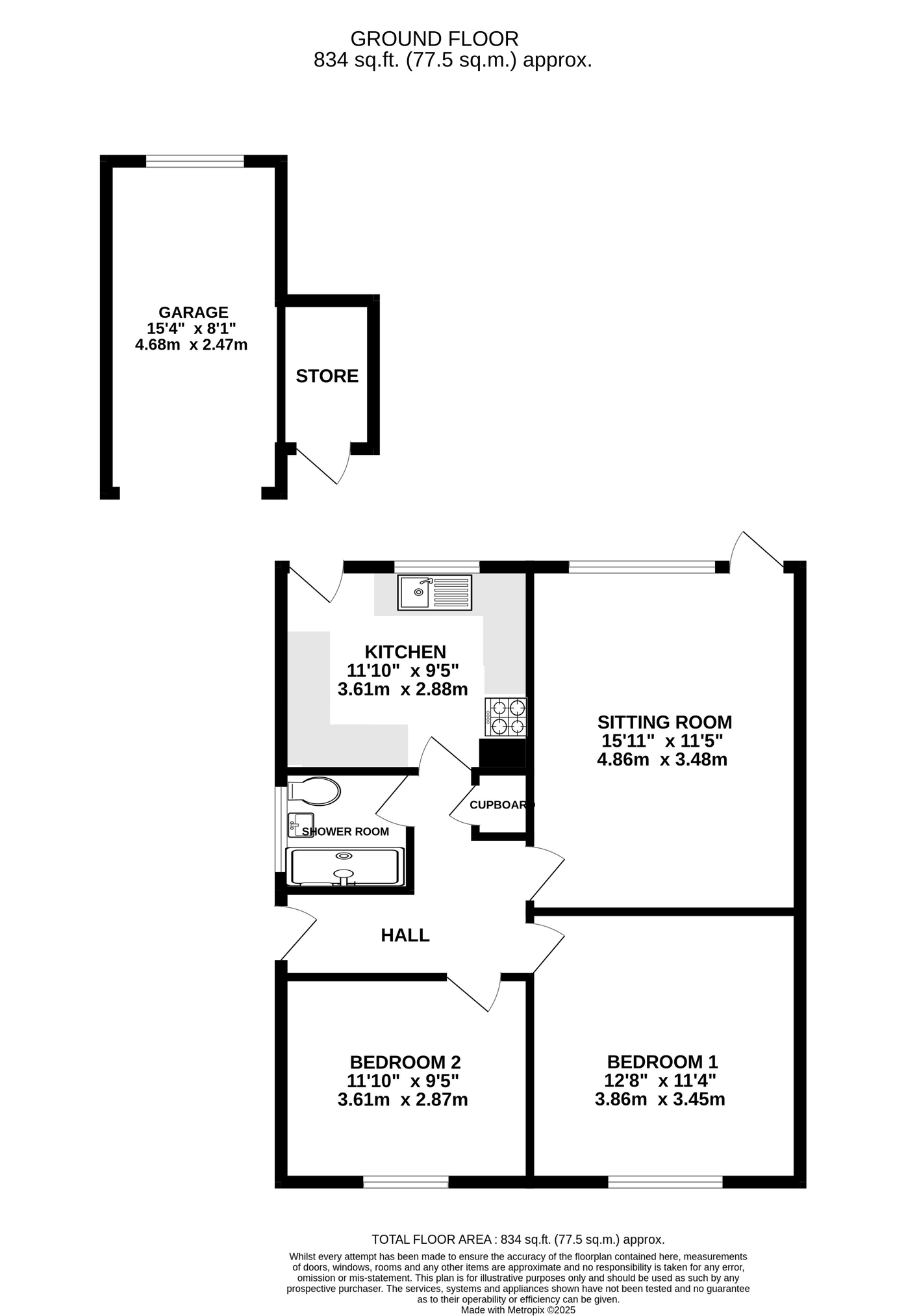
  • A generously sized sitting room, filled with natural light, featuring a stylish electric fireplace and door opening to the delightful rear garden.
  • The kitchen has been fitted with a range of wall, base and drawer units, ample worktop, cooker and space for under counter appliances.
  • Offering two well-proportioned double bedrooms, both light and airy, featuring large windows that overlook the front of the property.
  • A bright and practical wet room fitted with a modern electric shower, half-height shower screens, pedestal wash basin, and WC, designed as an accessible shower room for ease of use.
  • Desirable south-facing garden, designed for low maintenance with paving and a raised mature shrub border, offering a private and enclosed setting. Includes outside store and access to the car port...
  • Front garden laid to gravel with herbaceous borders. Tandem driveway provides parking for multiple vehicles, leading to a carport and garage fitted with an up-and-over door, power and light.

Situated within a popular residential area of similar homes, this neatly presented and well-maintained two-bedroom bungalow offers comfortable single-level living. The property features a desirable south-facing rear garden designed for low maintenance, ample driveway parking, and a garage. Ideal for those seeking a manageable home in a well-regarded location. Available with no onward chain and vacant possession.

Location
Leigh Furlong Road is situated on the south side of Street and is a well-regarded mature road, approached off Middle Leigh and close to amenities. Street is a thriving mid-Somerset town famous as the home of Millfield School and Clarks Shoes. Street offers a good range of shopping facilities including Clarks Village complex of factory shopping outlets, recreational facilities including theatre, tennis, bowls, and both indoor and open-air swimming pools. The historic town of Glastonbury is within 3 miles, the Cathedral City of Wells 9 miles and the nearest M5 interchange at Dunball, Bridgwater is within 14 miles. Bristol, Bath, Taunton and Exeter are each within 33, 33 and 26 miles distant respectively.

Directions
Follow the High Street with The Bear Inn on your left. Continue along the High Street passing the Ford Garage on the left hand side. Turn next left into Stonehill and continue around a left bend. Turn right into Leigh Furlong Road and continue along for a short distance where No 24 will be found on the right hand side and easily identified by our for sale board.

Material Information
All available property information can be provided upon request from Holland & Odam. For confirmation of mobile phone and broadband coverage, please visit checker.ofcom.org.uk

Identity Verification
To ensure full compliance with current legal requirements, all buyers are required to verify their identity and risk status in line with anti-money laundering (AML) regulations before we can formally proceed with the sale. This process includes a series of checks covering identity verification, politically exposed person (PEP) screening, and AML risk assessment for each individual named as a purchaser. In addition, for best practice, we are required to obtain proof of funds and where necessary, to carry out checks on the source of funds being used for the purchase. These checks are mandatory and must be completed regardless of whether the purchase is mortgage-funded, cash, or part of a related transaction. A disbursement of £49 per individual (or £75 per director for limited company purchases) is payable to cover all aspects of this compliance process. This fee represents the full cost of conducting the required checks and verifications. You will receive a secure payment link and full instructions directly from our compliance partner, Guild365, who carry out these checks on our behalf.

Important Information

  • This is a Freehold property.

Property Ref: 552333_SCJ862735

Share:

Similar Properties

The Grange, Chilton Polden

2 Bedroom Bungalow | £265,000

Tucked away in a peaceful cul-de-sac of similar properties, is this delightful two-bedroom semi-detached bungalow. Situa...

South Close, Walton

3 Bedroom Terraced House | £259,950

Tucked away in a peaceful setting, this spacious three-bedroom mid-terrace home has been thoughtfully modernised by our...

Merriman Road, Street

3 Bedroom Detached House | Offers in excess of £250,000

A mature three-bedroom detached home, offering excellent potential and in need of full modernisation throughout. The pro...

West End, Street

2 Bedroom Character Property | £269,950

Full of character and charm, this delightful Victorian cottage features a spectacular converted attic space that could s...

Leigh Furlong Road, Street

2 Bedroom Semi-Detached Bungalow | £269,950

This neatly presented two-bedroom semi-detached bungalow is set within a popular residential area, just a short distance...

Brooks Road, Street

3 Bedroom Detached House | £273,500

Built in 2010 and positioned adjacent to Brookside Academy school and Avalon School, School View House is a well-designe...

Holland & Odam (Street)

Street, Somerset, BA16 0BJ

01458 841411

How much is your home worth?

Use our short form to request a valuation of your property.

Request a Valuation

Mortgage Calculator

Amount Borrowed: £
Total Amount Repayable: £
Total Monthly Payment: £
©2026 The Guild of Property Professionals. All rights reserved. Terms and Conditions | Privacy Policy | Cookie Policy | Complaints Policy | Members Login
The Guild of Property Professionals Trading Address: 121 Park Lane, London W1K 7AG. GPEA Limited. Registered in England & Wales.  Company No: 02819824.  Registered Office Address: 2 St. Stephen's Court, St. Stephen's Road, Bournemouth, Dorset, England, BH2 6LA.  VAT Registration No: 576 8795 61
Book a Property Valuation Update Cookies Preferences