Knaphill, Surrey, GU21

£650,000
SSTC
This property listing is now SSTC

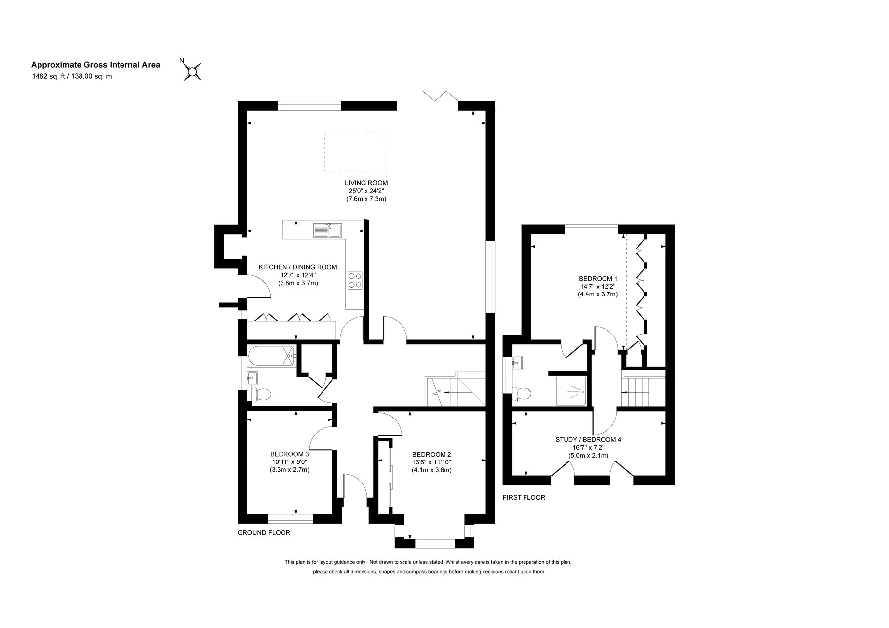
3 Bedroom Detached Bungalow for sale in Surrey

1 3 2
  • Extended Detached Chalet Style Home
  • Three/Four Bedrooms
  • Open Plan Kitchen/Diner/Living Room
  • Two Bathrooms
  • Private Cul De Sac
  • Delightful Rear Garden
  • Two Parking Spaces
  • Walking Distance To Village
  • Close To Local Schools

An attractive detached chalet-style property located in a highly desirable private cul-de-sac, a short walk from Knaphill village as well as excellent local schools. The property has seen significant improvements in recent years to include a fabulous rear extension and loft conversion providing a flexible and adaptable layout. The impressive accommodation includes a stunning open-plan arrangement to the rear which combines a stylish refitted kitchen with a generous dining and living area. To the front there are two bedrooms, both with the use of a modern family bathroom.

Upstairs features a lovely master bedroom suite with an en-suite shower room as well as a good range of built-in wardrobes. Adjoining is a single bedroom which alternatively would make a useful office space.

Outside
Bi-fold doors lead from the rear to a delightful rear garden which is predominantly lawned and enjoys a pleasant easterly aspect. Side access leads to the front which provides parking for two cars.

Location

Knaphill village has a vibrant range of shops, pubs and restaurants, including a Post Office. For more comprehensive shopping, Sainsbury's superstore is also close by. For commuting, Brookwood station provides a regular service direct to London Waterloo, Woking and Guildford. For those who enjoy the outdoors, there is Brookwood Country Park close by which is ideal for dog walking or a family stroll.
N.B Occasional charges apply for upkeep of private road.

Important Information

  • This is a Freehold property.

Property Ref: 58085_KNA190305

Share:

Similar Properties

Bisley, Woking, GU24

4 Bedroom Detached House | £650,000

Situated at the end of a quiet cul-de-sac, this deceptively spacious four-bedroom family home offers well-presented and...

Knaphill, Woking, Surrey, GU21

4 Bedroom Detached House | £650,000

** NO ONWARD CHAIN** Spacious and versatile, this 3/4 bedroom chalet style property is centrally located within Knaphill...

Knaphill, Woking, Surrey, GU21

4 Bedroom Detached House | Offers in excess of £650,000

This detached family home is tucked away at the end of a quiet cul de sac on the popular Birds Development in Knaphill a...

Knaphill, Woking, Surrey, GU21

4 Bedroom Detached House | Offers in excess of £660,000

A spacious detached family home, located in a quiet cul de sac on the Birds Development in Knaphill, walking distance fr...

West End, Woking, Surrey, GU24

3 Bedroom Detached Bungalow | £675,000

Set within the sought after area of Donkey Town in West End, this delightful three bedroom detached bungalow offers a wo...

Bisley, Woking, Surrey, GU24

4 Bedroom Detached House | £679,950

This substantial detached family home offers approximately 1,957 sq ft of well-balanced accommodation and has been cleve...

Seymours (Knaphill)

Knaphill, Surrey, GU21 2PP

01483 798969

How much is your home worth?

Use our short form to request a valuation of your property.

Request a Valuation

Mortgage Calculator

Amount Borrowed: £
Total Amount Repayable: £
Total Monthly Payment: £
©2026 The Guild of Property Professionals. All rights reserved. Terms and Conditions | Privacy Policy | Cookie Policy | Complaints Policy | Members Login
The Guild of Property Professionals Trading Address: 121 Park Lane, London W1K 7AG. GPEA Limited. Registered in England & Wales.  Company No: 02819824.  Registered Office Address: 2 St. Stephen's Court, St. Stephen's Road, Bournemouth, Dorset, England, BH2 6LA.  VAT Registration No: 576 8795 61
Book a Property Valuation Update Cookies Preferences