Woking, Surrey, GU21

Offers in excess of
£600,000
SSTC
This property listing is now SSTC

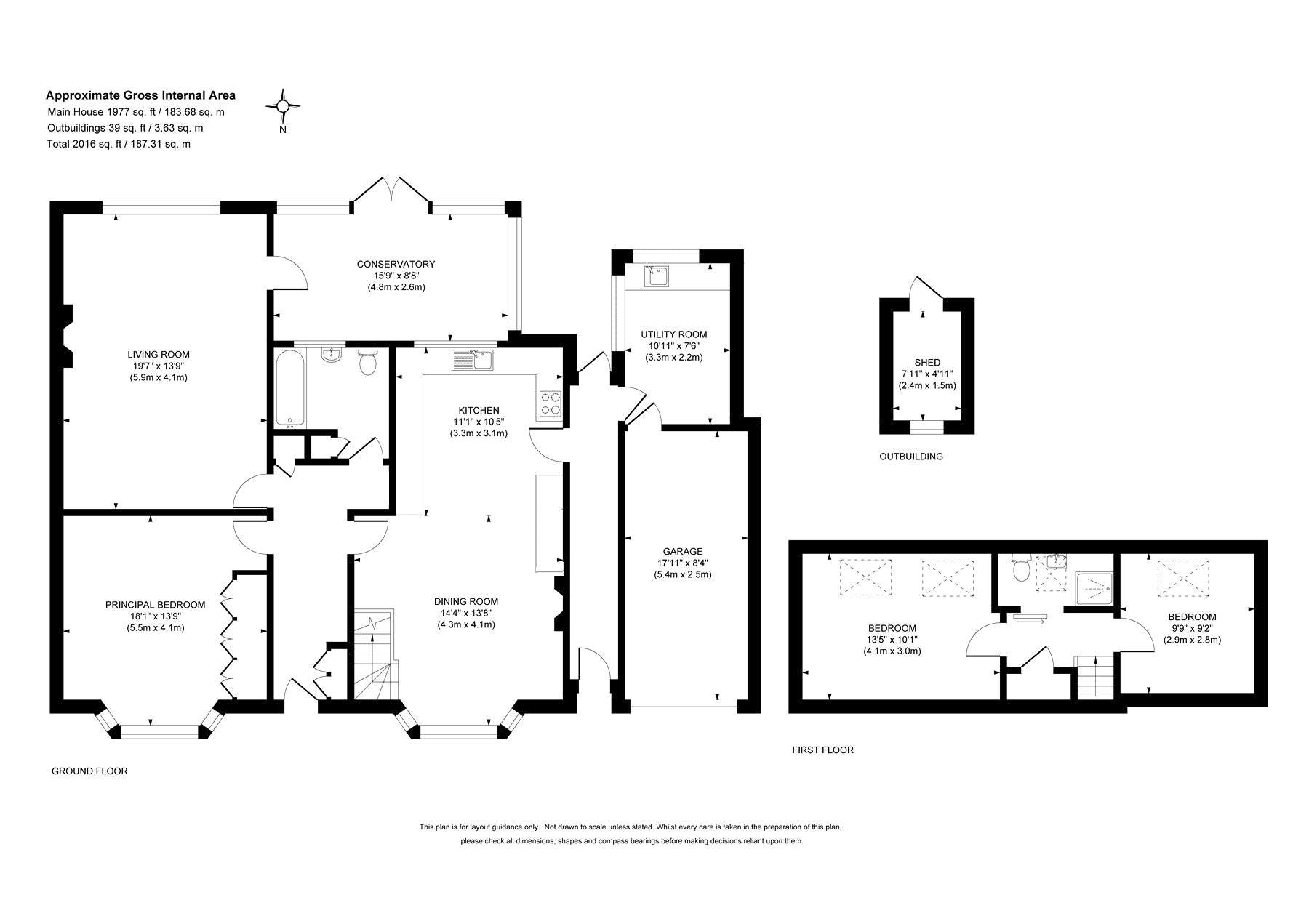
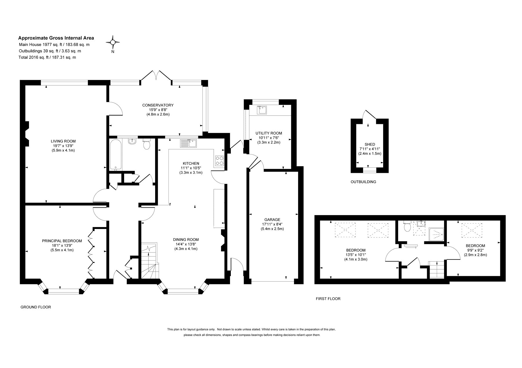
3 Bedroom Detached House for sale in Surrey

1 3 2
  • Three Bedrooms
  • Two Bathrooms
  • Garage
  • Driveway With Parking For Four Vehicles
  • South Facing Garden Approx. 100ft in Length
  • Close to Schools and Shops
  • Potential to Extend STPP
  • Open Plan Kitchen/Dining Room

Situated on the sought after Hermitage development in St Johns, this spacious detached chalet style property offers flexible family accommodation and a wonderful south facing garden stretching approximately 100ft in length.
The ground floor features a welcoming rear aspect lounge complete with a feature fireplace, perfect for relaxing evenings. The heart of the home is the impressive open plan kitchen/dining room, fitted with Shaker style units, a butler sink, integrated double oven, gas hob, and dishwasher, ideal for both family living and entertaining. A conservatory overlooks the substantial garden, providing an excellent additional reception space. Also on the ground floor is a double bedroom, a family bathroom.
Upstairs, there are two further double bedrooms, both serviced by a modern shower room.
Externally, the property benefits from ample driveway parking for up to four vehicles, and the south facing rear garden provides a private and sunny outdoor retreat with plenty of space for families and gardeners alike. Further benefits include a garage with a utility room to the rear.
This versatile home combines generous accommodation with a popular residential location, all within easy reach of local schools, amenities, and transport links.
Viewings are highly recommended.
Location
St Johns village has a bustling high street providing a good range of day to day shops as well as enjoying the delights of the Basingstoke Canal with its pretty tow paths. Woking is a short distance away which has excellent shopping facilities as well as one of the best services to Waterloo stations anywhere in the area. The village has access to several good primary schools as well as Winston Churchill secondary school.

Important Information

  • This is a Freehold property.

Property Ref: 58085_KNA250421

Share:

Similar Properties

Knaphill, Woking, Surrey, GU21

2 Bedroom Apartment | Offers in excess of £600,000

Florence Court is a gated development of luxurious character apartments, set within a converted Victorian building that...

Knaphill, Woking, Surrey, GU21

3 Bedroom Detached Bungalow | Guide Price £600,000

A rarely available detached bungalow, offered to the market with no onward chain, enjoying a superb position close to co...

Bisley, Woking, Surrey, GU24

4 Bedroom Detached House | £600,000

Offered in immaculate condition throughout, this beautifully presented link detached home combines contemporary design w...

West End, Woking, Surrey, GU24

4 Bedroom Detached House | £635,000

A well presented four bedroom detached family home, ideally located on the ever popular Kings Road in West End. The prop...

Knaphill, Woking, Surrey, GU21

4 Bedroom Detached House | £639,950

This beautifully presented detached family home is offered to the market in excellent condition and is ideally located w...

Bisley, Woking, GU24

4 Bedroom Detached House | £650,000

Situated at the end of a quiet cul-de-sac, this deceptively spacious four-bedroom family home offers well-presented and...

Seymours (Knaphill)

Knaphill, Surrey, GU21 2PP

01483 798969

How much is your home worth?

Use our short form to request a valuation of your property.

Request a Valuation

Mortgage Calculator

Amount Borrowed: £
Total Amount Repayable: £
Total Monthly Payment: £
©2026 The Guild of Property Professionals. All rights reserved. Terms and Conditions | Privacy Policy | Cookie Policy | Complaints Policy | Members Login
The Guild of Property Professionals Trading Address: 121 Park Lane, London W1K 7AG. GPEA Limited. Registered in England & Wales.  Company No: 02819824.  Registered Office Address: 2 St. Stephen's Court, St. Stephen's Road, Bournemouth, Dorset, England, BH2 6LA.  VAT Registration No: 576 8795 61
Book a Property Valuation Update Cookies Preferences