Point Road, Avening

Offers Over
£180,000
SSTC
This property listing is now SSTC

3 Bedroom Cottage for sale in Tetbury

1 3 1
  • For Sale by Auction Thursday December 6th 2025
  • Grade II Listed Semi Detached Period Cottage
  • In Need of complete modernisation
  • 3 bedrooms, 1 bathroom
  • Kitchen/breakfast room
  • Living room
  • 120 rear garden
  • Off road parking space
  • Village location

Description


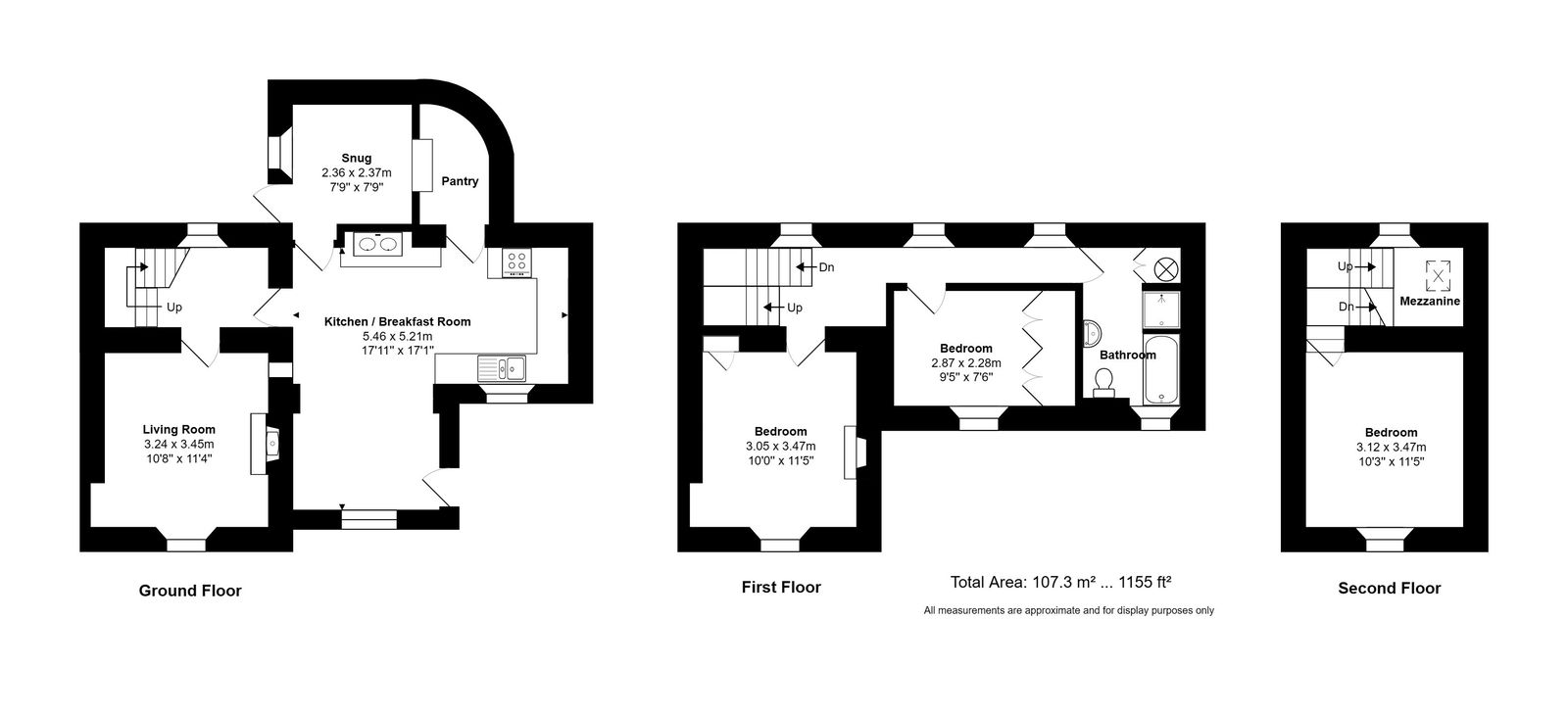
This interesting semi-detached character cottage presents the excellent opportunity to renovate and refurbished a period home within the beautiful Cotswold village of Avening. The Old Post Office is most deceptive in size forming part of an impressive Grade II listed Georgian house with a substantial extension to the side. Behind the cottage, there is an equally as deceptive south-facing rear garden which is approximately 120ft in length ascending up the valley and is currently overgrown. The character accommodation extends to some 1,155 sq.ft. spanning over three floors. The accommodation includes two reception spaces, a kitchen/dining room, three bedrooms and a bathroom. 

Situation


Avening is a delightful Cotswold village nestling across the Nailsworth Valley and has a public house, a village hall, an excellent primary school and parish Church. The village is close to Minchinhampton Common and Gatcombe Park, the home of The Princess Royal and Gatcombe Horse Trials. Avening is conveniently located between Tetbury and Nailsworth, both of which have an excellent range of facilities including shops, public houses and primary schools with a secondary school at Tetbury. There is an excellent choice of both public and private schools within the area including Beaudesert Park near Minchinhampton. Located on the edge of the village is Minchinhampton golf course. Also within the local area are a number of places of interest including the world famous Westonbirt Arboretum with some 18 thousand trees and shrubs in approximately 600 acres of landscaped grounds, and over 600 acres of National Trust common land at Minchinhampton and Rodborough.
 
Auction
 
The property is to be sold via Online Auction on the 4th of December 2025.  We are acting as joint auctioneers please contact us for further details or visit strakers.co.uk for further information (Lot 6). 

There will be numerous pre-arranged open house viewing slots lasting for 30 minutes and you can book in by contacting the Auctioneers.


If you have any concerns with viewings, please contact the relevant Strakers office and we would be happy to discuss them with you and hopefully put you at ease.


Online Auction - In order to bid at Strakers Online Auctions, you will first need to create an account by providing your contact details. You will be asked to read and accept our Online Auction Terms and Conditions. In order to bid online, you will be required to register a credit or debit card for the bidder security deposit. Strakers are required by law to carry out an online anti-money laundering check on all persons wishing to bid. In general terms, you are strongly advised to view the property and take professional advice as to its condition and suitability.


When the auction opens at 8am the day of the auction, you will be able to place bids in line with the pre-determined bid increment levels, using the bid increase (+) and decrease (-) buttons provided. It is recommended you check your web browser will allow you to bid in good time as some browsers' security can block the ability to bid. We recommend using Google Chrome when possible.


We offer property for sale by immediate, unconditional contract. This means that the fall of the electronic gavel constitutes an exchange of contracts between the buyer and seller. Both parties are legally bound to complete the transaction usually within 20 working days following the close of the auction but this will be confirmed within the legal documentation.


Legal Pack - You can download or pre-register for the legal packs via our website by using the ‘Menu’ at the top of the page and selecting ‘Auctions’, then ‘Current Auction’. This will produce a lot list. Find the lot of interest and click ‘View Legal Documents’. You will need to sign-up by entering your email address and creating a password the first time you use this, your log-in will stay valid for all of our future auctions. The legal pack may not be available straight away, but as long as you have registered to receive it you will be notified as soon as it is available.


Reserve & Guide Price - Generally speaking Guide Prices are provided as an indication of each seller's minimum expectation. They are not necessarily figures which a property will sell for and may change at any time prior to the auction. Virtually every property will be offered subject to a Reserve (a figure below which the Auctioneer cannot sell the property during the auction) which we expect will be set within the Guide Range or no more than 10% above a single figure Guide.


+ Fees - If you are the successful bidder, you will then be asked to sign the auction contract and pay a 10% deposit and a buyers fee of £600 including VAT on any Lots purchased at or below £99,999 or £1,200 including VAT on any lots purchased at £100,000 or above.


Important Information

  • This is a Freehold property.
  • This Council Tax band for this property is: D

Property Ref: 2775_597378

Share:

Similar Properties

Brent Street, Brent Knoll

Not Specified | Guide Price £150,000

For sale by Informal Tender - offers by 21st January. An attractive former Methodist Chapel, situated in the heart of hi...

Codrington, South Gloucestershire

Not Specified | Guide Price £50,000

For Sale by Informal Tender (Close of bids 28th January 2026).  A former Baptist Chapel situated in a rural location on...

High Street, Sherston

Land | £15,000pa

Situated in the Old School builiding in Sherston and currently used as a hairdressers, this large office space is approx...

Sherwood Road, Tetbury

2 Bedroom Terraced House | £260,000

A fantastic starter home! Located in a popular area on the edge of Tetbury just a 5 minute level walk from the town cent...

Barley Close, Malmesbury

3 Bedroom Terraced House | £292,500

Positioned close to the High Street with views over the River Avon water meadows, a recently refurbished modern terraced...

New Church Street, Tetbury

2 Bedroom Terraced House | £295,000

This cosy character cottage requires full renovation and modernisation with fantastic scope. NO CHAIN.

James Pyle & Co (Sherston)

Swan Barton, Sherston, Wiltshire, SN16 0LJ

01666 840886

How much is your home worth?

Use our short form to request a valuation of your property.

Request a Valuation

Mortgage Calculator

Amount Borrowed: £
Total Amount Repayable: £
Total Monthly Payment: £
©2025 The Guild of Property Professionals. All rights reserved. Terms and Conditions | Privacy Policy | Cookie Policy | Complaints Policy | Members Login
The Guild of Property Professionals Trading Address: 121 Park Lane, London W1K 7AG. GPEA Limited. Registered in England & Wales.  Company No: 02819824.  Registered Office Address: 2 St. Stephen's Court, St. Stephen's Road, Bournemouth, Dorset, England, BH2 6LA.  VAT Registration No: 576 8795 61
Book a Property Valuation Update Cookies Preferences