Hollow Trees Close, Leigh

Guide Price
£900,000

4 Bedroom Detached House for sale in Tonbridge

2 4 3
  • Impressive kitchen/breakfast room with bi-fold doors, island, Quartz worktops, Velux windows and high-end integrated appliances
  • Four well-proportioned bedrooms, including two with en-suite shower rooms, plus a stylish family bathroom
  • Elegant reception spaces with bay-fronted sitting room and seamless flow through to the dining area and garden
  • Practical family layout featuring cloakroom and boot room/utility room.
  • Corner plot setting with private road approach, driveway and garage.
  • EPC C / Council Tax Band F £3414.76 PA

Guide Price - £900,000 - £925,000 Situated on a generous corner plot within a prestigious modern private development, this extended four-bedroom detached family home is immaculately presented throughout, offering spacious and well-balanced accommodation perfectly suited to modern family living. Externally, the corner plot provides an enhanced sense of space and privacy, complemented by a single garage and driveway, all set within neatly maintained surroundings that reflect the quality and appeal of the development. Located in the picturesque village of Leigh, the property enjoys a truly special lifestyle supported by a strong sense of community. The village benefits from a highly regarded primary school, historic church, local amenities, and a train station, making it one of the most desirable places to live in the area.

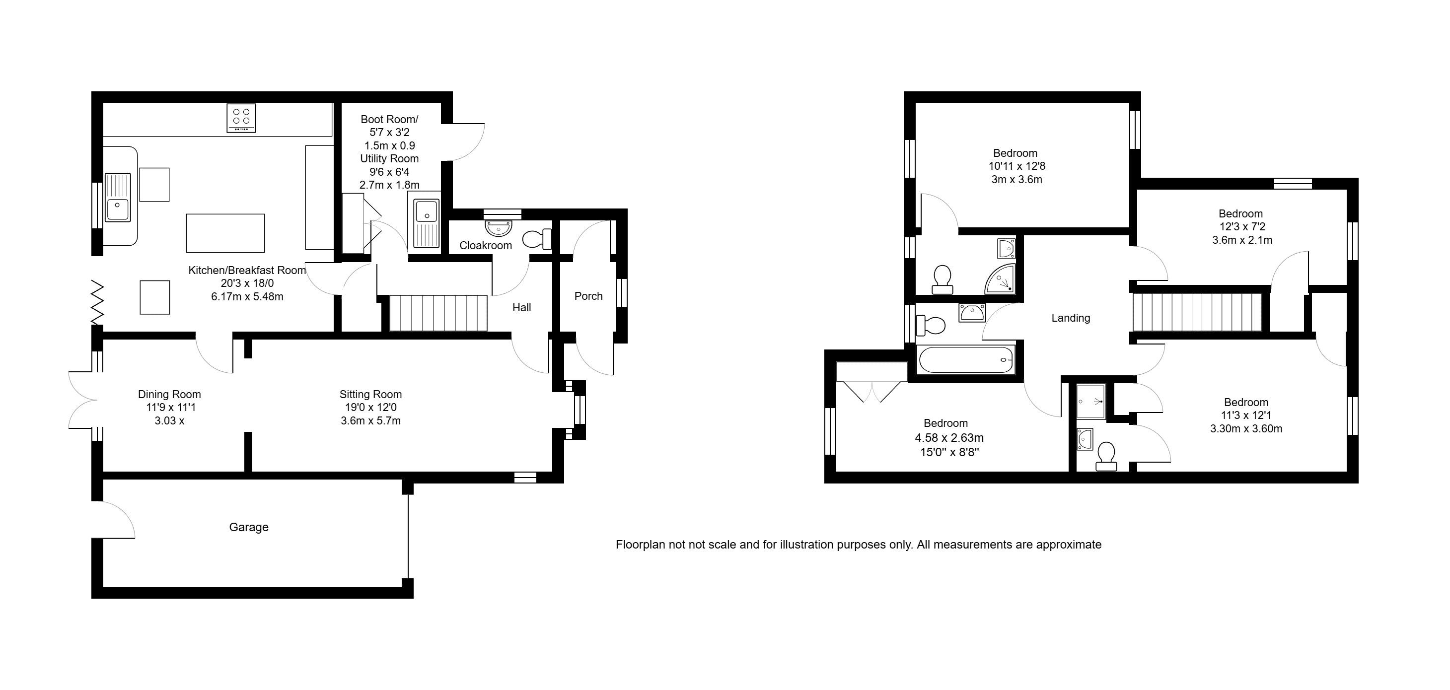
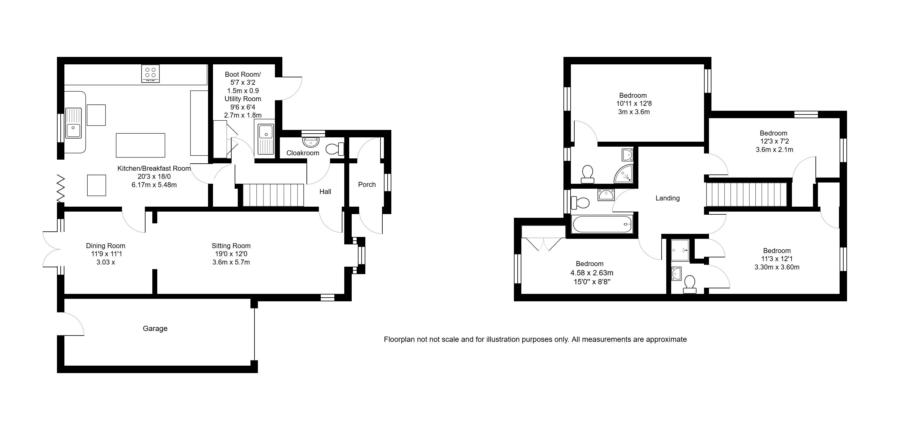
Entrance

Access is via a double glazed entrance door with frosted glass insert, opening into a welcoming entrance hall with solid wood flooring, radiator, built-in coats cupboard, and stairs rising to the first floor. Doors lead to the downstairs cloakroom, boot room/ utility room, sitting room and kitchen/breakfast room.

Cloakroom

The cloakroom features a double glazed frosted window to the side, tiled floor, part ceramic wall tiling, low-level WC, wash hand basin and radiator.

Sitting Room

A bright and elegant space, enjoying a double glazed square bay window to the front and an additional double glazed window to the side. There are two radiators and twin doors opening into the dining room, creating a lovely flow for entertaining.

Dining Room

The dining room benefits from double glazed French doors with matching side panels opening onto the rear garden, a radiator, and a door leading through to the kitchen/breakfast room.

Kitchen/Breakfast Room

The kitchen/breakfast room is a particular feature of the property and has been finished to a high standard. It includes double glazed bi-fold doors opening onto the rear garden, a double glazed window to the rear, and two Velux roof windows providing excellent natural light. The kitchen is fitted with a one and a half bowl stainless steel sink set into Quartz worktops, a comprehensive range of matching base and wall units, built-in double oven, plate-warming drawer and microwave. Gas hob with glass splashback and extractor hood, and an integrated dishwasher. There is space for a freestanding American-style fridge/freezer, inset spotlights, halo lighting, and a tiled floor with underfloor heating. A central island with matching worktop incorporates cupboards and drawers, along with a breakfast bar seating area and designer lighting above.

Boot Room/Utility Room

The boot room/utility room provides additional practicality with a built-in storage cupboard, stainless steel sink with cupboard beneath, space and plumbing for a washing machine, part-tiled floor, and a wall-mounted gas boiler serving the domestic hot water and central heating systems. A double glazed door provides access to the front of the property.

First Floor Landing

Access to all bedrooms, the family bathroom, an airing cupboard with shelving, and access to the loft space.

Bedroom 1

Double glazed window to the front, radiator, two built-in wardrobes, and door to en-suite shower room

En-suite

Tiled floor, part tiled walls, shower cubicle with power shower, low-level WC, wash hand basin, heated chrome towel rail, inset spotlights, extractor fan, fitted shaver socket, and a double glazed window to the side.

Bedroom 2

Double glazed windows to both the front and rear, radiator, door to En-suite

En-suite

Tiled floor, part tiled walls, shower cubicle, pedestal wash hand basin, low-level WC, fitted shaver socket, wall-mounted mirrored cabinet, heated chrome towel rail, extractor fan and inset spotlights.

Bedroom 3

Double glazed window to the rear, built-in wardrobe and radiator.

Bedroom 4

Double glazed windows to both the front and side, a built-in wardrobe and radiator.

Family Bathroom

Paneled bath with mixer taps and shower attachment, pedestal wash hand basin, low-level WC, tiled floor, ceramic wall tiling, heated chrome towel rail, built-in shaver socket, extractor fan, inset spotlights and a double glazed frosted window to the rear.

Outside

Front Garden

To the front, the property is approached via a private road, with a brick-paved driveway and a pathway leading to the front entrance door. The house occupies a corner plot, with a lawned garden area, established shrubs and plants, and side pedestrian access.

Rear Garden

Mainly to lawn with well-stocked borders, outside lighting and power points. An Indian stone curved patio sits adjacent to the property, making it ideal for outdoor entertaining. There is also direct access to the garage from the garden and side pedestrian access.

Garage

The garage features an up-and-over door, power and lighting, a useful mezzanine storage level.

Tenure

Freehold

Important Information

  • This is a Freehold property.

Property Ref: WAG03223

Share:

Similar Properties

Fairmans Lane, Brenchley

4 Bedroom Detached House | Asking Price £895,000

Located on the edge of the popular village of Brenchley is this four-bedroom detached family home, featuring a large lan...

Higham Lane, Tonbridge

4 Bedroom Detached House | Asking Price £725,000

NO ONWARD CHAIN. Waghorn & Company are proud to offer to the market this deceptively spacious, 4-bedroom detached family...

Woodfield Road, Tonbridge

3 Bedroom Semi-Detached House | Asking Price £695,000

Waghorn & Company are proud to offer to the market this 3 bedroom, semi-detached family home located in the highly sough...

The Haydens

5 Bedroom Not Specified | Asking Price £1,295,000

Waghorn & Company are delighted to offer for sale this 5 bedroom detached family home located in one of Tonbridge's most...

Upper Green Road, Tonbridge

7 Bedroom Detached House | Asking Price £1,400,000

Set within the heart of the sought-after village of Shipbourne and located within both a Conservation Area and an Area o...

Hale Street, East Peckham, Tonbridge

6 Bedroom Detached House | Asking Price £1,500,000

An impressive six bedroom Grade II listed double fronted former farmhouse with 4852 square feet of beautifully presented...

Waghorn & Company (Tonbridge)

Tonbridge, Kent, TN9 1DH

01732 808542

How much is your home worth?

Use our short form to request a valuation of your property.

Request a Valuation

Mortgage Calculator

Amount Borrowed: £
Total Amount Repayable: £
Total Monthly Payment: £
©2026 The Guild of Property Professionals. All rights reserved. Terms and Conditions | Privacy Policy | Cookie Policy | Complaints Policy | Members Login
The Guild of Property Professionals Trading Address: 121 Park Lane, London W1K 7AG. GPEA Limited. Registered in England & Wales.  Company No: 02819824.  Registered Office Address: 2 St. Stephen's Court, St. Stephen's Road, Bournemouth, Dorset, England, BH2 6LA.  VAT Registration No: 576 8795 61
Book a Property Valuation Update Cookies Preferences