Upper Green Road, Tonbridge

Asking Price
£1,400,000

7 Bedroom Detached House for sale in Tonbridge

3 7 5
  • Prime Village Location being sold with no onward chain
  • Spacious Family Home – Approx. 2,831 sq ft
  • Charming Detached Oast House
  • Glorious Mature Gardens
  • Excellent Schools & Transport Links
  • EPC Rating F / Council Tax Band • Council Tax: Main House – Band G £3895.63 P/A, Oast House – Band A £1558.25 P/A

An exceptional village home in an Area of Outstanding Natural Beauty, with charming gardens, a detached Oast house and direct access to The Green.

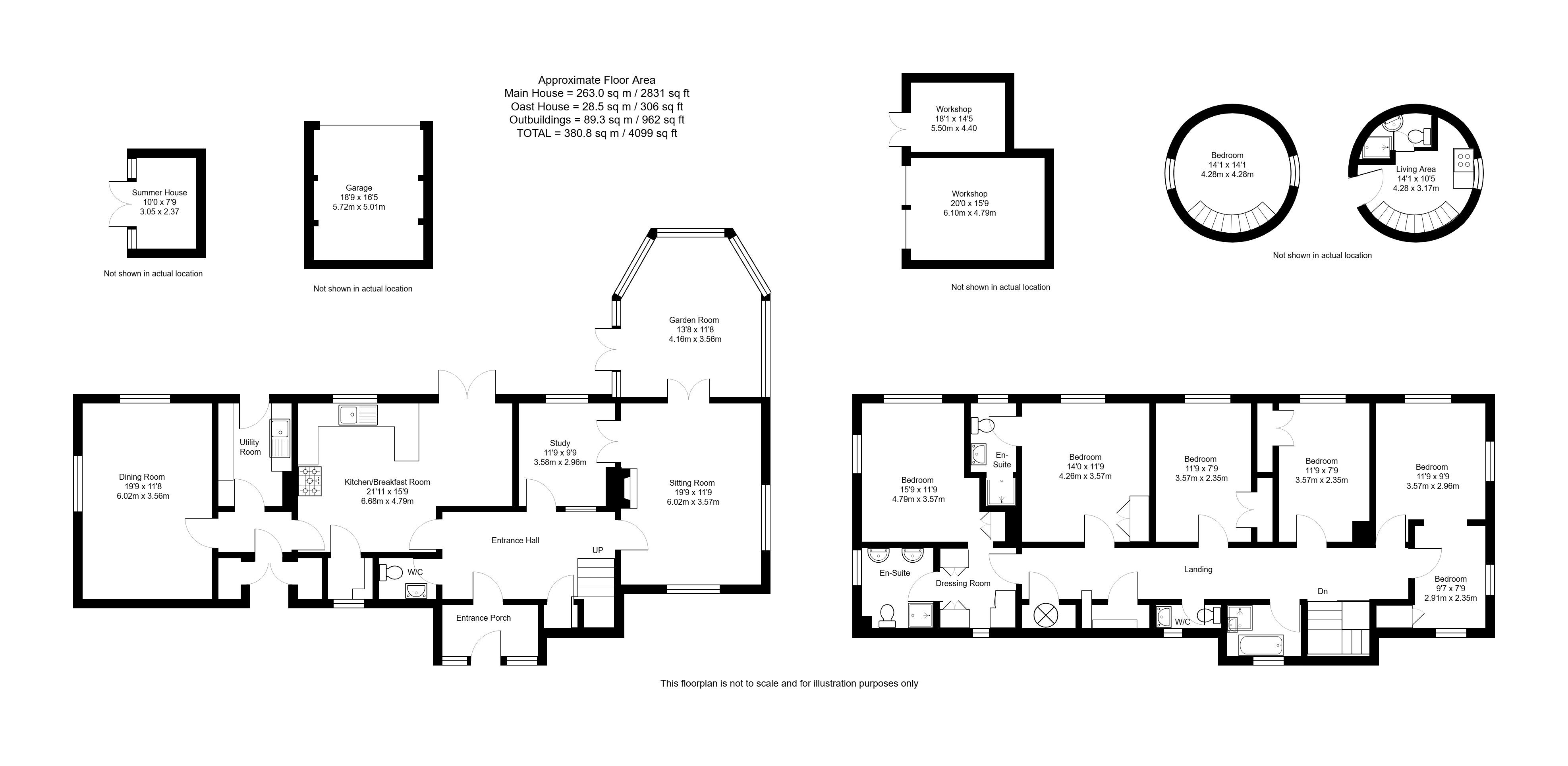
Accommodation

The main house has been sympathetically updated and maintained by the current owners and features attractive rendered and tile-hung elevations beneath a pitched slate roof. The interiors are bright, airy and flexible, with large double-glazed casement windows and French doors offering far-reaching views and a seamless connection with the gardens.
The ground floor accommodation includes a generous dual-aspect sitting room with an open fireplace and French doors leading to a wonderful garden room – a bright and tranquil space ideal for year-round enjoyment. Adjacent is a well-proportioned study, and a separate dining/family room offering excellent versatility. The stylish kitchen/breakfast room has been fitted in a contemporary farmhouse style, with wall and base units, black work surfaces, a peninsular island with breakfast bar, an LPG gas two-oven Aga, and a range of integrated appliances including an oven and induction hob. A walk-in pantry, utility room with external access, and cloakroom complete the ground floor. Upstairs, the principal bedroom suite includes a dual-aspect outlook, fitted dressing area, and en suite shower room. There are five further bedrooms, one with an en suite, and all with pleasant views over the gardens. Two of the bedrooms are adjoining and could be separated if required. A family bathroom, separate WC, linen cupboard, and luggage room complete the first-floor accommodation.

Detached Oast House

A charming single roundel Oast house sits within the garden and provides ancillary accommodation – perfect for guest use, multi-generational living, a home office or continued use as a successful holiday let. The interior features an open-plan living/kitchen area, a shower room on the ground floor, and a spiral staircase leading to a mezzanine bedroom.

Gardens and Grounds

The gardens are a notable feature of the property. Designed to provide year-round interest, they wrap around the house and include well-tended lawns, colorful herbaceous borders, mature shrubs, cob nut trees, and a productive kitchen garden. A south-facing terrace provides the perfect setting for al fresco dining, and a gate gives direct access onto The Green. The property is approached via a gated driveway, offering ample parking and access to a detached double garage. Additional outbuildings include two substantial timber workshops and a summer house, ideal for hobbies or storage.

Location

Shipbourne is a picturesque and desirable village nestled between Tonbridge and Sevenoaks, with approximately 16 acres of surrounding common land and beautiful rolling Kent countryside. The village features a well-regarded primary school, the highly popular Chaser Inn, a tennis and cricket club, and St Giles Church, which hosts an award-winning weekly farmers’ market.
Both Tonbridge (approx. 4.1 miles) and Sevenoaks (approx. 6.6 miles) offer comprehensive shopping, dining, and leisure facilities, as well as mainline rail services to central London. Hildenborough station is also nearby (approx. 4.3 miles).

Tenure and other information

• Tenure: Freehold
• Services: LPG gas central heating, mains electricity, water and drainage
• Council Tax: Main House – Band G £3895.63 P/A,
Council Tax Oast House – Band A £1558.25 P/A
• Square Footage: Approx. 2,831 sq ft
• Acreage: Approx. 0.42 acres
• Local Authority: Tonbridge and Malling Borough Council

Important Information

  • This is a Freehold property.

Property Ref: WAG03027

Share:

Similar Properties

The Haydens

5 Bedroom Not Specified | Asking Price £1,295,000

Waghorn & Company are delighted to offer for sale this 5 bedroom detached family home located in one of Tonbridge's most...

Hollow Trees Close, Leigh

4 Bedroom Detached House | Guide Price £875,000

Situated on a generous corner plot within a prestigious modern private development, this extended four-bedroom detached...

Hadlow Road, Tonbridge

4 Bedroom Detached Bungalow | Asking Price £800,000

Waghorn & Company are proud to offer to the market this beautifully presented detached bungalow, occupying a wonderful c...

The Haydens, Tonbridge

6 Bedroom Detached House | Asking Price £1,450,000

A handsome and substantial six bedroom detached family home, occupying a prime position within The Haydens, one of Tonbr...

Hale Street, East Peckham, Tonbridge

6 Bedroom Detached House | Asking Price £1,500,000

An impressive six bedroom Grade II listed double fronted former farmhouse with 4852 square feet of beautifully presented...

Waghorn & Company (Tonbridge)

Tonbridge, Kent, TN9 1DH

01732 808542

How much is your home worth?

Use our short form to request a valuation of your property.

Request a Valuation

Mortgage Calculator

Amount Borrowed: £
Total Amount Repayable: £
Total Monthly Payment: £
©2026 The Guild of Property Professionals. All rights reserved. Terms and Conditions | Privacy Policy | Cookie Policy | Complaints Policy | Members Login
The Guild of Property Professionals Trading Address: 121 Park Lane, London W1K 7AG. GPEA Limited. Registered in England & Wales.  Company No: 02819824.  Registered Office Address: 2 St. Stephen's Court, St. Stephen's Road, Bournemouth, Dorset, England, BH2 6LA.  VAT Registration No: 576 8795 61
Book a Property Valuation Update Cookies Preferences