The Haydens

Asking Price
£1,295,000
SSTC
This property listing is now SSTC

5 Bedroom Not Specified for sale in Tonbridge

2 5 2
  • Detached Five Bedroom Family Home
  • Front and Rear Gardens
  • Versatile Living Accomodation
  • Off Road Parking for Multiple Cars
  • Double Detached Garage
  • EPC Rating C / Council Tax Band G £3,926.95 PA

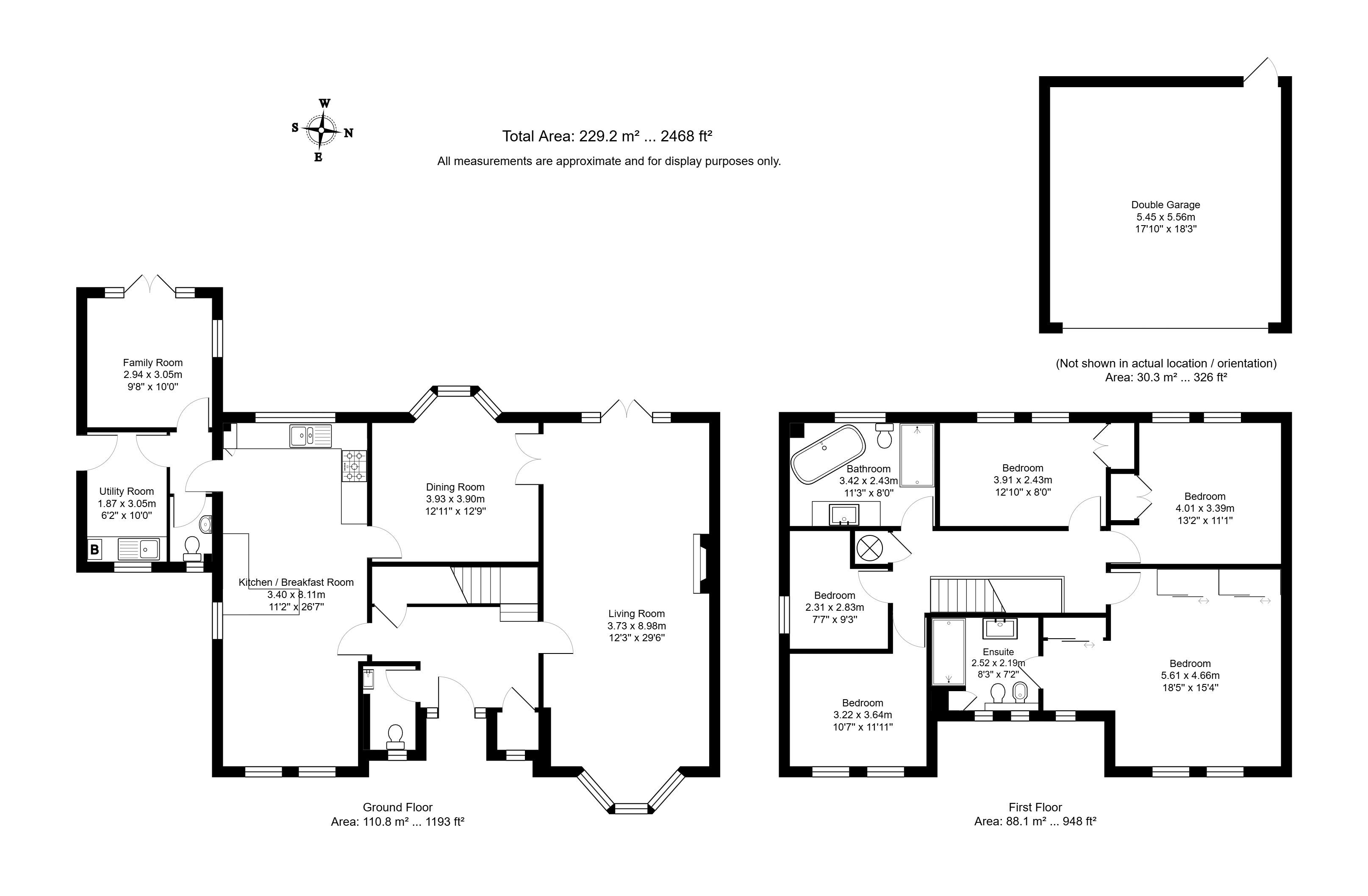
Waghorn & Company are delighted to offer for sale this 5 bedroom detached family home located in one of Tonbridge's most prestigious developments. Externally there are large front and rear gardens and detached double garage. An early viewing is highly recommended to truly appreciate not only the size and versatility of accommodation on offer but also the scope for further improvement and the convenient location in which the property enjoys.

Entrance

Brick paved pathway, access is via a canopied entrance porch to part glazed entrance door with matching side windows, leading to entrance hall.

Entrance Hall
8' 8'' x 12' 10'' (2.64m x 3.91m)
Doors to cloakroom, living room, kitchen diner and coats cupboard, stairs to first floor landing and under stairs storage cupboard.

Living Room
26' 7'' x 12' 9'' (8.10m x 3.88m) (excluding bay window)
Double glazed bay window to front, double glazed French patio doors with matching side windows to rear, feature fireplace, double doors through to dining room, two wall light points and three vertical radiators.

Cloakroom
2' 11'' x 6' 5'' (0.89m x 1.95m)
Double glazed frosted window to front, low level W/C, hand wash basin set within vanity unit, wall mounted mirror and heated chrome towel rail.

Dining Room
10' 8'' x 12' 10'' (3.25m x 3.91m) (excluding bay window)
Double glazed bay window to rear, double doors leading to living room and vertical radiator.

Kitchen/Diner
26' 4'' x 10' 6'' (8.02m x 3.20m)
Two double glazed windows to front with built in shutters, double glazed window to rear and double glazed window to side, one an a half bowl sink and drainer with cupboards under and a further range of matching base and wall units, integrated dishwasher, space for freestanding American fridge/freezer, gas five ring hob with extractor hood over, electric double oven, door to dining room and inner hall and two radiators.

Inner Hall

Doors to utility, cloakroom and sun room.

Cloakroom
3' 3'' x 4' 4'' (0.99m x 1.32m)
Double glazed frosted window to front, low level W/C, floating hand wash basin with splash back tiling and radiator.

Utility room
6' 3'' x 9' 11'' (1.90m x 3.02m)
Double glazed window to front, part glazed door to rear garden, stainless steel sink and drainer with cupboard under and a further matching wall unit, space and plumbing for washing machine and space for self condensing tumble drier, wall mounted boiler, small loft access and ceramic wall tiling and radiator.

Sun Room
9' 8'' x 10' 0'' (2.94m x 3.05m)
Double glazed window to side, double glazed French patio doors with matching side windows leading to rear garden and radiator.

First Floor Landing

Doors to bedrooms and bathroom and airing cupboard.

Bedroom 5
7' 7'' x 9' 3'' (2.31m x 2.82m)
Double glazed window to side and radiator.

Bedroom 4
9' 0'' x 10' 6'' (2.74m x 3.20m)
Two double glazed windows to front and radiator.

Family Bathroom
7' 11'' x 11' 2'' (2.41m x 3.40m)
Double glazed frosted window to rear, freestanding roll top bath with mixer taps and additional hand shower piece, hand wash basin set within vanity unit with wall mounted mirrors and lights over, Double shower cubicle with rainfall shower over and additional hand shower piece, tiled flooring and two heated chrome towel rails.

Bedroom 3
12' 10'' x 7' 11'' (3.91m x 2.41m)
Two double glazed windows to rear, built in wardrobe and radiator

Bedroom 2
10' 11'' x 11' 1'' (3.32m x 3.38m)
Two double glazed windows to rear, built in wardrobe and radiator

Bedroom 1
13' 2'' x 15' 4'' (4.01m x 4.67m)
Three double glazed windows to front, two built in wardrobes, door to en suite.

En-suite
7' 4'' x 8' 5'' (2.23m x 2.56m)
Two double glazed frosted windows to front, hand wash basin set within vanity unit, low level W/C with concealed, bidet, double shower cubicle with rainfall shower over and additional hand shower piece, concealed storage cupboard, wall mounted mirror with light over, inset spotlights , extractor fan and two heated chrome towel rails.

Rear Garden

The rear garden is predominantly laid to lawn and beautifully landscaped, featuring a rich variety of mature shrubs, plants, and trees that create a lush and inviting setting. Offering a high degree of privacy, this delightful outdoor space provides the perfect backdrop for relaxing, dining, and entertaining family and friends.

Tenure

Freehold
Haydens Management Limited £350.00P.A tending to the communal areas.
Management pack charges £300.00 one off payment for buyers.

Important Information

  • This is a Freehold property.

Property Ref: WAG01735

Share:

Similar Properties

Hollow Trees Close, Leigh

4 Bedroom Detached House | Guide Price £875,000

Situated on a generous corner plot within a prestigious modern private development, this extended four-bedroom detached...

Hadlow Road, Tonbridge

4 Bedroom Detached Bungalow | Asking Price £800,000

Waghorn & Company are proud to offer to the market this beautifully presented detached bungalow, occupying a wonderful c...

Higham Lane, Tonbridge

4 Bedroom Detached House | Asking Price £725,000

NO ONWARD CHAIN. Waghorn & Company are proud to offer to the market this deceptively spacious, 4-bedroom detached family...

Upper Green Road, Tonbridge

7 Bedroom Detached House | Asking Price £1,400,000

Set within the heart of the sought-after village of Shipbourne and located within both a Conservation Area and an Area o...

The Haydens, Tonbridge

6 Bedroom Detached House | Asking Price £1,450,000

A handsome and substantial six bedroom detached family home, occupying a prime position within The Haydens, one of Tonbr...

Hale Street, East Peckham, Tonbridge

6 Bedroom Detached House | Asking Price £1,500,000

An impressive six bedroom Grade II listed double fronted former farmhouse with 4852 square feet of beautifully presented...

Waghorn & Company (Tonbridge)

Tonbridge, Kent, TN9 1DH

01732 808542

How much is your home worth?

Use our short form to request a valuation of your property.

Request a Valuation

Mortgage Calculator

Amount Borrowed: £
Total Amount Repayable: £
Total Monthly Payment: £
©2026 The Guild of Property Professionals. All rights reserved. Terms and Conditions | Privacy Policy | Cookie Policy | Complaints Policy | Members Login
The Guild of Property Professionals Trading Address: 121 Park Lane, London W1K 7AG. GPEA Limited. Registered in England & Wales.  Company No: 02819824.  Registered Office Address: 2 St. Stephen's Court, St. Stephen's Road, Bournemouth, Dorset, England, BH2 6LA.  VAT Registration No: 576 8795 61
Book a Property Valuation Update Cookies Preferences