Lavender Hill, Tonbridge

Asking Price
£375,000

2 Bedroom House for sale in Tonbridge

2 2 1
  • Beautifully presented Victorian home in a sought-after location
  • Short walk to Tonbridge mainline station and vibrant High Street
  • Modern fitted kitchen and stylish bathroom
  • Private rear garden and useful cellar space
  • Fantastic community with popular local pub The Drum nearby
  • EPC D / Council Tax Band C £2094.37 PA

Lavender Hill is a beautifully presented Victorian home, ideally located just a short walk from Tonbridge mainline station, the vibrant High Street, and highly regarded local schools. The property offers a stylish bathroom, a modern fitted kitchen, a private rear garden, and the added benefit of a cellar. Full of character features throughout, this stunning home is situated on a much sought after tree lined road with a fantastic community atmosphere, as well as the popular local public house, The Drum. Viewing is essential to fully appreciate not only this wonderful home, but also its exceptional location.

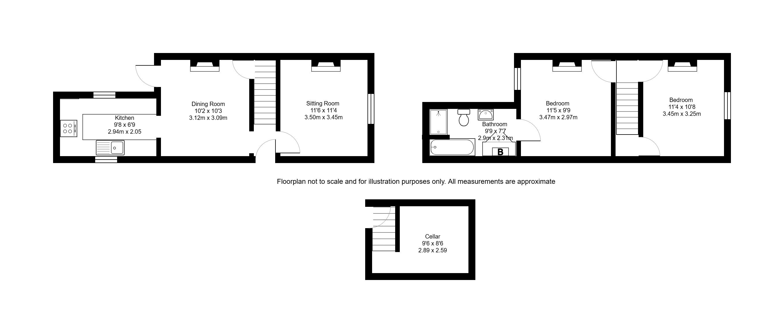
Entrance

Access is via a composite entrance door located to the side of the property, featuring inset frosted glass panels and opening into a welcoming entrance lobby. From here, doorways lead through to both the dining room and sitting room.

Sitting Room

Laid with wood flooring and benefits from a radiator and a double glazed window to the front with fitted PVC shutters. A feature period cast iron fireplace adds character and charm.

Dining Room

Wood flooring and a period cast iron fireplace. Stairs rise to the first floor, and a double glazed door provides access to the rear garden. There is a radiator and a door way leading through to the kitchen. Door with stairs leading to the cellar.

Kitchen

The kitchen is fitted with a ceramic tiled floor and double glazed windows to both sides, creating a bright and practical space. It is equipped with an inset halogen hob with built-in electric oven and extractor hood over, a one and a half bowl stainless steel sink with drainer and cupboards below, and a range of matching base and wall units. There is an integrated fridge/freezer, along with space and plumbing for both a washing machine and dishwasher. Recessed spotlights complete the space.

Cellar

Benefits from power and lighting and offers useful storage.

First Floor Landing

To the first floor, the landing provides access to Bedrooms One and Two.

Bedroom 1

Double glazed window to the front, fitted carpet, radiator, built-in wardrobe and decorative dado rail.

Bedroom 2

Double glazed window to the rear, fitted carpet, radiator and a period fireplace. A door opens with steps down to the bathroom.

Bathroom

The bathroom is fitted with a double glazed frosted window to the side and comprises a double-ended bath with mixer taps and handheld shower attachment, along with a separate double shower cubicle with power shower and waterfall shower head. Additional features include ceramic wall tiling, tiled flooring, extractor fan, vanity unit with inset basin, illuminated mirror and a low-level WC. A cupboard houses the gas boiler serving the domestic hot water and central heating system.

Outside

Rear Garden

The rear garden is accessed via a gravelled pathway with inset Indian stone stepping stones, leading to a garden area located to the rear of the property.
The rear garden is of a generous length and enjoys a pleasant, private outlook. Predominantly laid to lawn, it is flanked by established fencing and mature trees, providing a good degree of seclusion. To the far end of the garden is a seating area, ideal for outdoor entertaining, with a useful timber outbuilding offering storage or potential for a home office or hobby space. The garden also benefits from planted borders and a child friendly layout, making it well suited to families as well as those seeking a peaceful outdoor retreat.

Tenure

Freehold



Important Information

  • This is a Freehold property.

Property Ref: EAXML10807_12816340

Share:

Similar Properties

Albert Road, Tonbridge

3 Bedroom Flat | Asking Price £375,000

Waghorn & Company are pleased to offer to the market this Substantial Victorian three bedroom maisonette, located just a...

Preston Road, Tonbridge

2 Bedroom Terraced House | Guide Price £375,000

Waghorn and Company are delighted to offer this stylish and contemporary mews home, discreetly tucked away yet perfectly...

Tulip Tree Close, Tonbridge

3 Bedroom Semi-Detached House | Asking Price £360,000

Waghorn & Company are delighted to offer to the market this well presented, 3 bedroom town house, conveniently situated...

Shipbourne Road, Tonbridge

2 Bedroom Flat | Asking Price £385,000

Waghorn & Company are proud to offer to the market this deceptively spacious, 2 bedroom apartment, conveniently located...

2 Lime Hill Road, Tunbridge Wells

2 Bedroom Flat | Asking Price £385,000

NO ONWARD CHAIN!! Waghorn and Company are delighted to offer to the market this wonderful two bedroom, luxury purpose bu...

Garden Road, Tonbridge

4 Bedroom Terraced House | Offers in excess of £395,000

Waghorn & Company are delighted to present this superb four-bedroom family home, ideally positioned within easy walking...

Waghorn & Company (Tonbridge)

Tonbridge, Kent, TN9 1DH

01732 808542

How much is your home worth?

Use our short form to request a valuation of your property.

Request a Valuation

Mortgage Calculator

Amount Borrowed: £
Total Amount Repayable: £
Total Monthly Payment: £
©2026 The Guild of Property Professionals. All rights reserved. Terms and Conditions | Privacy Policy | Cookie Policy | Complaints Policy | Members Login
The Guild of Property Professionals Trading Address: 121 Park Lane, London W1K 7AG. GPEA Limited. Registered in England & Wales.  Company No: 02819824.  Registered Office Address: 2 St. Stephen's Court, St. Stephen's Road, Bournemouth, Dorset, England, BH2 6LA.  VAT Registration No: 576 8795 61
Book a Property Valuation Update Cookies Preferences