Lavender Hill, Tonbridge

Guide Price
£395,000
SSTC
This property listing is now SSTC

3 Bedroom House for sale in Tonbridge

2 3 1
  • Three Bedroom Semi-Detached Family Home
  • Convenient Location
  • Allocated Parking to Rear
  • Separate Reception Rooms
  • Front & Rear Gardens
  • EPC Rating D/ Council Tax Band C - £2,094.37 PA

GUIDE PRICE *£395,000-£425,000*
A rare opportunity to acquire a period home on one of the area’s most sought-after tree-lined roads, known for its great community and popular local pub, The Drum.
With three bedrooms, off-road parking, and a short walk to the mainline station (London in under 40 minutes), this charming property offers scope to add your own stamp and is available with no onward chain. Early viewing is advised.

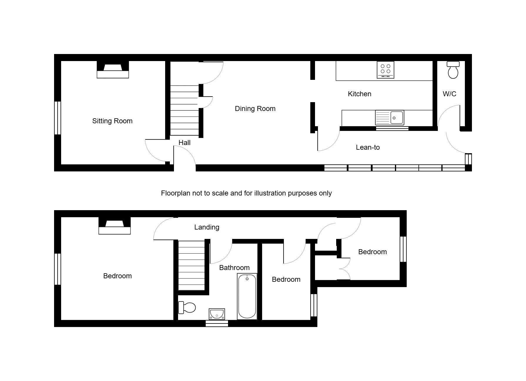
Entrance

Access is via a front entrance door located to the side of the property leading to entrance hall.

Entrance Hall

Stairs leading to first floor landing and doors to both sitting room and dining room.

Sitting Room
12' 0'' x 10' 7'' (3.65m x 3.22m)
Double glazed arched window to front, open fireplace and radiator.

Dining Room
12' 0'' x 9' 0'' (3.65m x 2.74m)
Doors leading to lean-to conservatory and kitchen, two under stairs storage cupboards and radiator.

Kitchen
10' 2'' x 7' 0'' (3.10m x 2.13m)
Double glazed window to side, butler style sink set within unit with cupboard under and a further range of matching base and wall units complimented by solid wood work tops, inset gas hob with electric oven over and matching extractor hood over, space and plumbing for both washing machine and dishwasher, space for fridge freezer.

Lean-to Conservatory

Double glazed with door to cloakroom, double glazed door leading to rear garden and radiator.

Cloakroom

Low level W/C.

Rear Garden

Patio area adjacent to the property with the remainder of the garden being laid to lawn with timber shed, rear pedestrian access leading to the allocated parking space, two raised borders, a selection of fruit trees, brick storage shed and side pedestrian access.

First Floor Landing

Doors to bedrooms and family bathroom, access to loft and radiator.

Bedroom 1
10' 0'' x 12' 10'' (3.05m x 3.91m)
Double glazed window to front, feature fireplace and radiator.

Bedroom 2
7' 0'' x 7' 0'' (2.13m x 2.13m)
Double glazed window to rear, exposed floor boards, built in wardrobes and radiator.

Bedroom 3
9' 0'' x 5' 4'' (2.74m x 1.62m)
Double glazed window to rear, exposed floor boards and radiator.

Family Bathroom

Tiled flooring, panelled bath with mixer taps and shower attachments, pedestal hand wash basin, double glazed frosted window to side, radiator and low level W/C.

Tenure

Freehold

Important Information

  • This is a Freehold property.

Property Ref: EAXML10807_12726626

Share:

Similar Properties

Gladstone Road, Tonbridge

3 Bedroom House | Asking Price £395,000

Waghorn and Company are proud to offer for sale this wonderful three double bedroom, halls adjoining, semi-detached Vict...

Shipbourne Road, Tonbridge

2 Bedroom Flat | Asking Price £385,000

Waghorn & Company are proud to offer to the market this deceptively spacious, 2 bedroom apartment, conveniently located...

2 Lime Hill Road, Tunbridge Wells

2 Bedroom Flat | Asking Price £385,000

NO ONWARD CHAIN!! Waghorn and Company are delighted to offer to the market this wonderful two bedroom, luxury purpose bu...

Burns Crescent, Tonbridge

3 Bedroom House | Asking Price £400,000

Burnes Crescent is a substantial semi detached family home conveniently located for favoured local schools, the High Str...

Cherwell Close, Tonbridge

3 Bedroom House | Offers in excess of £400,000

Waghorn and Company are proud to offer to the market this well presented three bedroom, semi-detached family home, locat...

Shipbourne Road, Tonbridge

2 Bedroom Flat | Asking Price £400,000

Waghorn & Company are delighted to offer to the market this beautifully presented, 2 bedroom apartment which offers spac...

Waghorn & Company (Tonbridge)

Tonbridge, Kent, TN9 1DH

01732 808542

How much is your home worth?

Use our short form to request a valuation of your property.

Request a Valuation

Mortgage Calculator

Amount Borrowed: £
Total Amount Repayable: £
Total Monthly Payment: £
©2025 The Guild of Property Professionals. All rights reserved. Terms and Conditions | Privacy Policy | Cookie Policy | Complaints Policy | Members Login
The Guild of Property Professionals Trading Address: 121 Park Lane, London W1K 7AG. GPEA Limited. Registered in England & Wales.  Company No: 02819824.  Registered Office Address: 2 St. Stephen's Court, St. Stephen's Road, Bournemouth, Dorset, England, BH2 6LA.  VAT Registration No: 576 8795 61
Book a Property Valuation Update Cookies Preferences