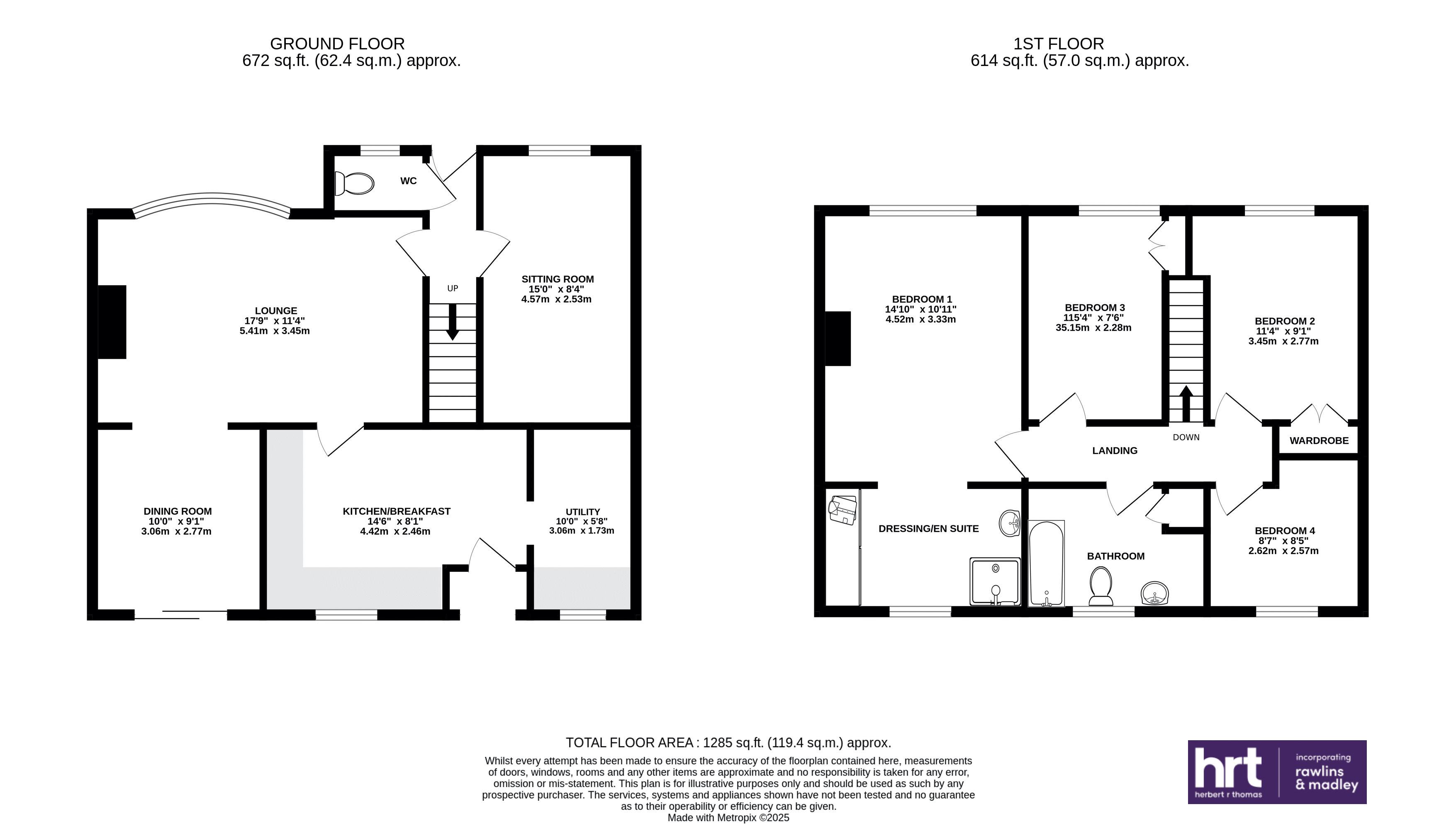
- Four bedroom detached family home
- Three reception rooms plus kitchen/breakfast room
- Utility room and ground floor cloakroom
- Bedroom one with en-suite shower/dressing room
- Highly sought after cul-de-sac location
- Within catchment for Llangan Primary School and Cowbridge Comprehensive School
- Far-reaching countryside views
- Off-road parking and double garage
- Potential to extend subject to relevant planning
- Vacant possession and no upward chain
 
                                 
                                 
                                 
                                 
                                 
                                 
                                 
                                 
                                 
                                 
                                 
                                 
                                 
                                 
                                                 
                                                     
                                                     
                                                     
                                                     
                                                     
                                                     
                                     
                                     
                                     
                                     
                                     
                                     
                                     
                                     
                                     
                                     
                                     
                                    