Aldbury, Tring

£1,150,000

3 Bedroom Detached Bungalow for sale in Tring

2 3 2

A Delightful Bungalow in Impeccable order throughout
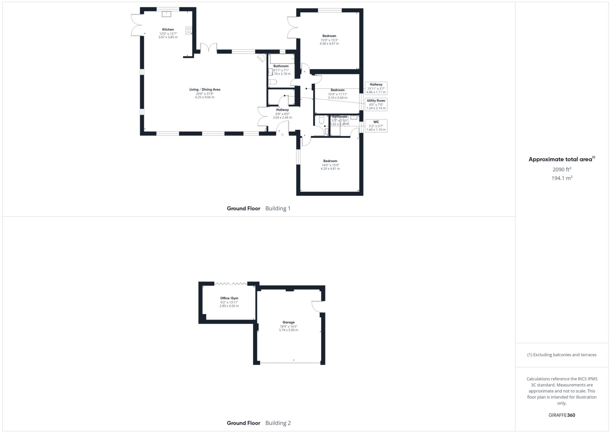
Set in the scenic Chiltern Hills, this beautifully presented three-bedroom home blends countryside charm with modern living. Bright and spacious throughout, it features open-plan living, a high-spec kitchen, and stylish interiors ideal for both families and entertaining.

Outside, landscaped gardens with multiple patios offer peaceful outdoor living, while a garage and versatile annex currently a home office and gym provide flexible space for work or hobbies.

Ideally located between Tring and Berkhamsted, the property enjoys excellent access to outstanding schools, including Goldfield Infants and Berkhamsted School, as well as a wealth of local amenities from artisan shops and cafes to Waitrose and M&S.

Surrounded by the Chilterns Area of Outstanding Natural Beauty, residents benefit from stunning countryside walks and nearby landmarks like Ashridge Estate, Tring Park, and Berkhamsted Castle.

This turnkey home offers the perfect balance of rural tranquillity and everyday convenience ideal for families, professionals, or downsizers seeking comfort, space, and lifestyle..

what3words /// townhouse.variously.paddock

Notice
Please note we have not tested any apparatus, fixtures, fittings, or services. Interested parties must undertake their own investigation into the working order of these items. All measurements are approximate and photographs provided for guidance only.

Council Tax
Buckinghamshire Council, Band G

Utilities
Electric: Mains Supply
Gas: Unknown
Water: Mains Supply
Sewerage: Mains Supply
Broadband: Unknown
Telephone: Landline

Other Items
Heating: Central Heating
Garden/Outside Space: Yes
Parking: Yes
Garage: Yes

Important Information

  • This is a Freehold property.

Property Ref: 270808_1377

Share:

Similar Properties

Lower Road, Hardwick

5 Bedroom Detached House | Offers in region of £1,150,000

Balebeck is an impressive five bedroom detached house, situated in the peaceful village of Hardwick, offering a serene r...

Perivale, Nightingale Road, Wendover

6 Bedroom Semi-Detached House | Offers in excess of £1,150,000

An attractive Edwardian residence offering exceptional family living in a peaceful no through road setting near the vill...

Buckland Lodge, Buckland

4 Bedroom Detached House | £1,100,000

A beautifully presented four bedroom detached family home located in this idyllic position backing on to open countrysid...

Brook House, Tring Road, Wendover

4 Bedroom Semi-Detached House | £1,250,000

**VIRTUAL TOUR AVAILABLE** An elegant and spacious individual property, situated in the very heart of Wendover is one of...

Cuddington Court, The Green

5 Bedroom Detached House | £1,250,000

A beautifully renovated 5 bedroom barn conversion, finished to an exceptional standard and set within an exclusive devel...

Dobbins Lane, Wendover

5 Bedroom Detached House | £1,300,000

A superb opportunity to acquire this well presented five bedroom detached family home, situated on an excellent plot in...

Harpers Estate Agents (Wendover)

Wendover, Buckinghamshire, HP22 6EA

01296 625100

How much is your home worth?

Use our short form to request a valuation of your property.

Request a Valuation

Mortgage Calculator

Amount Borrowed: £
Total Amount Repayable: £
Total Monthly Payment: £
©2025 The Guild of Property Professionals. All rights reserved. Terms and Conditions | Privacy Policy | Cookie Policy | Complaints Policy | Members Login
The Guild of Property Professionals Trading Address: 121 Park Lane, London W1K 7AG. GPEA Limited. Registered in England & Wales.  Company No: 02819824.  Registered Office Address: 2 St. Stephen's Court, St. Stephen's Road, Bournemouth, Dorset, England, BH2 6LA.  VAT Registration No: 576 8795 61
Book a Property Valuation Update Cookies Preferences