Plot on Hancock Lane, St Mawes, Cornwall

Offers Over
£395,000

3 Bedroom Plot for sale in Truro

1 3 3
  • An exciting and rare project opportunity.
  • Planning permission to convert or demolish and rebuild into a two storey 3 bedroom detached house with parking and garden
  • Located in one of Cornwall’s most prestigious coastal villages.
  • Situated within walking distance of shops, restaurants, beaches, sailing facilities and beautiful coastal walks.
  • 550 yards walk from central village amenities.
  • A thrilling prospect suited towards those buyers yearning for a project to build their dream home to their own specifications.
  • Click the "PLAY" buttons to explore our interactive VIRTUAL TOUR and Location VIDEO.

Located in one of Cornwall’s most prestigious coastal villages, a rare opportunity to purchase a detached outbuilding / garage with planning permission to convert or demolish and rebuild into a two storey three bedroom detached house with parking and garden, situated within walking distance of shops, restaurants, beaches, sailing facilities and beautiful coastal walks.
Existing Accommodation Summary(Internal Floor Area: 770.26 sq. ft. (71.56 sq. m.))
Ground Floor: Storage Room and Workshop Room
Outside: Courtyard and Side Garden Area (proposed parking area)
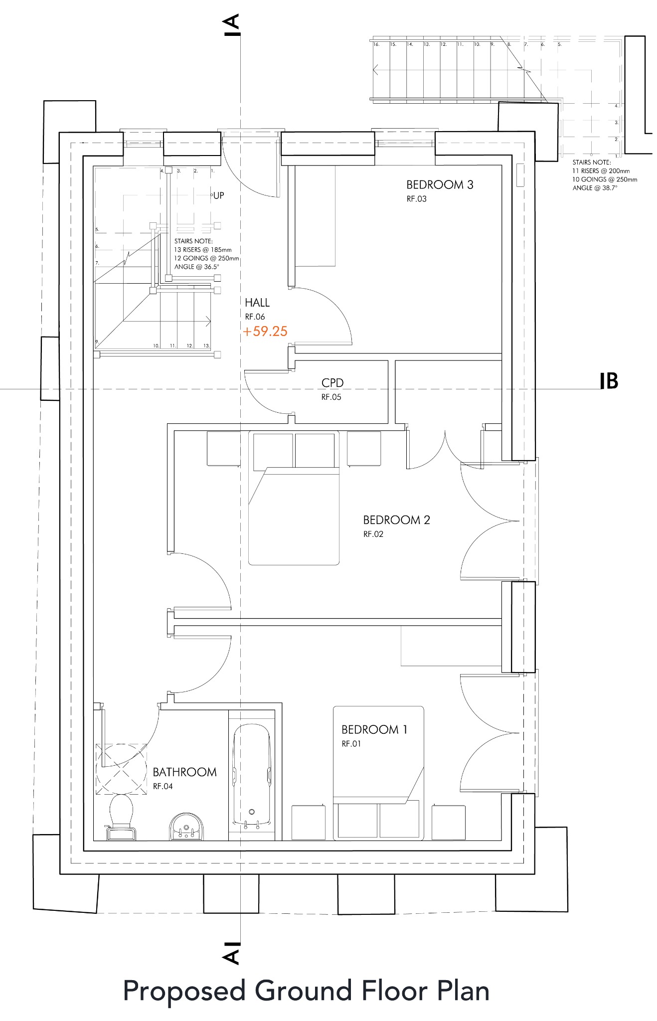
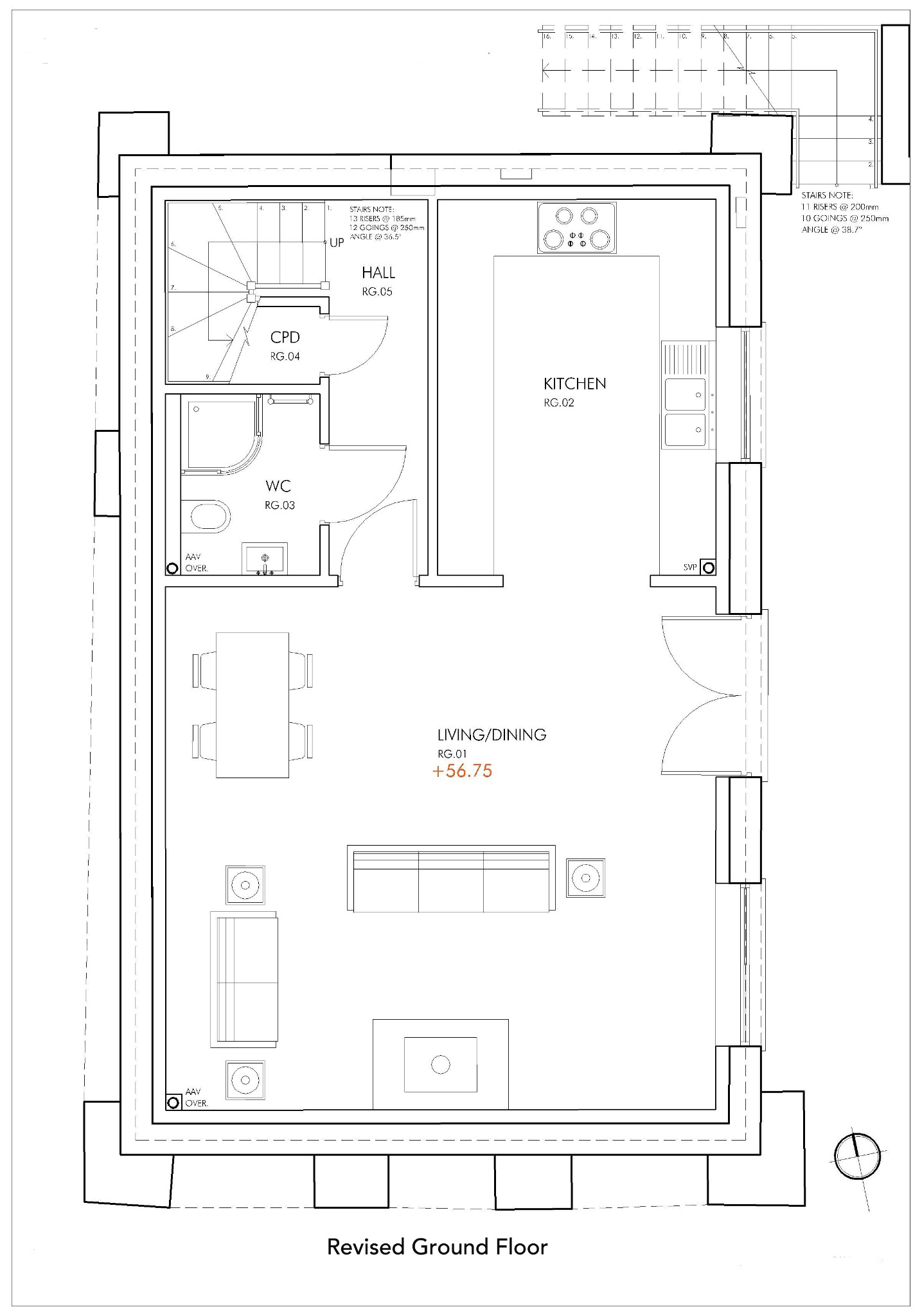
Proposed Accommodation Summary (as per Planning Permissions PA23/04684 and PA22/10255)(Proposed Internal Floor Area: 1540 sq ft (143 sq.m.))
Lower Ground Floor: Lower Hall, Cloakroom W/C, Open Plan Lounge / Dining Room, Kitchen.
Ground Floor: Upper Hall, Three Bedrooms, Family Bathroom
Outside: Off Road Tandem Parking for Two Vehicles, Courtyard Garden.
IntroductionThis exciting and rare opportunity has planning permission granted to either convert the existing structure or demolish and rebuild into a detached two storey three bedroomed family sized house with parking facilities and garden. Hancock Lane is located in an elevated position around 550 yards walk from central village amenities. Water sport facilities and an abundance beautiful coastal walks are on the doorstep. This thrilling prospect is suited towards those buyers yearning for a project to build their dream home to their own specifications and internal layout in one of Cornwall’s most sought after and exclusive coastal villages.
Location Summary(Distances and times are approximate)St Mawes Quay and Sailing Club: 550 yards walk. Tavern Beach: 700 yards walk. King Harry Car Ferry: 5 miles. Truro: 10 miles via car ferry. Falmouth: 20 minutes by passenger ferry or 15 miles by car ferry. Cornwall Airport Newquay: 29 miles with regular flights to London and other UK regional airports. St Austell: 15 miles with London Paddington 4.5 hours by rail.
St MawesThe exclusive Cornish coastal village of St Mawes was voted in 2020 by a Which? Customer Survey as the “Top Seaside Town in the UK”. This enchanting south facing harbour village, named “Britain’s St Tropez” by the Daily Mail, is found on the eastern side of the Fal Estuary, in an Area of Outstanding Natural Beauty. Much of its surroundings are owned by the National Trust. The village is centred round its quaint harbour, its own beaches and Castle built by Henry VIII. There is an all-year-round pedestrian ferry service to and from Falmouth and a seasonal ferry runs to Place, providing access to the scenic walks on the National Trust owned St Anthony Headland.
Local AmenitiesSt Mawes has a wide range of amenities, which are open all year, including two bakers, convenience store, post office/newsagent, doctors, dentist, pharmacy, village hall, social club, churches, delicatessen and clothing shops. The village also has two public houses, and an excellent range of cafes, restaurants, art galleries, gift and ice cream shops. Olga Polizzi's Hotel Tresanton and the chic Idle Rocks Hotel both lure the rich and famous. The village has superbly varied and accessible sailing waters and an active sailing club with a full programme to cater for all ages.
CornwallThe Duchy of Cornwall offers a range of attractions such as the Eden Project, the National Maritime Museum, the Lost Gardens of Heligan, and the Tate Gallery. The Cathedral City of Truro is the main financial and commercial centre of Cornwall. It has a fine range of shops, private schools, college and main hospital (RCH Treliske). Cornwall Airport in Newquay has regular daily flights to London as well as offering connections to other UK regional airports and a number of European destinations.
Fine Dining RestaurantsFine dining Michelin star and celebrity chef restaurants are in abundance, including Rick Stein (Padstow), Nathan Outlaw (Port Isaac), and Paul Ainsworth (Padstow and Rock). On The Roseland is Carla Jones at The Idle Rocks Hotel in St Mawes, Paul Wadham at Hotel Tresanton in St Mawes, and Simon Stallard at The Hidden Hut on Porthcurnick Beach and The Standard Inn in Gerrans.
General and Material Information
Services: Not currently connected but mains electricity, water and drainage are located nearby.
Energy Performance Certificate Rating: Currently Exempt. Council Tax Band: Currently Exempt
FTTC Superfast Broadband available: Openreach predicted max download speeds: Superfast 76 Mbps; Standard 21 Mbps.
Ofcom Mobile Area Coverage Rating: Likely for Vodaphone and O2, Ok for EE and Three.
Land Registry Title Number: CL365066
Tenure: Freehold
GOV.UK Long-Term-Flood-Risks: River/Sea: Very Low. Surface Water: Low.
Viewing: Strictly by appointment with H Tiddy.
Relevant Planning Application Numbers: PA23/04684 (granted 30/08/2023) and PA22/10255 granted (02/02/2023).
Community Infrastructure Levy (CIL) and Planning Conditions: Further detailed information, reports, architect’s drawings, Planning Approval Conditions and advice and information on any potential Community Infrastructure Levy can be found by searching with the above Planning Application Numbers on the ‘Cornwall Online Planning Register’.
Important NoticeEvery effort has been made with these details, but accuracy is not guaranteed, and they are not to form part of a contract. Representation or warranty is not given in relation to this property. An Energy Performance Certificate is available upon request. The electrical circuit, appliances and heating system have not been tested by the agents. All negotiations must be with H Tiddy. Before proceeding to purchase, buyers should consider an independent check of all aspects of the property. Further information on mobile coverage and broadband availability is found on Ofcom and Openreach ‘checker’ websites. Visit the Gov.uk website for further information and to ‘check long term flood risks.
General Data Protection Regulations: We treat all data confidentially and with the utmost care and respect. If you do not wish your personal details to be used by us for any specific purpose, then you can unsubscribe or change your communication preferences and contact methods at any time by informing us either by email or in writing at our office in St Mawes.

Important Information

  • This is a Freehold property.

Property Ref: 919_361623

Share:

Similar Properties

Frog Lane, Tregony, Truro, Cornwall, TR2

3 Bedroom Detached House | Guide Price £395,000

Well-presented 3 double bedroom cottage in Tregony with off-road parking and generous gardens. Dual-aspect living room w...

Portloe, Truro, Cornwall, TR2

2 Bedroom Cottage | Guide Price £395,000

A charming fisherman’s cottage in the heart of Portloe, just steps from the harbour, featuring a cosy living room with a...

St Mawes Village Centre

2 Bedroom End of Terrace House | Guide Price £395,000

A charming character two bedroom Fishermans cottage tucked away in a quiet row in central St Mawes near by the harbour a...

Veryan

2 Bedroom Detached Bungalow | Guide Price £399,950

Spacious two bedroom detached Bungalow tucked away in quiet cul de sac in beautiful village of Veryan. Gardens front and...

Portloe, The Roseland Peninsula

4 Bedroom Plot | Guide Price £410,000

A unique opportunity to purchase an individual building plot with planning permission for a farmhouse style three bedroo...

Roseland Gardens, Veryan, Truro, Cornwall, TR2

2 Bedroom Detached Bungalow | Guide Price £425,000

Spacious two bedroom detached Bungalow tucked away in quiet cul de sac in beautiful village of Veryan. Gardens front and...

H Tiddy (St Mawes)

St Mawes, Cornwall, TR2 5AG

01326 270212

How much is your home worth?

Use our short form to request a valuation of your property.

Request a Valuation

Mortgage Calculator

Amount Borrowed: £
Total Amount Repayable: £
Total Monthly Payment: £
©2025 The Guild of Property Professionals. All rights reserved. Terms and Conditions | Privacy Policy | Cookie Policy | Complaints Policy | Members Login
The Guild of Property Professionals Trading Address: 121 Park Lane, London W1K 7AG. GPEA Limited. Registered in England & Wales.  Company No: 02819824.  Registered Office Address: 2 St. Stephen's Court, St. Stephen's Road, Bournemouth, Dorset, England, BH2 6LA.  VAT Registration No: 576 8795 61
Book a Property Valuation Update Cookies Preferences