Threipmuir Walk, Murieston, Livingston

Offers Over
£450,000
Under Offer
This property listing is now Under Offer

4 Bedroom Detached House for sale in

4
  • Modern detached villa
  • Spacious lounge
  • Large modern kitchen/dining area
  • Master bedroom with en suite
  • Close to Local Amenities
  • Double garage and driveway
  • Extensive rear garden
  • Walking distance to railway station
  • Excellent commuter links by both road and rail
  • Three further bedrooms (two sharing Jack and Jill bathroom)

This lovely four-bedroom detached home in Muriestons exclusive Laurel Park Estate offers buyers a generous layout, stylish modern finishes, and plentiful light. With an expansive garden and double garage, it is ideal for a growing or established family.

EPC Rating - Band A

Set on a peaceful corner plot and spanning two floors 'The Doyle' boasts a tastefully decorated east-facing living room; an expansive open-plan dining kitchen that opens to the rear garden; a utility room with garden access; a versatile study; four comfortable bedrooms, three of which have en-suite access; a well-appointed family bathroom and a guest WC.

Benefitting from swift access to green spaces, excellent transport links, schooling, and Livingston's outstanding leisure and retail amenities it presents a superb opportunity.

What's special about this house

• Boasting a generous layout and stylish modern design this four-bedroom detached family home in a desirable setting offers comfort and convenience.
• Warm and inviting east-facing living room featuring a tasteful décor.
• Expansive and light-filled dining kitchen with French doors leading out to the enclosed rear garden. U-shaped in design under-base-lit white gloss wall and floor units sit alongside oak-effect worktops and high-spec AEG integrated appliances including a ceiling extractor hood, gas hob, eye-level grill and oven. An adjacent utility provides further storage and garden access.
• Impressive principal double bedroom with built-in mirrored wardrobes and a stylish en-suite shower room with a hidden cistern WC and washbasin.
• Versatile home office and study, ideal for working from home.
• Sizeable rear garden combining a lawn and paving.
• Ample off-street parking provided for by the monoblock driveway, and integral double garage. The latter could be converted as it offers drainage, electricity, and water.
• Solar panels with a solar diverter to ensure greater energy efficiency.

Location and Amenities

• A peaceful residential setting yet minutes from leisure, dining, and retail amenities.
• 15-minute drive from the exclusive Deer Park Golf and Country Club with its prestigious 18-hole course.
• The Centre Livingston and Livingston Designer Outlet are a short ten-minute drive.
• Ideal commuter location close to the M8 with easy access to Edinburgh (17 miles) and Glasgow (36 miles); the M9 is a short drive.
• Livingston South Railway Station with regular and swift links to Edinburgh and Glasgow is a 5-minute drive or a twenty-minute walk.
• Edinburgh International Airport is just 13 miles away from the property.
• Scenic green spaces on the doorstep include Eilburn Park and Almond Valley Heritage Park.
• Near to family-friendly recreational activities such as Xcite Livingston Leisure Centre and Five Sisters Zoo.

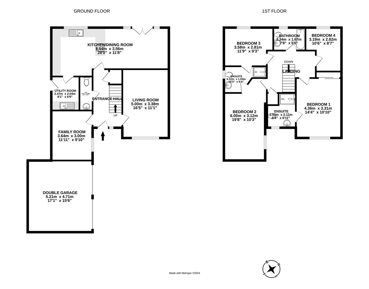
Dimensions

Ground Floor

Living Room 5.00m x 3.38m
Kitchen/Dining Room 8.54m x 3.56m
Utility Room 2.47m x 2.04m
Study 3.64m x 3.00m
WC 2.47m x 0.96m
Double Garage 5.21m x 4.71m

First Floor

Bedroom (1) 4.36m x 3.31m
Ensuite (1) 2.53m x 2.11m
Bedroom (2) 6.00m x 3.12m
Bedroom (3) 3.58m x 2.81m
Ensuite (2) 3.12m x 1.94m
Bedroom (4) 3.19m x 2.62m
Bathroom 2.34m x 1.67m

Property Ref: TUR1002526

Share:

Similar Properties

South Park House, 28 Station Road, Armadale

4 Bedroom Detached House | Offers Over £450,000

*Some images have been virtually staged for marketing purposes only*South Park House is where all the highly desirable f...

Main Street, Redding

5 Bedroom Detached House | Offers Over £450,000

Peacefully situated in Redding close to Falkirk town centre, this five-bedroom detached home spanning three floors and b...

Eastcroft Court, Livingston

4 Bedroom Detached House | Fixed Price £425,000

Peacefully situated at the end of a cul-de-sac just a ten-minute walk from Livingston Village this breathtaking detached...

Mansefield Court, Livingston Village

4 Bedroom Detached House | Offers Over £475,000

Nestled in the heart of Livingston Village, this unique, individually designed home is a true one-off—designed and built...

Torduff Walk, Livingston

5 Bedroom Detached House | Offers Over £499,000

Occupying a prime position within a highly regarded Murieston development, this exceptional ''Turnberry'' house type - t...

Balbardie Road, Craigard, Bathgate

5 Bedroom Detached House | Offers Over £600,000

With high ceilings, large rooms and all the desirable features of a period villa, ''Craigard'' is an exciting opportunit...

Turpie & Co (Bathgate)

Bathgate, West Lothian, EH48 1BA

01506 668 448

How much is your home worth?

Use our short form to request a valuation of your property.

Request a Valuation

Mortgage Calculator

Amount Borrowed: £
Total Amount Repayable: £
Total Monthly Payment: £
©2026 The Guild of Property Professionals. All rights reserved. Terms and Conditions | Privacy Policy | Cookie Policy | Complaints Policy | Members Login
The Guild of Property Professionals Trading Address: 121 Park Lane, London W1K 7AG. GPEA Limited. Registered in England & Wales.  Company No: 02819824.  Registered Office Address: 2 St. Stephen's Court, St. Stephen's Road, Bournemouth, Dorset, England, BH2 6LA.  VAT Registration No: 576 8795 61
Book a Property Valuation Update Cookies Preferences