Main Street, Redding

Offers Over
£450,000
Under Offer
This property listing is now Under Offer

5 Bedroom Detached House for sale in

5
  • Beautifully presented detached family home
  • Stunning open plan kitchen/dining/living room
  • Master bedroom with ensuite
  • Views to the Ochils and the Kelpies
  • Full length basement with utility, workshop and storage space
  • Off-street parking
  • Large and enclosed rear garden
  • Regular rail links to Edinburgh & Glasgow
  • Close to Local Amenities
  • Ideal commuter location

Peacefully situated in Redding close to Falkirk town centre, this five-bedroom detached home spanning three floors and boasting a large enclosed rear garden, outstanding views and off-street parking complete with EV charging point, has been thoughtfully designed for enviable modern family living.

EPC Rating - Band D

The heart of the home is a bright open-plan lounge and dining area, seamlessly connected to the rear garden and leading into a spacious contemporary kitchen. Five versatile bedrooms provide flexibility for family, guests, or home working, with the principal bedroom boasting a private en-suite. Two further sleek family bathrooms ensure comfort and convenience. On the basement level, a large utility room is complemented by a practical workshop and extensive storage space.

Boasting scenic countryside views yet near to amenities, schooling, green space, and excellent transport links, this home presents an exceptional opportunity.

What's special about this house

• Detached and deceptively spacious five-bedroom home enjoying a peaceful village setting and boasting a large enclosed rear garden, off-street parking, and an impressive, versatile layout.
• A stunning open-plan lounge and dining area with a seamless connection to the adjoining kitchen and rear garden, perfectly suited to modern family living. The lounge, decorated in a soft neutral palette with plush carpeting and an elegant bay window to the front, offers a warm and inviting atmosphere. To the rear, the dining area enjoys abundant natural light and panoramic views across the expansive garden, enhanced by direct garden access and a stylish shift to wood-effect flooring.
• Spacious, contemporary kitchen enjoying picturesque views over the rear garden and beyond, featuring sleek white gloss wall and floor units complemented by illuminated natural-hued worktops. High-spec integrated appliances include a slanted extractor hood, hob, and double eye-level oven with grill, while a stylish peninsula counter provides the perfect spot for casual dining.
• Large basement incorporating a utility room, boot room, boiler room and a workshop. Direct garden access from the utility room is a practical advantage for laundry and a convenient extension of the kitchen when dining outdoors
• Impressive principal suite boasting a spacious layout and enjoying panoramic countryside views. It features a stylish en-suite shower room with a chrome towel radiator, WC and washbasin and an airing cupboard.
• Exceptionally spacious enclosed rear garden, gently sloping and predominantly laid to lawn, enhanced by raised sleeper beds, fruit trees, and a greenhouse. With sweeping countryside views, it offers a superb outdoor retreat for family living and entertaining. To the front, a neatly kept lawn frames the driveway, adding to the home's welcoming kerb appeal.
• Driveway with EV charger.
• A tranquil village setting close to Linlithgow and Falkirk.

Location and Amenities

• Catchment for Westquarter Primary School and Graeme High School.
• There is a Tesco superstore and local convenience stores within easy reach.
• Falkirk town centre with an array of stores, bars, cafès, and restaurants to enjoy is a ten-minute drive.
• Ideal commuter location near the M9 with easy access to Edinburgh (24 miles) and Glasgow (29 miles).
• Polmont Train Station with regular and swift links to Edinburgh and Glasgow is less than a 5 minute drive
• Edinburgh International Airport is just 16.7miles from the property.
• Excellent recreational opportunities at Grangemouth Golf Club and Grangemouth Sports Complex.
• Fantastic attractions to discover including those at Linlithgow Palace, Callendar Park, The Falkirk Wheel, and House of the Binns.

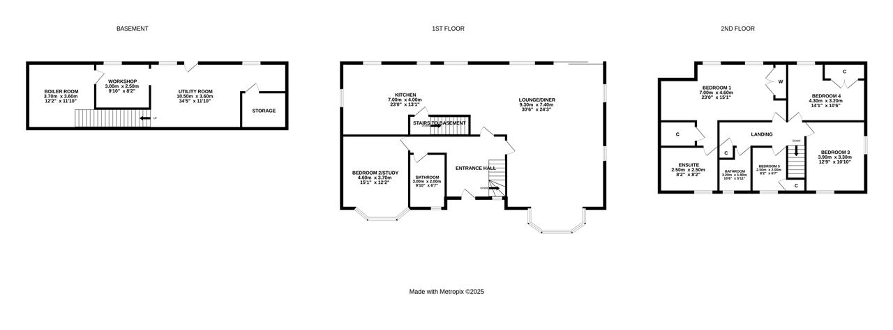
Dimensions

Basement

Boiler Room 3.70 x 3.60m
Workshop 3.00 x 2.50m
Utility Room 10.50 x 3.60m

First Floor

Kitchen 7.00 x 4.00m
Lounge/Diner 9.30 x 7.40m
Bedroom 2/Study 4.60 x 3.70m
Bathroom 3.00 x 2.00m

Second Floor

Bedroom 1 7.00 x 4.60m
Ensuite 2.50 x 2.50m
Bedroom 3 3.90 x 3.30m
Bedroom 4 4.30 x 3.20m
Bedroom 5 2.50 x 2.00m
Bathroom 3.20 x 1.80m

Property Ref: TUR1002634

Share:

Similar Properties

Threipmuir Walk, Murieston, Livingston

4 Bedroom Detached House | Offers Over £450,000

This lovely four-bedroom detached home in Muriestons exclusive Laurel Park Estate offers buyers a generous layout, styli...

South Park House, 28 Station Road, Armadale

4 Bedroom Detached House | Offers Over £450,000

*Some images have been virtually staged for marketing purposes only*South Park House is where all the highly desirable f...

Eastcroft Court, Livingston

4 Bedroom Detached House | Fixed Price £425,000

Peacefully situated at the end of a cul-de-sac just a ten-minute walk from Livingston Village this breathtaking detached...

Mansefield Court, Livingston Village

4 Bedroom Detached House | Offers Over £475,000

Nestled in the heart of Livingston Village, this unique, individually designed home is a true one-off—designed and built...

Torduff Walk, Livingston

5 Bedroom Detached House | Offers Over £499,000

Occupying a prime position within a highly regarded Murieston development, this exceptional ''Turnberry'' house type - t...

Balbardie Road, Craigard, Bathgate

5 Bedroom Detached House | Offers Over £600,000

With high ceilings, large rooms and all the desirable features of a period villa, ''Craigard'' is an exciting opportunit...

Turpie & Co (Bathgate)

Bathgate, West Lothian, EH48 1BA

01506 668 448

How much is your home worth?

Use our short form to request a valuation of your property.

Request a Valuation

Mortgage Calculator

Amount Borrowed: £
Total Amount Repayable: £
Total Monthly Payment: £
©2026 The Guild of Property Professionals. All rights reserved. Terms and Conditions | Privacy Policy | Cookie Policy | Complaints Policy | Members Login
The Guild of Property Professionals Trading Address: 121 Park Lane, London W1K 7AG. GPEA Limited. Registered in England & Wales.  Company No: 02819824.  Registered Office Address: 2 St. Stephen's Court, St. Stephen's Road, Bournemouth, Dorset, England, BH2 6LA.  VAT Registration No: 576 8795 61
Book a Property Valuation Update Cookies Preferences