West Street Warminster

Guide Price
£375,000
SSTC
This property listing is now SSTC

4 Bedroom Not Specified for sale in Warminster

2 4 2
  • Four bedrooms, including flexible study/family room options
  • Two modern bathrooms including ensuite
  • Bright reception room with conservatory
  • Well-equipped kitchen
  • Detached garage
  • Adaptable layout for multi-generational living or home working
  • Desirable and quiet location

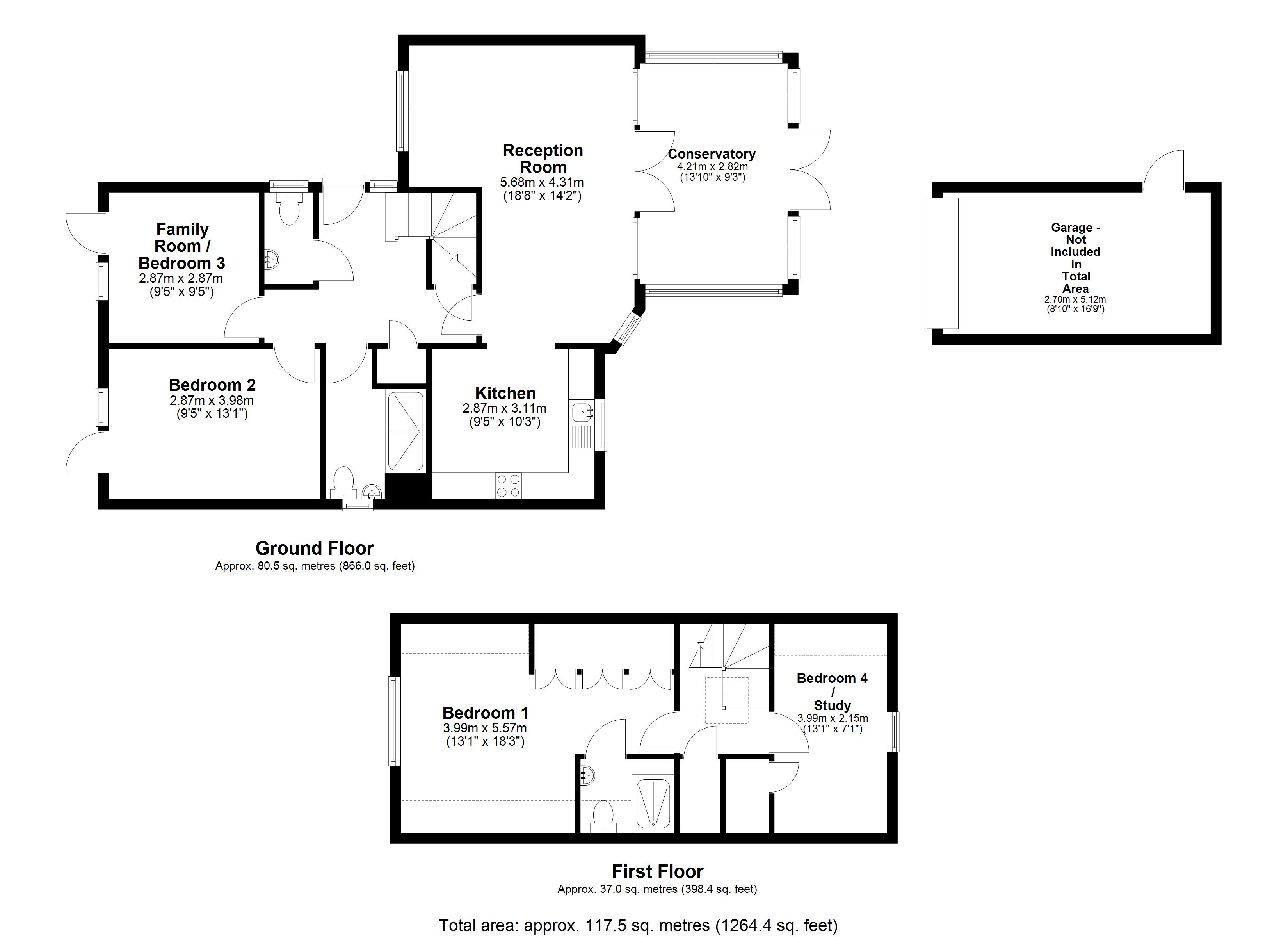
Charming four bedroom semi-detached chalet bungalow situated in a sought after location within Warminster.

Nestled in a desirable residential area, this beautifully presented four-bedroom home was built in 2013. It offers a perfect blend of flexible living, modern convenience, and characterful design. The thoughtfully arranged living space provides ample space for families, downsizers, home workers, and those who enjoy entertaining.

The ground floor consists of a welcoming entrance hall that leads onto your open plan kitchen/dining/living area. A well-appointed kitchen provides a practical workspace with plenty of counter space and storage. The living/dining area is dual aspect and allows for lots of natural light and includes a door out to the garden. There are also French doors which lead into the large conservatory that overlooks the garden and is a lovely space for entertaining.

The ground floor also includes a modern bathroom that includes a large walk in shower and has been beautifully tiled throughout. There is also two versatile rooms that are currently being used as bedrooms.

As you make your way upstairs the property continues to impress with two further bedrooms including the principle bedroom that has built in wardrobes and a ensuite including a bath and another bedroom that could be used as an office space if needed.

Outside, a detached garage provides secure parking and additional storage. The property’s gardens offer a peaceful retreat, perfect for outdoor dining or family relaxation as they are very private and laid mostly to lawn.

Agents Note: EPC to follow

Important Information

  • This is a Freehold property.
  • This Council Tax band for this property is: D

Property Ref: DDW_DDW250141

Share:

Similar Properties

Leighton Park Road Westbury Leigh

4 Bedroom Semi-Detached House | Asking Price £375,000

*** £10,000 towards your moving costs. READY NOW*** A stunning brand new semi detached family home situated in this fabu...

Gilhespy Way Westbury

4 Bedroom Detached House | Offers Over £375,000

A beautifully modern detached four bedroom house located in a very sought after development on the edge of town close to...

Roman Place Westbury

4 Bedroom Not Specified | Guide Price £375,000

Stunning four bedroom semi detached new build house with three bathrooms and three parking spaces. Ready to move into wi...

West Street Warminster

4 Bedroom Detached House | Offers in excess of £380,000

A wonderful four bedroom detached home in the popular central location in Warminster close to local amenities and Warmin...

Greenhill Place

4 Bedroom Semi-Detached House | Offers in excess of £385,000

A beautiful four bedroom semi detached home in the idyllic village of Codford St Peter, with far reaching views over adj...

Whitehorse Way Westbury

4 Bedroom Detached House | Guide Price £385,000

A beautiful modern home that has been upgraded and improved throughout. Located in a quiet cul de sac a short walk to lo...

Davies & Davies (Westbury)

Westbury, Wiltshire, BA13 3BW

01373 859 944

How much is your home worth?

Use our short form to request a valuation of your property.

Request a Valuation

Mortgage Calculator

Amount Borrowed: £
Total Amount Repayable: £
Total Monthly Payment: £
©2026 The Guild of Property Professionals. All rights reserved. Terms and Conditions | Privacy Policy | Cookie Policy | Complaints Policy | Members Login
The Guild of Property Professionals Trading Address: 121 Park Lane, London W1K 7AG. GPEA Limited. Registered in England & Wales.  Company No: 02819824.  Registered Office Address: 2 St. Stephen's Court, St. Stephen's Road, Bournemouth, Dorset, England, BH2 6LA.  VAT Registration No: 576 8795 61
Book a Property Valuation Update Cookies Preferences