Dartmoor Road Westbury

Offers in excess of
£450,000
SSTC
This property listing is now SSTC

5 Bedroom Detached House for sale in Westbury

2 5 3
  • 5 BEDROOMS, 2 WITH ENSUITES
  • PRINCIPAL BEDROOM WITH DRESSING AREA
  • STUNNING KITCHEN/DINER WITH INTEGRATED APPLIANCES
  • AMPLE PARKING AND DOUBLE GARAGE
  • ENCLOSED REAR GARDEN
  • POPULAR LOCATION
  • CLOSE TO LOCAL AMENITIES
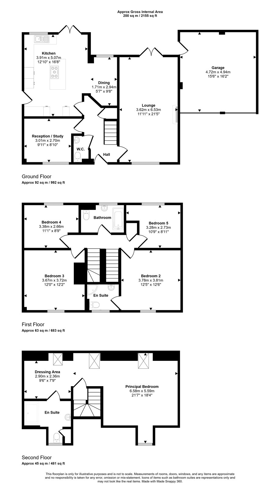
  • APPROX 1900 SQ FEET OF ACCOMMODATION

Covering 1900 sq ft, this exceptional detached property in the sought-after location of Westbury is an ideal home for a growing family.

With five bedrooms and three bathrooms, this stunning home boasts a range of features. On the ground floor this includes a dual aspect sitting room, a kitchen diner with built-in appliances, including coffee machine, boiling water tap, dishwasher, washing machine and tumble dryer. The kitchen also houses two ovens, built in microwave and has an induction hob on the island. There is a spacious bright study/office and a handy cloakroom.

The first floor offers 4 good sized bedrooms, one with an ensuite, and a family bathroom, while the second floor is dedicated to the principal bedroom complete with its own dressing area and a further ensuite.

The generous enclosed rear garden, where you will find a patio ideal for outdoors entertaining, is mostly laid to lawn. French doors lead you back in via the sitting room and there is a personnel door to the double garage.

The current owners have lovingly cared for this property for 20 years, since they bought new.

To the front of the property there is ample driveway parking and a double garage, ideal for modern family life.

Conveniently located in Westbury, residents can enjoy easy access to a range of local amenities and attractions, including shops, restaurants, and excellent transport links.

Don't miss out on the opportunity to view this incredible property. Contact us today to schedule a viewing and see for yourself everything this lovely home has to offer.

Important Information

  • This is a Freehold property.
  • This Council Tax band for this property is: F
  • EPC Rating is C

Property Ref: DDW_DDW250080

Share:

Similar Properties

Mays Drive Westbury

4 Bedroom Detached House | Offers in excess of £450,000

A spacious detached family home occupying a prime position in this coveted development, presented in show home condition...

Alma Gardens Westbury

4 Bedroom Detached House | Offers in excess of £435,000

This modern and well presented 4 double bedroom detached executive home resides on the White Horse View estate in a peac...

Shepherds Mead Dilton Marsh

5 Bedroom Detached House | Guide Price £425,000

Stunning 5/6-bedroom detached house in a charming village. This modern property boasts a beautiful garden and convenient...

Ethendun Bratton

4 Bedroom Detached House | Asking Price £465,000

A wonderful four bedroom modern detached home in the heart of the popular village of Bratton. *No onward chain*

Wellhead Lane Westbury

3 Bedroom Detached House | Offers in excess of £475,000

Charming detached 3-bedroom home in a wonderful peaceful location. Bright, spacious, and stylish interiors with a landsc...

Suffolk Road Westbury

5 Bedroom Detached House | Guide Price £475,000

A substantial detached home offering a generous amount of living space arranged over three floors, ideal for a growing f...

Davies & Davies (Westbury)

Westbury, Wiltshire, BA13 3BW

01373 859 944

How much is your home worth?

Use our short form to request a valuation of your property.

Request a Valuation

Mortgage Calculator

Amount Borrowed: £
Total Amount Repayable: £
Total Monthly Payment: £
©2025 The Guild of Property Professionals. All rights reserved. Terms and Conditions | Privacy Policy | Cookie Policy | Complaints Policy | Members Login
The Guild of Property Professionals Trading Address: 121 Park Lane, London W1K 7AG. GPEA Limited. Registered in England & Wales.  Company No: 02819824.  Registered Office Address: 2 St. Stephen's Court, St. Stephen's Road, Bournemouth, Dorset, England, BH2 6LA.  VAT Registration No: 576 8795 61
Book a Property Valuation Update Cookies Preferences