Boyd Road Westbury

Offers Over
£275,000
SSTC
This property listing is now SSTC

3 Bedroom Semi-Detached House for sale in Westbury

2 3 2
  • MODERN THREE BEDROOM SEMI DETACHED DOUBLE FRONTED HOME
  • LOCATED ON A HIGHLY SOUGHT AFTER DEVELOPMENT CLOSE TO SCHOOL AND AMENITIES
  • PERFECT AS A FIRST TIME PURCHASE
  • HIGH SPECIFICATION APPLIANCES THROUGHOUT
  • THREE SPACIOUS BEDROOMS INCLUDING AN ENSUITE
  • WELL MAINTAINED GARDEN
  • DRIVEWAY PARKING FOR TWO CARS
  • OPEN PLAN KITCHEN/DINER WITH FRENCH DOORS TO THE SUNNY GARDEN

Stunning and spacious semi-detached house boasting 3 bedrooms in a sought-after development. This modern property is bright and airy, creating a homely atmosphere perfect for family living. The interior is luxurious and stylishly designed with high specification appliances and finishes throughout.

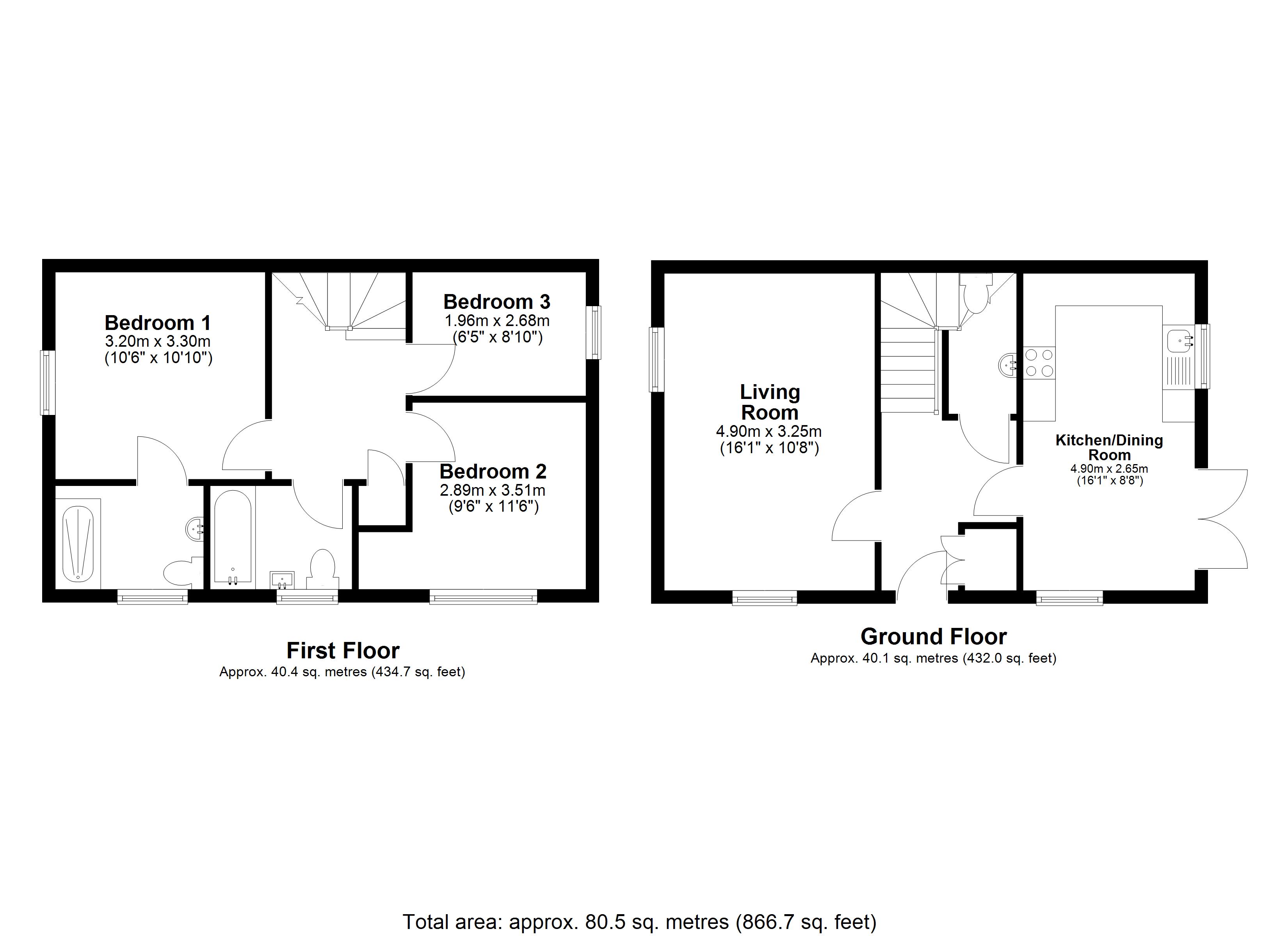
As you enter the property you are welcomed by spacious hallway which leads onto your ground floor living rooms. A large living room includes dual aspect windows allowing for plenty of natural light and is an ideal space for relaxed evenings together, as you make your way back through the hallway there is a cloakroom and a modern open plan kitchen/dining area which includes French doors leading out to the sunny garden.

Upstairs the property continues to impress with three spacious bedrooms including an ensuite to the principal bedroom and a family bathroom. Well decorated with modern touches throughout mean that this property is ready to move straight into. The property also features a well-maintained garden, ideal for entertaining and a driveway for multiple cars.

Located in a prime location, this property offers easy access to local amenities, schools, and transport links, making it an ideal choice for families or professionals looking for a comfortable and stylish home. Don't miss the opportunity to make this house your own and experience the luxury and convenience it has to offer. Contact us today to arrange a viewing.

Westbury is a vibrant and popular market town located in the heart of Wiltshire which provides excellent access to Warminster, Salisbury, Frome and Bath via the A36. The town is well served with several respected Schools, Westbury Infants, Westbury Church Of England Junior and Matravers Secondary. Residents are able to take full advantage of the gorgeous countryside that surrounds the town, with some beautiful walks and cycle rides nearby not to mention Longleat which is 8 miles distant, so whether it be a stroll to enjoy the vista across the White Horse and beyond or perhaps a ramble in Clanger Woods this has it all. Superb rail links are on hand courtesy or the Railway Station which offers a direct line to Bath, London Paddington, Cardiff, Portsmouth and Swindon. The historic 14th century All Saints Church is located off the main square and you will find a number of independent shops and cafe's to enjoy along with a Farmers Market which meets on a weekly basis. The town has three large supermarkets with Aldi, Lidl and Morrisons to choose from. On the sports and leisure side there is Leighton Recreation Centre a local swimming pool and several gyms where you can work up a sweat.

AGENTS NOTE: There is a management charge payable for maintenance of the development. This is yet to be assigned and is currently overseen by the developer, these costs are yet to be fixed and we await the current estimated charge.

Important Information

  • This is a Freehold property.
  • This Council Tax band for this property is: C
  • EPC Rating is B

Property Ref: DDW_DDW250230

Share:

Similar Properties

Priory Cottages Bratton

2 Bedroom Terraced House | Offers Over £275,000

A beautiful Grade II listed home set in the popular village of Bratton, enjoying far reaching countryside views and inte...

Chapel Close Bratton

2 Bedroom Detached House | Asking Price £275,000

A wonderful two bedroom detached home for over 55's in Bratton. Close to local amenities and countryside walks.

Baynton Close Westbury

3 Bedroom Semi-Detached House | Offers in excess of £275,000

Semi-detached 3-bedroom house boasting a bright, luxurious, and modern interior. Stylishly designed and well-maintained,...

Dartmoor Road Westbury

3 Bedroom Semi-Detached House | Offers Over £280,000

A beautiful three bedroom semi detached home with two parking spaces a garage, of which half has been coverted into a st...

Hill Ground Frome

3 Bedroom Terraced House | Guide Price £285,000

Beautifully Presented Three Bedroom Home with Far-Reaching Views and Terraced Gardens

Swallows Rise Westbury

3 Bedroom Semi-Detached House | Offers in excess of £285,000

A modern three bedroom semi detached home located on a primary plot in a highly sought after development.

Davies & Davies (Westbury)

Westbury, Wiltshire, BA13 3BW

01373 859 944

How much is your home worth?

Use our short form to request a valuation of your property.

Request a Valuation

Mortgage Calculator

Amount Borrowed: £
Total Amount Repayable: £
Total Monthly Payment: £
©2025 The Guild of Property Professionals. All rights reserved. Terms and Conditions | Privacy Policy | Cookie Policy | Complaints Policy | Members Login
The Guild of Property Professionals Trading Address: 121 Park Lane, London W1K 7AG. GPEA Limited. Registered in England & Wales.  Company No: 02819824.  Registered Office Address: 2 St. Stephen's Court, St. Stephen's Road, Bournemouth, Dorset, England, BH2 6LA.  VAT Registration No: 576 8795 61
Book a Property Valuation Update Cookies Preferences