Knaphill, Woking, Surrey, GU21

£525,000

2 Bedroom Semi-Detached Bungalow for sale in Woking

2 2 1
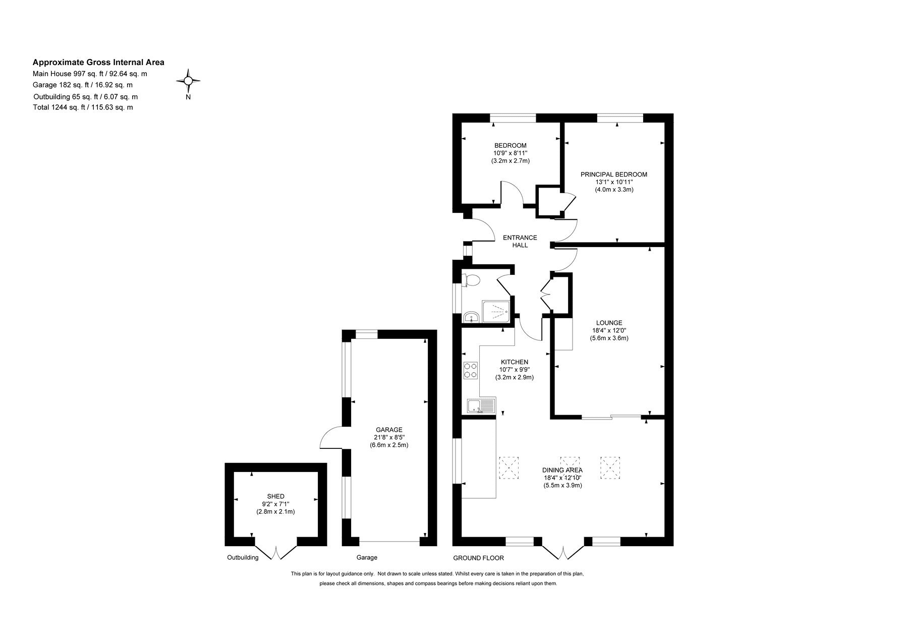
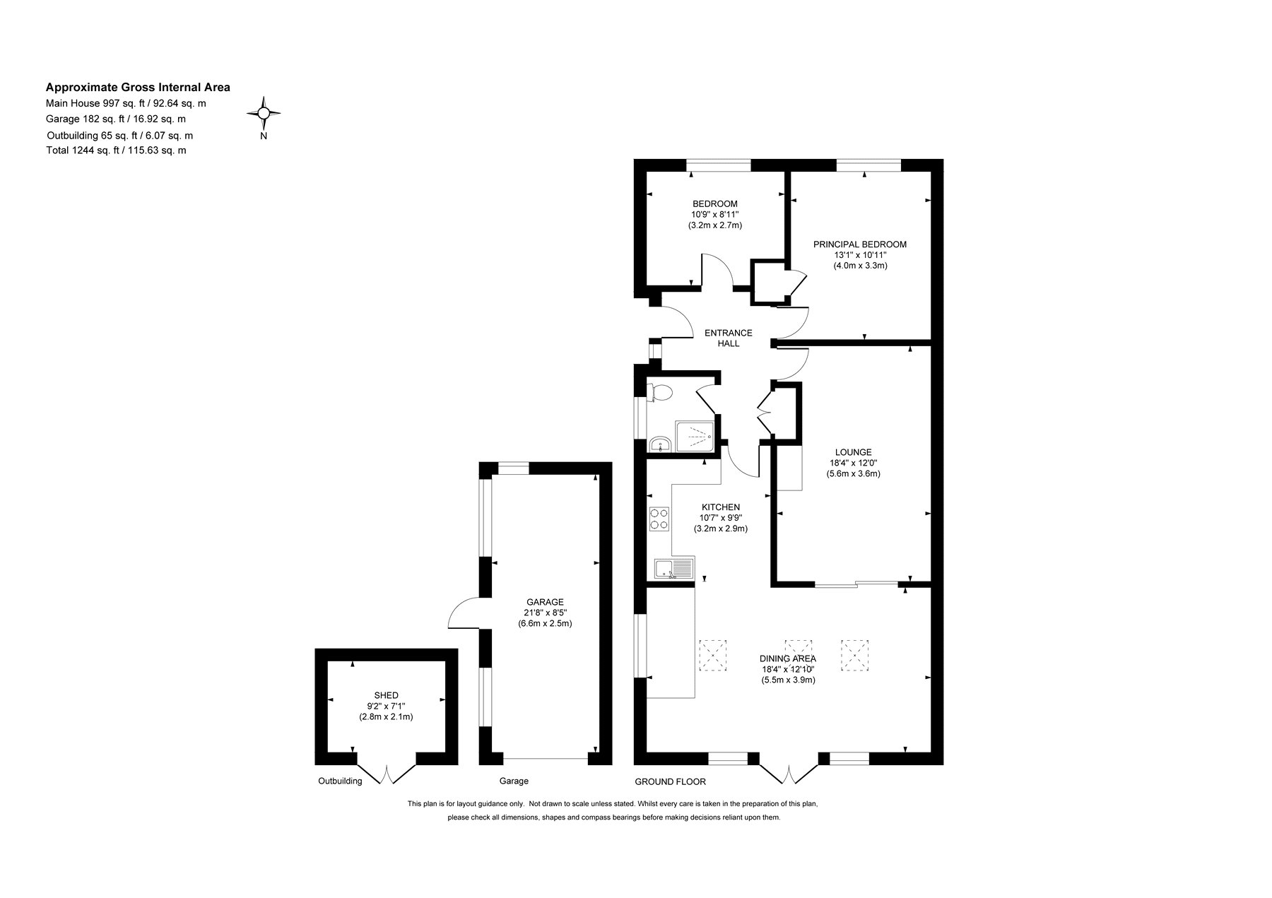
  • Extended Bungalow
  • Two Double Bedrooms
  • Garage
  • Driveway Providing Off Street Parking
  • Lounge
  • Open Plan Kitchen/Dining Room
  • Walking Distance to Knaphill Village
  • Close to Bus Links

This beautifully presented and extended semi-detached bungalow offers spacious and versatile accommodation throughout, perfectly blending comfort and modern living and is offered to the market in excellent internal condition.
The property features two generous double bedrooms and a modern family bathroom fitted with a stylish walk-in shower.
There is a welcoming lounge, ideal for relaxing evenings, but the standout feature of this home is the impressive rear extension, which has created a superb open-plan kitchen/dining area, the true heart of the home. Flooded with natural light from three sky lanterns and French doors opening to the garden, this space is perfect for both everyday living and entertaining. The kitchen is well-equipped with a range of base and eye-level units, integrated fridge/freezer, double oven and gas hob.
Outside, the rear garden extends to approximately 45ft, providing ample space for outdoor seating and family activities. There is also a detached garage and a driveway offering off-street parking at the front.
Ideally located, the property enjoys convenient access to bus links offering easy routes to Woking Town Centre and its mainline train station, while being within walking distance of Knaphill Village, which offers a variety of local shops, cafes, and amenities.
This delightful home combines practicality, style and an excellent location, an ideal choice for downsizers, small families, or anyone seeking single-storey living with a touch of luxury.

Location
Knaphill village has a vibrant range of shops, pubs and restaurants, which includes a Post Office. For more comprehensive shopping, Sainsbury's superstore is approximately quarter of a mile away. For commuting, Brookwood station provides a regular service direct to London Waterloo, Woking and Guildford. For those who enjoy the outdoors, there is Brookwood Country Park, Sheets Heath and Basingstoke Canal close by, which is ideal for dog walking or a family stroll.

Important Information

  • This is a Freehold property.

Property Ref: 58085_KNA250438

Share:

Similar Properties

Knaphill, Woking, Surrey, GU21

4 Bedroom Terraced House | £525,000

***CHAIN FREE PROPERTY***A spacious 4 double bedroom terraced home that lies within walking distance of Brookwood Mainli...

West End, Woking, Surrey, GU24

3 Bedroom Detached House | £525,000

* NO ONWARD CHAIN * An extremely well presented detached family home located in a delightful cul-de-sac position, on the...

Brookwood, Woking, Surrey, GU24

5 Bedroom End of Terrace House | £525,000

Offered to the market with no onward chain. This charming period property is a short walk from Brookwood Mainline Statio...

Knaphill, Woking, Surrey, GU21

3 Bedroom Semi-Detached House | £539,000

This beautifully presented semi detached 3-bedroom character property effortlessly combines period charm with modern liv...

Knaphill, Woking, Surrey, GU21

4 Bedroom End of Terrace House | £545,000

Located within walking distance of Brookwood Mainline Station, overlooking fields. A recently built family home that ben...

West End, Woking, Surrey, GU24

2 Bedroom Semi-Detached House | £549,950

This attractive period property is conveniently located for Gordons School which is under 600m away and boasts a wealth...

Seymours (Knaphill)

Knaphill, Surrey, GU21 2PP

01483 798969

How much is your home worth?

Use our short form to request a valuation of your property.

Request a Valuation

Mortgage Calculator

Amount Borrowed: £
Total Amount Repayable: £
Total Monthly Payment: £
©2025 The Guild of Property Professionals. All rights reserved. Terms and Conditions | Privacy Policy | Cookie Policy | Complaints Policy | Members Login
The Guild of Property Professionals Trading Address: 121 Park Lane, London W1K 7AG. GPEA Limited. Registered in England & Wales.  Company No: 02819824.  Registered Office Address: 2 St. Stephen's Court, St. Stephen's Road, Bournemouth, Dorset, England, BH2 6LA.  VAT Registration No: 576 8795 61
Book a Property Valuation Update Cookies Preferences