Knaphill, Woking, Surrey, GU21

£400,000
SSTC
This property listing is now SSTC

3 Bedroom End of Terrace House for sale in Woking

1 3 1
  • No Onward Chain
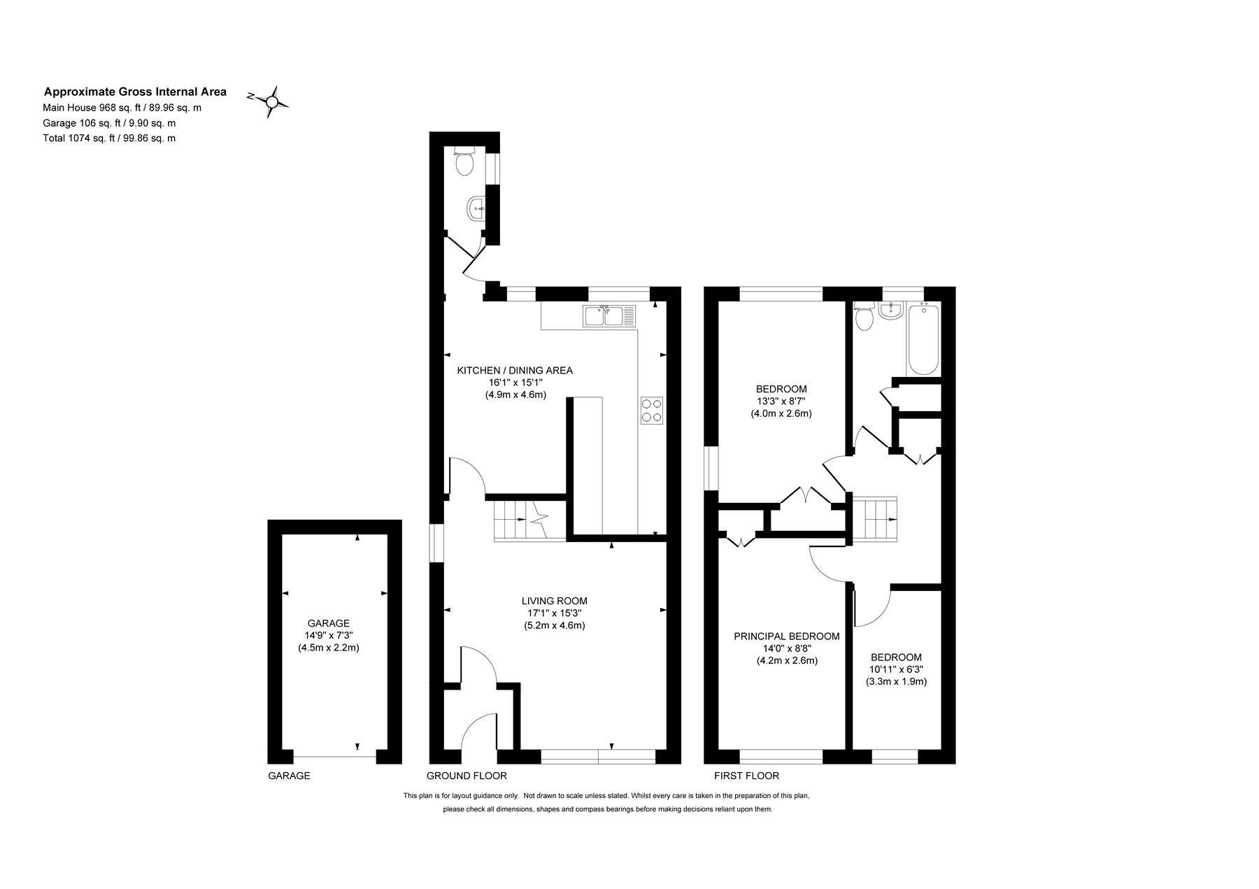
  • Three Bedrooms
  • Kitchen/Dining Room
  • Downstairs Cloakroom
  • Garage in a Block
  • Overlooking a Small Green
  • Within Easy Reach of Knaphill Village
  • Close to Bus Links

Spacious 3-Bedroom End of Terrace Home – No Onward Chain – Overlooking a Green
Offered to the market with no onward chain, this well proportioned three bedroom end of terrace home enjoys a peaceful outlook over a green and provides generous living space throughout.
The ground floor features a bright front aspect lounge, flooded with natural light via a large double glazed window. Towards the rear of the home is a good sized kitchen/dining room, ideal for family life and entertaining, and a convenient downstairs cloakroom. Upstairs, there are three comfortable bedrooms, offering flexibility for family living, guests, or working from home. These share the use of a neat family bathroom fitted with a three piece suite.
Outside there is a low maintenance rear garden with a patio that is enclosed by landscaped borders planted with an array of mature plants and shrubs. To the front is another well maintained garden that is laid to lawn.
Positioned at the end of the terrace, the property benefits from added privacy and outdoor space, with green views creating a pleasant and open feel to the front, there is also the opportunity to add an electric charging station in the garage or at the front of the home.
Perfect for first time buyers, young families, or investors alike, this is a fantastic opportunity to secure a home with excellent potential in a desirable location.

Location
Knaphill village has a vibrant range of shops, pubs and restaurants, which includes a Post Office. For more comprehensive shopping, Sainsbury's superstore is approximately quarter of a mile away. For commuting, Brookwood station provides a regular service direct to London Waterloo, Woking and Guildford. For those who enjoy the outdoors, there is Brookwood Country Park, Sheets Heath and Basingstoke Canal close by, which is ideal for dog walking or a family stroll
N.B Annual charges apply £160.00pa

Important Information

  • This is a Freehold property.

Property Ref: 58085_KNA240371

Share:

Similar Properties

Knaphill, Woking, Surrey, GU21

3 Bedroom Terraced House | £400,000

This mid-terrace home is located in a quiet cul de sac that is within easy reach of Knaphill and bus links that offer ea...

Brookwood, Woking, Surrey, GU24

3 Bedroom End of Terrace House | Offers in excess of £400,000

This executive style end of terrace home is set in a small private gated development of just five houses, a short walk f...

Woking, Surrey, GU21

4 Bedroom Terraced House | £400,000

This well-presented four-bedroom mid-terrace home offers spacious and versatile living across three floors, making it an...

Knaphill, Surrey, GU21

2 Bedroom Semi-Detached House | Offers in excess of £410,000

A well presented two double bedroom semi detached property, built in 2016 & located on the highly desirable Brookwood Fa...

Knaphill, Woking, Surrey, GU21

2 Bedroom Semi-Detached Bungalow | £415,000

This semi-detached bungalow is located in a quiet cul de sac , conveniently located as Knaphill village is within easy r...

Brookwood, Woking, Surrey, GU24

3 Bedroom Terraced House | £425,000

A character home located within walking distance of Brookwood Mainline Station that offers approximately a 30 minute jou...

Seymours (Knaphill)

Knaphill, Surrey, GU21 2PP

01483 798969

How much is your home worth?

Use our short form to request a valuation of your property.

Request a Valuation

Mortgage Calculator

Amount Borrowed: £
Total Amount Repayable: £
Total Monthly Payment: £
©2025 The Guild of Property Professionals. All rights reserved. Terms and Conditions | Privacy Policy | Cookie Policy | Complaints Policy | Members Login
The Guild of Property Professionals Trading Address: 121 Park Lane, London W1K 7AG. GPEA Limited. Registered in England & Wales.  Company No: 02819824.  Registered Office Address: 2 St. Stephen's Court, St. Stephen's Road, Bournemouth, Dorset, England, BH2 6LA.  VAT Registration No: 576 8795 61
Book a Property Valuation Update Cookies Preferences