Knaphill, Woking, Surrey, GU21

£299,950
SSTC
This property listing is now SSTC

2 Bedroom Apartment for sale in Woking

1 2 2
  • Ground Floor Apartment
  • Direct Access to Communal Garden
  • Two Double Bedrooms
  • Ensuite to Master
  • Walking Distance to Brookwood Mainline Station
  • Close to Knaphill Village
  • Allocated Parking Space

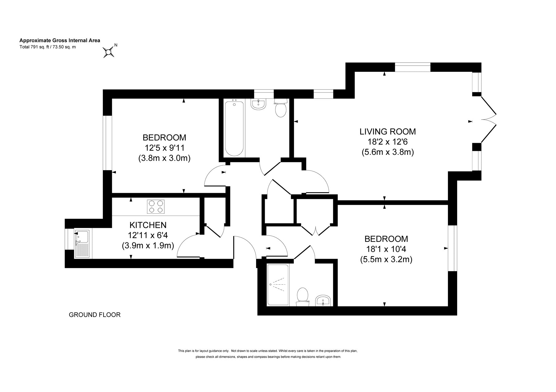
Offered in excellent condition throughout, this attractive ground floor apartment is ideally located within walking distance of Knaphill village, which boasts a wide array of local shops and amenities. Brookwood Station is also close by, providing easy access to London Waterloo, making the property ideal for commuters.
The accommodation comprises two double bedrooms, with the principal bedroom benefiting from built-in wardrobes and a modern ensuite shower room. A separate family bathroom is fitted with a contemporary three-piece suite.
The kitchen is separate from the main living space and is fitted with a range of base and eye level units, an integrated oven with electric hob and space for additional appliances. The heart of the home is the spacious living/dining room, which enjoys direct access via a door to the communal garden area, perfect for outdoor enjoyment or entertaining.
Further benefits include allocated parking and the advantage of ground floor living in a well-maintained setting.
An excellent opportunity for first-time buyers, downsizers, or investors seeking a property in a convenient and well-connected location.
Property Information
Lease Length; 105 years
Service Charge: £2100.00
Ground Rent: £125.00

Location
Knaphill village has a vibrant range of shops, pubs, restaurants and a Post Office. For more comprehensive shopping Sainsbury's superstore is approximately quarter of a mile away. For commuting, nearby Brookwood station provides a regular service direct to Waterloo, Woking and Guildford. For those who enjoy the outdoors there is Stafford Lake which is ideal for dog walking and nearby Brookwood Country Park ideal for a family stroll on a Sunday.

Important Information

  • This is a Leasehold property.

Property Ref: KNA240571

Share:

Similar Properties

Knaphill, Woking, Surrey, GU21

2 Bedroom Maisonette | £299,950

This spacious first floor maisonette is a short walk from Knaphill village that offers a wide range of amenities and boa...

Knaphill, Woking, Surrey, GU21

2 Bedroom Maisonette | £299,950

A unique split-level maisonette, presented to the market in excellent condition and boasting an enviable position overlo...

Woking, Surrey, GU21

2 Bedroom Apartment | £285,000

* NO ONWARD CHAIN * A spacious top floor apartment of some 828 sq ft, located in a highly favoured development, a short...

108 Broadway, Knaphill, GU21

2 Bedroom Apartment | £300,000

A beautifully appointed penthouse apartment offering in excess of 900 sq ft of refined living accommodation, ideally loc...

Woking, GU21

2 Bedroom Maisonette | £300,000

**Chain Free** Welcome to this charming period maisonette located in a picturesque village setting. Situated on the mode...

Bisley, Woking, GU24

2 Bedroom End of Terrace House | £315,000

This end of terrace home is located on the popular Flowers Development in Bisley and is offered to the market in excelle...

Seymours (Knaphill)

Knaphill, Surrey, GU21 2PP

01483 798969

How much is your home worth?

Use our short form to request a valuation of your property.

Request a Valuation

Mortgage Calculator

Amount Borrowed: £
Total Amount Repayable: £
Total Monthly Payment: £
©2026 The Guild of Property Professionals. All rights reserved. Terms and Conditions | Privacy Policy | Cookie Policy | Complaints Policy | Members Login
The Guild of Property Professionals Trading Address: 121 Park Lane, London W1K 7AG. GPEA Limited. Registered in England & Wales.  Company No: 02819824.  Registered Office Address: 2 St. Stephen's Court, St. Stephen's Road, Bournemouth, Dorset, England, BH2 6LA.  VAT Registration No: 576 8795 61
Book a Property Valuation Update Cookies Preferences