West End, Woking, Surrey, GU24

Offers in excess of
£575,000
SSTC
This property listing is now SSTC

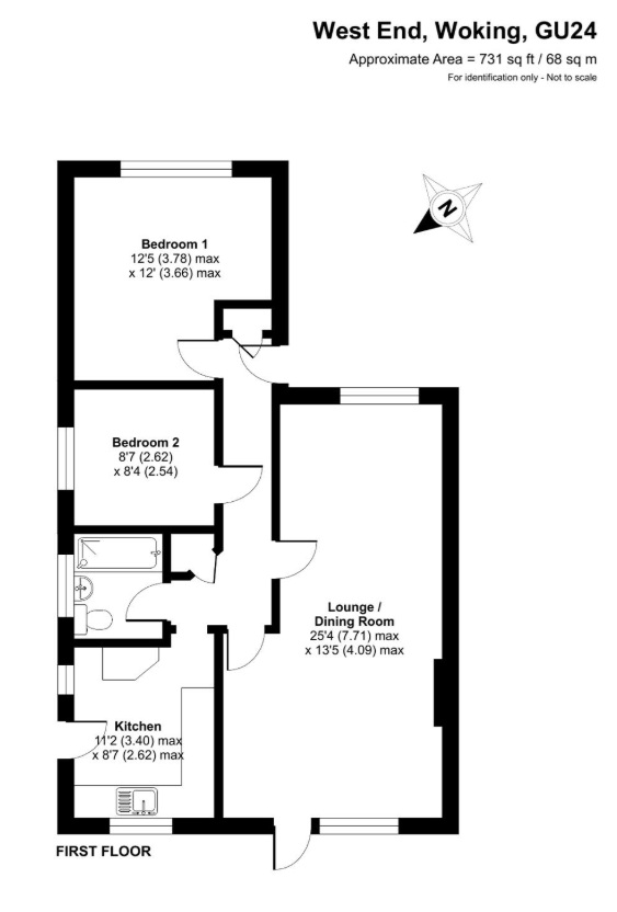
2 Bedroom Detached Bungalow for sale in Woking

1 2 1
  • No Onward Chain
  • Within 650m of Gordons School
  • Potential to Extend STPP
  • Two Double Bedrooms
  • Spacious Lounge/Dining Room
  • Driveway With Parking For Two Cars

Offered to the market with no onward chain, this well maintained detached bungalow is ideally situated within approximately 650m of the highly regarded Gordon's School.
Neatly presented throughout, the property features two generous double bedrooms and a spacious front-to-back lounge/dining room, which offers excellent versatility and could be reconfigured to create a third bedroom if desired. A well-appointed kitchen and a tidy family bathroom complete the internal accommodation.
Occupying a wrap-around plot, the bungalow provides superb potential to extend (subject to the usual consents) and enjoys a pleasant sense of privacy. Externally, the home also benefits from a driveway offering off-street parking.
This is an excellent opportunity for buyers looking for a flexible, well-cared-for home in a sought-after location close to outstanding schooling.
Location
West End village is conveniently located for access to Junction 3 of the M3 which in turn gives access to both Heathrow and Gatwick international airports. Education is well catered for with two excellent schools, the highly regarded Gordon's School and Holy Trinity primary school. The Gosden Parade provides a good range of shops to include a news agents, hairdressers and coffee shop. Local dining is also excellent with the Inn At West End and the Hare & Hounds directly in the village whilst local Chobham village also offers several similar pub/restaurants. Brookwood station is approximately 2.3 miles with a regular direct service to Waterloo.

Important Information

  • This is a Freehold property.

Property Ref: KNA250228

Share:

Similar Properties

West End, Woking, Surrey, GU24

3 Bedroom Semi-Detached House | £575,000

Situated approximately 780 metres from Gordon's School, this spacious semi-detached character property has been thoughtf...

West End, Woking, Surrey, GU24

3 Bedroom Semi-Detached House | £575,000

An exceptional semi detached property, built by the highly renowned developer Michael Shanly Homes in 2019, with their t...

Brookwood, Surrey, GU24

3 Bedroom Detached House | £575,000

A charming 1920's character detached residence located a short stroll from Brookwood mainline station with NO ONWARD CHA...

Knaphill, Woking, Surrey, GU21

4 Bedroom Semi-Detached House | £585,000

Situated on a popular residential road in Knaphill, this beautifully presented semi-detached home is within walking dist...

St Johns, Woking, Surrey, GU21

3 Bedroom Semi-Detached House | £599,950

This beautifully refurbished and remodelled semi-detached family home is presented in immaculate condition throughout, h...

Bisley, Woking, Surrey, GU24

4 Bedroom Detached House | Offers in excess of £599,950

Tucked away in a peaceful cul-de-sac in the heart of Bisley village, this beautifully presented Georgian style detached...

Seymours (Knaphill)

Knaphill, Surrey, GU21 2PP

01483 798969

How much is your home worth?

Use our short form to request a valuation of your property.

Request a Valuation

Mortgage Calculator

Amount Borrowed: £
Total Amount Repayable: £
Total Monthly Payment: £
©2026 The Guild of Property Professionals. All rights reserved. Terms and Conditions | Privacy Policy | Cookie Policy | Complaints Policy | Members Login
The Guild of Property Professionals Trading Address: 121 Park Lane, London W1K 7AG. GPEA Limited. Registered in England & Wales.  Company No: 02819824.  Registered Office Address: 2 St. Stephen's Court, St. Stephen's Road, Bournemouth, Dorset, England, BH2 6LA.  VAT Registration No: 576 8795 61
Book a Property Valuation Update Cookies Preferences