Fairland Street, Wymondham, NR18 0AN

Fixed Price
£250,000

Office for sale in Wymondham

  • Rare opportunity to purchase this town centre shop with parking
  • To be sold with tenant who has five year lease with three year break clause
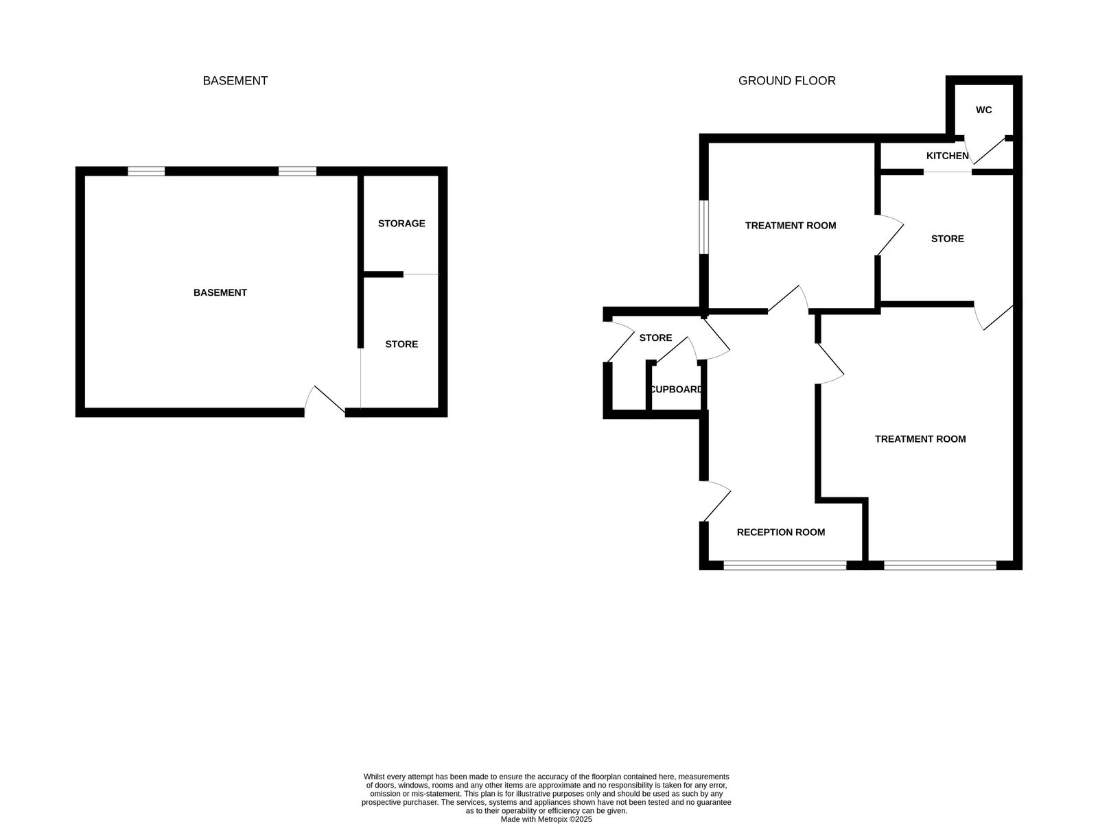
  • Offering approximately 1000 sq ft of commercial space including basement
  • Parking to the side of the property off road for one car
  • The property comprises of two treatment rooms, small kitchen area, cloakroom and reception room
  • The basement comprises of a possible third treatment room 17ft 3in x 14ft 10in
  • The property is close to Market Place paring and there are parking spaces on Fairland Street
  • This commercial property has been renovated by the owner and tenant to a high standard
  • There is an apartment above the property which will also be going on the market for sale
  • See our full online listing for further details including flood risk, broadband speed and other material information.

Rare Town Centre Commercial Opportunity – Sold with Tenant in Situ


An excellent investment opportunity to acquire this well-positioned town centre shop, offering approximately 1,000 sq ft of versatile commercial space.


The property comprises a welcoming reception area, two treatment rooms, storage space, a kitchenette, and a WC with hand basin. A rear corridor with additional storage leads to the private parking area, while stairs provide access to a spacious basement measuring 17’3” x 14’10”, ideal for further storage or potential use, subject to requirements.


The property is currently tenanted and will be sold with the tenant in situ, making this an ideal investment opportunity for those looking for reliable rental income in the heart of town.


Please note; The tenant has a five year lease with a three year break clause, they have nearly completed one year.


Viewing strictly by appointment through Moneyproperties 01953 423006


 


AGENT’S NOTES -


Planning :  Details, if any, can be found on the South Norfolk Council Planning website.


Covenants, Rights and Restrictions:  Please enquire with the selling agents for any information.


Broadband :  FTTP - Ultrafast Full Fibre -  See Ofcom checker and Openreach website for more details.


Mobile phone :  See Ofcom checker for coverage details.


Flood risk :  Very low risk of surface, rivers and seas according to Gov.uk website


Services :  Mains Electricity, water and drains.


Local authority :  Norfolk County Council and South Norfolk


Business rate : Current rateable value £5800 (1 April 2023 to present)


Tenure :  Freehold - Current tenant has 5 year lease with 3 year Break Clause


EPC : D


 

Important Information

  • This is a Freehold property.

Property Ref: 680_1152130

Share:

Similar Properties

The Old Gun Shop in town centre location with off -road parking for 2/3 cars

Commercial Property | Offers in region of £250,000

Moneyproperties present a unique opportunity to purchase the Gun Shop in the town Centre of Wymondham beside the towns m...

Woodrows,King Street, New Buckenham, NR16

2 Bedroom Detached House | Offers Over £250,000

Moneyproperties present this immaculate two-bedroom detached house in the popular village of New Buckenham. Located on k...

Melton Close, Wymondham, NR18

3 Bedroom Semi-Detached House | £250,000

Moneyproperties bring to market this well-presented three-bedroom semi-detached house located on a quiet cul de sac. Dec...

Sycamore Avenue, Wymondham, NR18

3 Bedroom Semi-Detached House | £265,000

Moneyproperties bring to market for the first time in 44 years this spacious three-bedroom semi-detached home that has b...

Melton Close, Wymondham, Norfolk

4 Bedroom Semi-Detached House | Offers in region of £265,000

Beautifully Extended Four-Bedroom Home Close to Town Centre – No Onward Chain. Situated at the end of a quiet cul-de-sac...

Sheppards Drove, Wymondham, NR18

3 Bedroom End of Terrace House | Offers in region of £270,000

Moneyproperties are delighted to bring to market this well-presented three-bedroom end of terrace house located down a q...

Money Properties (Wymondham)

17/18 Market Place, Wymondham, Norfolk, NR18 0AX

01953 423 006

How much is your home worth?

Use our short form to request a valuation of your property.

Request a Valuation

Mortgage Calculator

Amount Borrowed: £
Total Amount Repayable: £
Total Monthly Payment: £
©2026 The Guild of Property Professionals. All rights reserved. Terms and Conditions | Privacy Policy | Cookie Policy | Complaints Policy | Members Login
The Guild of Property Professionals Trading Address: 121 Park Lane, London W1K 7AG. GPEA Limited. Registered in England & Wales.  Company No: 02819824.  Registered Office Address: 2 St. Stephen's Court, St. Stephen's Road, Bournemouth, Dorset, England, BH2 6LA.  VAT Registration No: 576 8795 61
Book a Property Valuation Update Cookies Preferences